St Johns Avenue, Harlesden, NW10 4ED

Guide Price
£450,000
SSTC
This property listing is now SSTC

2 Bedroom Apartment for sale in London

1 2 1
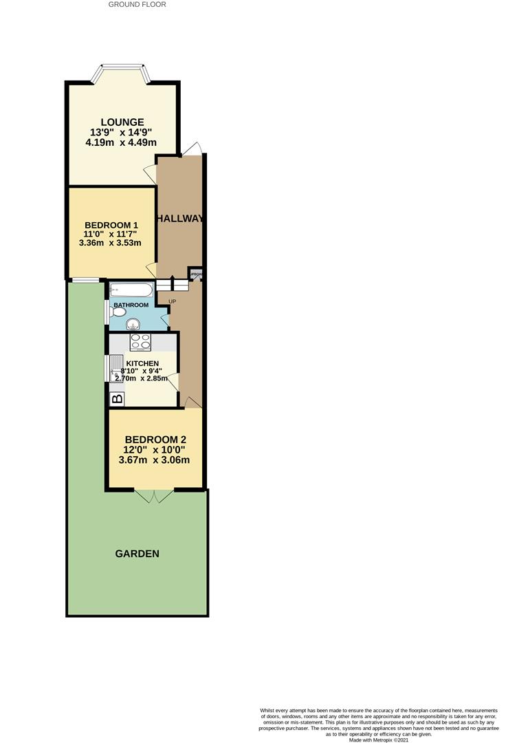
  • GROUND FLOOR
  • TWO BEDROOMS
  • OFF ROAD CAR PARKING
  • GOOD SIZE REAR GARDEN
  • NO UPPER CHAIN
  • GOOD ORDER THROUGHOUT
  • CLOSE TO TOWN CENTRE
  • POPULAR LOCATION

CHURCHILLMATHESONS are favored to offer this TWO BEDROOM GROUND FLOOR FLAT WITH A LARGE REAR GARDEN AND CAR PARKING. An internal viewing highly recommended to appreciate the size and condition that this home offers. The property also benefits from UPVC DOUBLE GLAZING, CENTRAL HEATING, REFITTED KITCHEN and with no upper chain complications.
The property comprises of; Entrance Hall, Lounge, Kitchen/ Diner, Two Double Bedrooms, Bathroom. Outside off road car parking and a good size rear garden.
With an option to buy the first floor flat also.

Entrance Hall -

Lounge - 4.19m x 4.50m (13'9 x 14'9) -

Kitchen - 2.69m x 2.84m (8'10 x 9'4) -

Bedroom 1 - 3.61m x 3.53m (11'10 x 11'7 ) -

Bedroom 2 - 3.66m x 3.05m (12'0 x 10'0) -

Bathroom -

Rear Garden -

Property Ref: 8008_30400728

Share:

Similar Properties

Crouch Road, London

3 Bedroom House | Guide Price £450,000

A fabulous three bedroom period bay fronted terraced home of generous proportions and requiring complete modernisation b...

Tubbs Road, London

3 Bedroom Maisonette | Guide Price £450,000

3 BEDROOM MASSIONETTE FOR SALEFound on Tubbs Road with easy access to Willesden Junction, NW10 this impressive 771sqft,...

West Ella Road, Harlesden, London

4 Bedroom Flat | Guide Price £450,000

MAGNIFICENT 4 BEDROOM FLAT FOR SALE WITH SHARE OF FREEHOLDFound on West Ella Road, NW10, London, this beautifully decora...

Perryn House, Bromyard Avenue, London

3 Bedroom House | Guide Price £460,000

CHURCHILL MATHESONS are pleased to offer for sale this THREE BEDROOM SECOND FLOOR (TOP) MANSION APARTMENT in an ATTRACTI...

Lewis Crescent, London

3 Bedroom Terraced House | £464,950

Well presented three bedroom mid terraced house ideal for a growing family or a Buy to Let Investment. Benefits include...

Crownhill Road, Harlesden, London NW10

2 Bedroom Flat | £464,950

A fine two double bedroom period apartment occupying the entire ground floor of this handsome period building.The proper...

Churchill Mathesons (Harlesden)

Harlesden, London, NW10 4JT

0208 965 2250

How much is your home worth?

Use our short form to request a valuation of your property.

Request a Valuation

Mortgage Calculator

Amount Borrowed: £
Total Amount Repayable: £
Total Monthly Payment: £
©2026 The Guild of Property Professionals. All rights reserved. Terms and Conditions | Privacy Policy | Cookie Policy | Complaints Policy | Members Login
The Guild of Property Professionals Trading Address: 121 Park Lane, London W1K 7AG. GPEA Limited. Registered in England & Wales.  Company No: 02819824.  Registered Office Address: 2 St. Stephen's Court, St. Stephen's Road, Bournemouth, Dorset, England, BH2 6LA.  VAT Registration No: 576 8795 61
Book a Property Valuation Update Cookies Preferences