Mayton Street, Holloway

£465,000
SSTC
This property listing is now SSTC

1 Bedroom Flat for sale in London

1 1 1
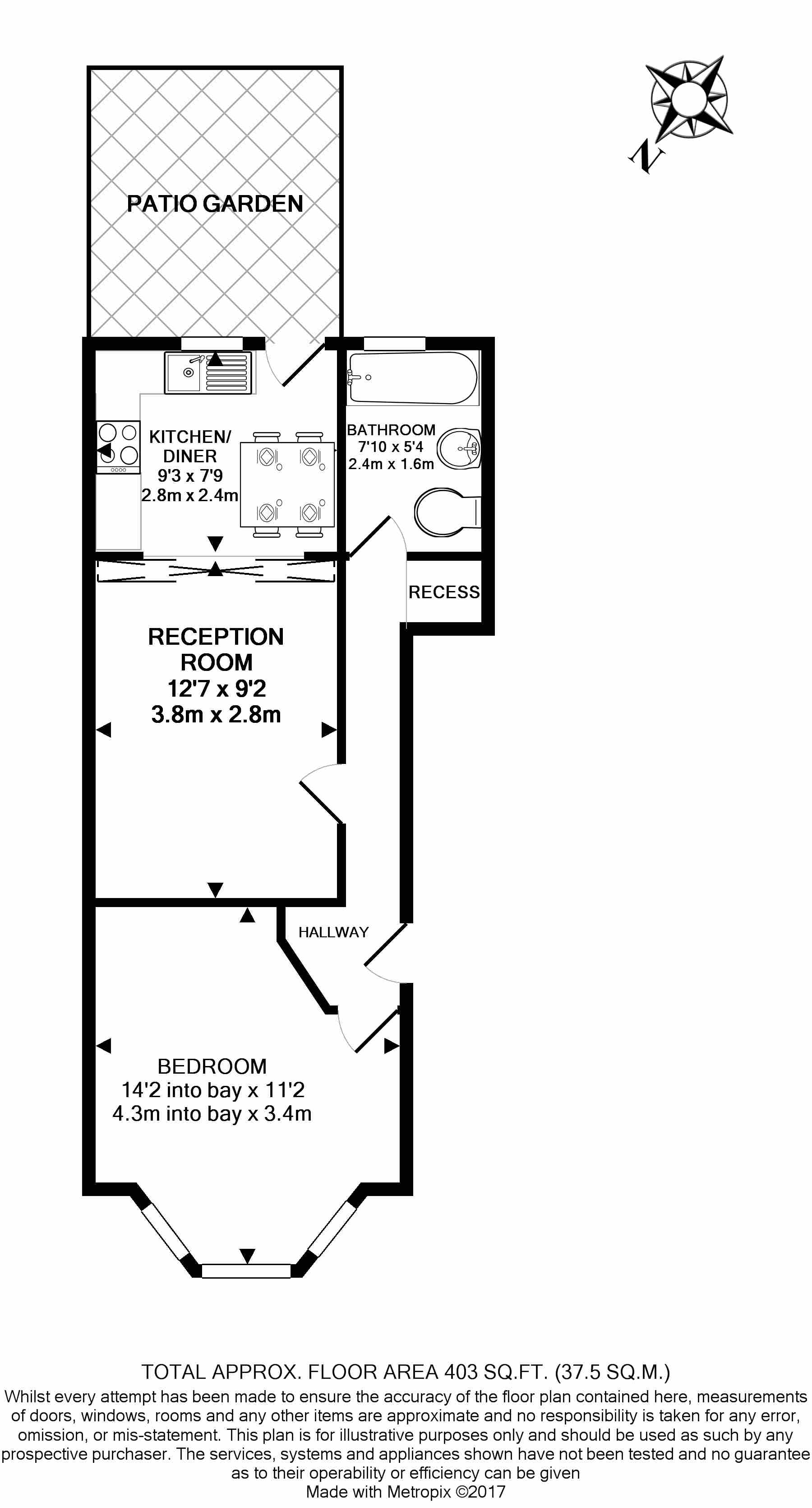
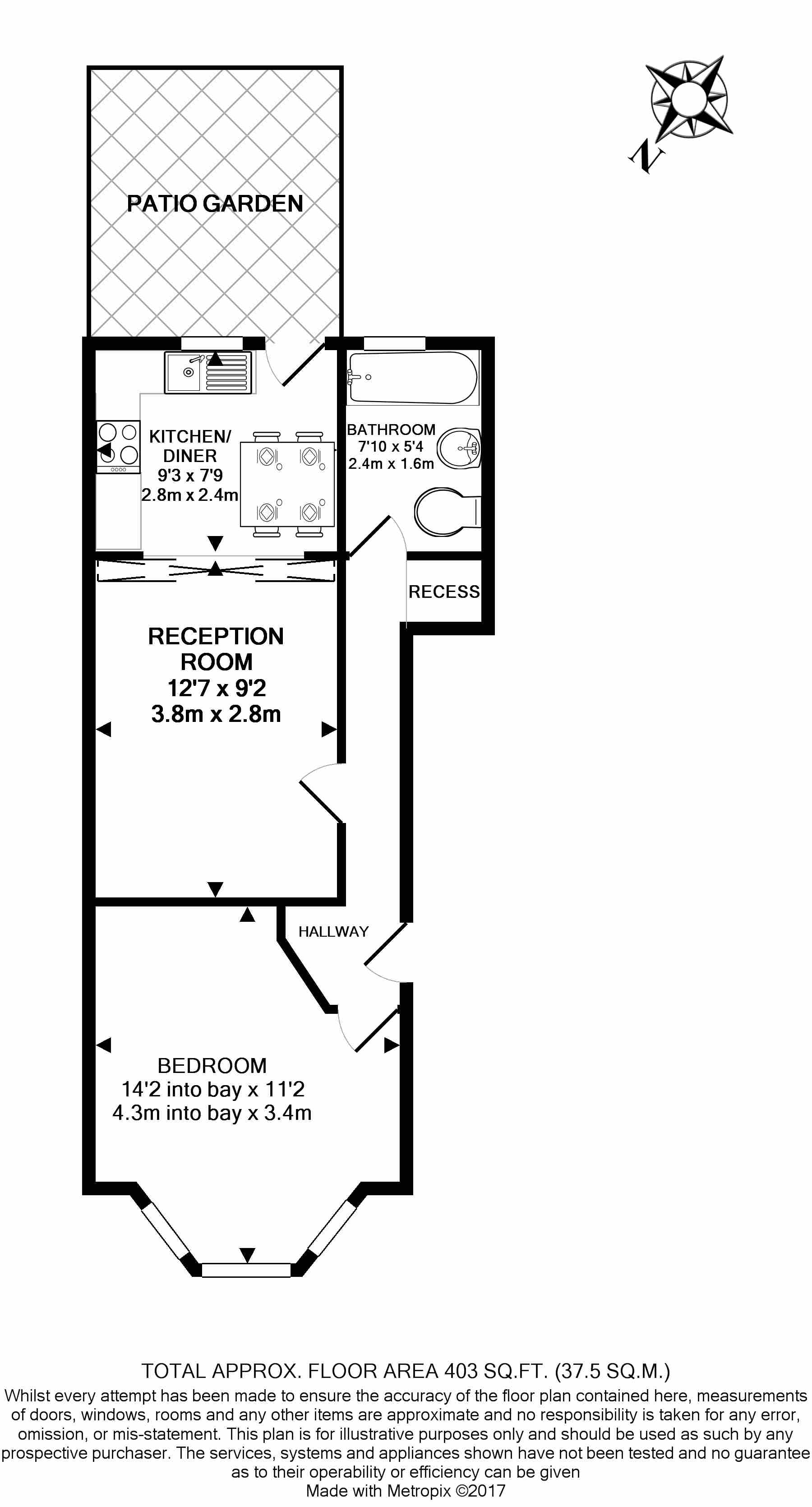
  • One Bedroom Flat|Ground Floor|Private Garden|Period Property|Well Maintained|2 Mins From Shops & Transport|Share of Freehold|Chain Free

Delightful one bedroom ground floor flat with GARDEN. The flat has been well maintained and forms part of a period property. The accommodation comprises a lounge, kitchen, double bedroom and a bathroom/WC. Superbly located in a quiet tree-lined street yet within a couple of minutes walk of Holloway Road and Seven Sisters Road and all the amenities offered including public transport, shops, etc. The flat also comes with a long lease and a SHARE OF THE FREEHOLD. The property can be offered "Chain Free!"

Important Information

  • This is a Share of Freehold property.
  • This Council Tax band for this property is: C

Property Ref: DAN160423

Share:

Similar Properties

Bright Two-Bedroom Apartment with South-Facing Balcony | 856 Sq Ft | Gated Development | Scope to Modernise | N7

2 Bedroom Flat | Asking Price £465,000

Set within a secure gated development in the heart of Islington, this bright and spacious first-floor lateral apartment...

Todds Walk, London

2 Bedroom Maisonette | Guide Price £465,000

Two Bedroom Duplex Apartment with private terrace located on a quiet residential turning, moments from Finsbury Park Und...

Three-Bedroom Apartment | Private Balcony | First Floor | Excellent Islington Location

3 Bedroom Flat | Guide Price £450,000

Set on the third and fourth floor of a well-maintained purpose-built block, this bright and spacious three-bedroom apart...

Spacious Three-Bedroom Period Apartment | Third Floor with Lift | 793 sq ft | Excellent Islington Location

3 Bedroom Flat | £475,000

Set within the attractive Loreburn House on Holloway Road, this naturally bright three-bedroom apartment offers generous...

Dalmeny Avenue, Tufnell Park

3 Bedroom Flat | Guide Price £475,000

A well-proportioned THREE BEDROOM purpose built flat, with phone entry system and LIFT ACCESS on all floors. Walking dis...

Jubilee Close

Not Specified | £475,000

Modern refurbished offices FOR SALE - FREEHOLD. The offices are 1 minute from Kingsbury Road A4006 and close to Edgware...

Drivers & Norris (Holloway)

Holloway, London, N7 6HP

0207 607 5001

How much is your home worth?

Use our short form to request a valuation of your property.

Request a Valuation

Mortgage Calculator

Amount Borrowed: £
Total Amount Repayable: £
Total Monthly Payment: £
©2026 The Guild of Property Professionals. All rights reserved. Terms and Conditions | Privacy Policy | Cookie Policy | Complaints Policy | Members Login
The Guild of Property Professionals Trading Address: 121 Park Lane, London W1K 7AG. GPEA Limited. Registered in England & Wales.  Company No: 02819824.  Registered Office Address: 2 St. Stephen's Court, St. Stephen's Road, Bournemouth, Dorset, England, BH2 6LA.  VAT Registration No: 576 8795 61
Book a Property Valuation Update Cookies Preferences