Tollington Way Islington

Guide Price
£650,000

2 Bedroom Maisonette for sale in London

1 2 1
  • Chain Free
  • Gas central heating
  • Own section of garden
  • Built in wardrobes
  • Additional built in storage areas

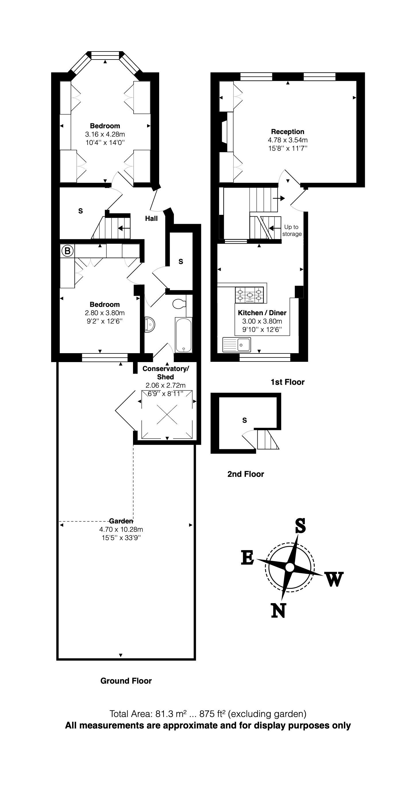
Two double bedroom split level converted maisonette with its own section of garden, within this period property offering well-proportioned accommodation. Conveniently located on this residential turning close to Archway Underground station (Northern Line), bus routes on Holloway Road with its vast selection of shops, cafes, restaurants and bars.
The accommodation comprises on the ground floor, entrance hall, two double bedrooms, bathroom/WC with a door to an additional storage space/gym room, to the first floor a lounge and kitchen/diner.

Important Information

  • This is a Share of Freehold property.
  • This Council Tax band for this property is: D
  • EPC Rating is D

Property Ref: DAN_DAN240909

Share:

Similar Properties

Ormond Road Archway

2 Bedroom Flat | Guide Price £650,000

A unique ground floor GARDEN FLAT set within an end of terrace PERIOD BUILDING. Conviniently within walking distance of...

Loraine Mansions Widdenham Road

3 Bedroom Flat | Guide Price £650,000

This property is currently under offer at £638,000. A superb period purpose built apartment, approx 900 sq ft situated...

York Way Islington

3 Bedroom Duplex | Offers in excess of £625,000

Three bedroom DUPLEX apartment set over the TOP FLOORS of this PERIOD CONVERSION which was recently completely rebuilt a...

Arthur Road Islington

2 Bedroom Flat | Fixed Price £675,000

Tucked away on a quiet residential turning, within easy reach of Gillespie Park Nature Reserve, and moments from Arsenal...

Carronade Court Eden Grove

3 Bedroom Flat | Asking Price £675,000

Three bedroom apartment set within a PRIVATE DEVELOPMENT and located moments away from Holloway Tube station. The proper...

Cardinals Way Islington

3 Bedroom Terraced House | Asking Price £710,000

Three double bedroom town house arranged over four levels located in this quiet residential turning adjacent to Whitehal...

Drivers & Norris (Holloway)

Holloway, London, N7 6HP

0207 607 5001

How much is your home worth?

Use our short form to request a valuation of your property.

Request a Valuation

Mortgage Calculator

Amount Borrowed: £
Total Amount Repayable: £
Total Monthly Payment: £
©2025 The Guild of Property Professionals. All rights reserved. Terms and Conditions | Privacy Policy | Cookie Policy | Complaints Policy | Members Login
The Guild of Property Professionals Trading Address: 121 Park Lane, London W1K 7AG. GPEA Limited. Registered in England & Wales.  Company No: 02819824.  Registered Office Address: 2 St. Stephen's Court, St. Stephen's Road, Bournemouth, Dorset, England, BH2 6LA.  VAT Registration No: 576 8795 61
Book a Property Valuation Update Cookies Preferences