Three Bedroom Edwardian Conversion

Offers in excess of
£750,000
SSTC
This property listing is now SSTC

3 Bedroom Terraced House for sale in London

1 3 1
  • Red Brick Edwardian Conversion Fully Refurbished Throughout Three Bedrooms Approximately 908 sq.ft Bespoke Fitted Kitchen Wood Flooring High Ceilings Private Garden Modern Bathroom Suit...

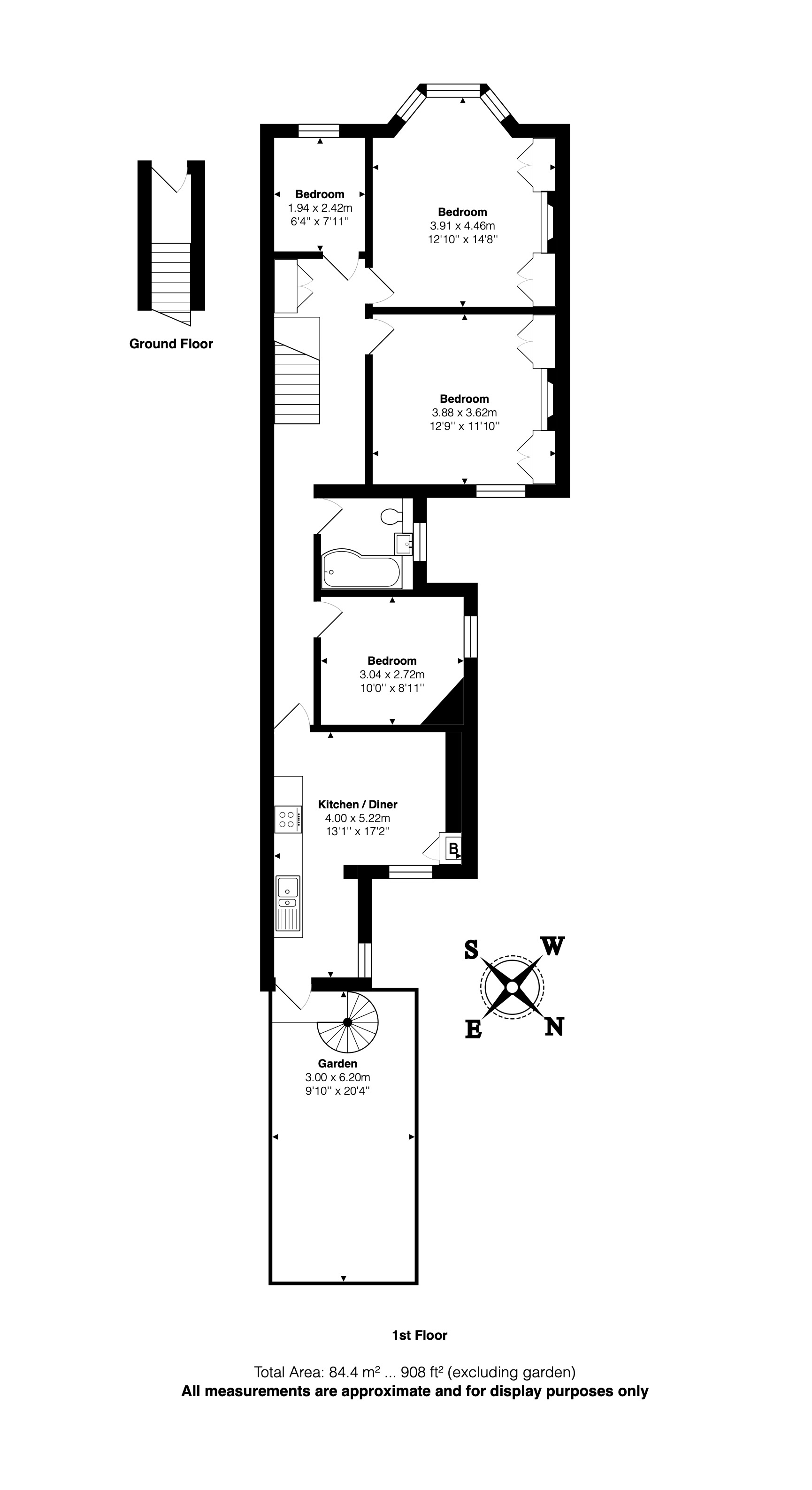
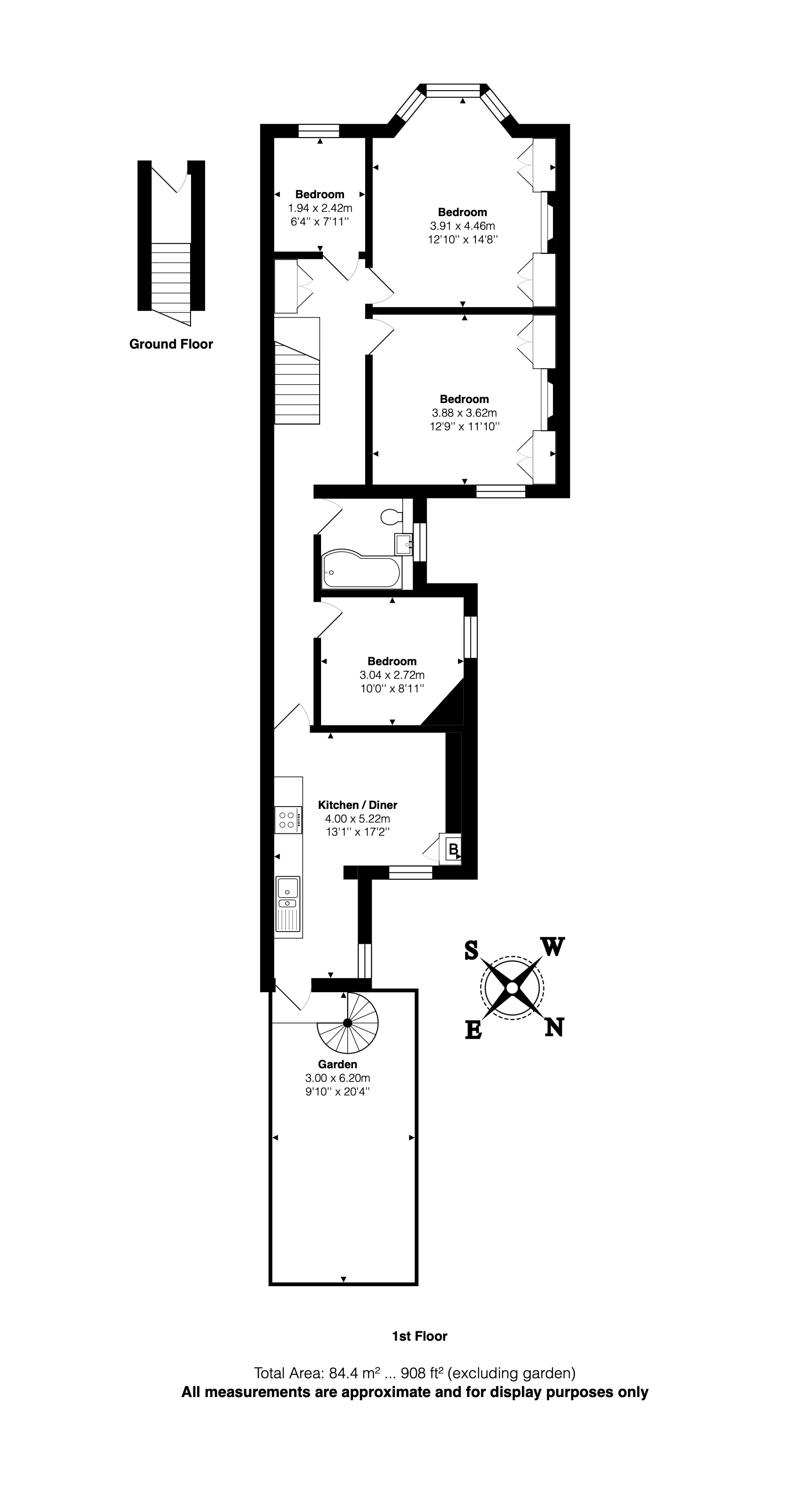
Accessed via your own private internal front door, a staircase leads up to a bright and airy landing, which opens into the reception room at the front of the property. This beautifully proportioned room features a bay sash window, original decorative fireplace and mouldings, blending classic period charm with a sense of contemporary style.

To the left of the staircase is the third bedroom, which would make an ideal study or children’s room. The main and second bedrooms both overlook the garden and are filled with natural light. The main bedroom also benefits from a decorative fireplace and bespoke fitted wardrobes, enhancing both character and functionality.

The bathroom has been finished with a mix of marble and brick tiles, and comprises an L-shaped bath with waterfall shower, a vanity unit with wash basin, and a low-level WC, creating a sleek and contemporary space.

At the rear of the property is a stunning bespoke kitchen and dining room with dual-aspect windows. The kitchen is fitted with a selection of wall and base units, quartz work surfaces, and integrated appliances. A spiral staircase leads directly down from the kitchen to the private landscaped garden, which has been designed for low maintenance while still providing an excellent outdoor area for entertaining.

Additional benefits include naturally stained wood flooring throughout, ceiling mouldings, zonal downlighting, an efficient gas central heating system, and a loft space accessed from the landing, offering potential for conversion (STPP) as others have done in the road.

Widdenham Road is a quiet leafy avenue, ideally located close to a range of local shops, cafés and restaurants, with the amenities of Upper Street and Angel also within easy reach. Holloway Road Tube station (Piccadilly line) is the closest at approximately 0.4 miles, while Highbury & Islington station (Victoria line & Overground) is around 0.6 miles. For green space, Highbury Fields is just 0.5 miles away, offering a large open area for recreation and leisure.

Important Information

  • This is a Share of Freehold property.
  • EPC Rating is C

Property Ref: DAN250562

Share:

Similar Properties

Luxury 2–3 Bedroom Apartments | Balcony Views | Concierge | Off-Street Parking | Woodberry Down, N4

2 Bedroom Flat | Guide Price £750,000

An exceptional collection of luxury two and three-bedroom apartments set within the sought-after Woodberry Down developm...

Guide Price: £750,000 | Three Bedroom Period Maisonette | Private Garden | Prime Archway Location

3 Bedroom Maisonette | Guide Price £750,000

Set on one of Archway’s most desirable tree-lined roads, this beautifully presented three bedroom period maisonette offe...

Cardinals Way, Islington

3 Bedroom Terraced House | Asking Price £710,000

Three double bedroom town house arranged over four levels located in this quiet residential turning adjacent to Whitehal...

Wonderful Four Bedroom End-Of-Terrace House

4 Bedroom End of Terrace House | Offers Over £775,000

Set within a quiet, modern cul-de-sac just off Market Road and sitting beside the green open space of Caledonian Park, w...

Three Bedroom Victorian House (Cash Buyers Only)

3 Bedroom Terraced House | Guide Price £775,000

CASH BUYERS ONLY - Positioned on a sought-after residential turning, this three-bedroom Victorian house offers an exciti...

Mackenzie Road, Islington

3 Bedroom Terraced House | Asking Price £850,000

Nestled between Paradise Park and Caledonian Park just North of Kings Cross/St Pancras, and within easy of reach of High...

Drivers & Norris (Holloway)

Holloway, London, N7 6HP

0207 607 5001

How much is your home worth?

Use our short form to request a valuation of your property.

Request a Valuation

Mortgage Calculator

Amount Borrowed: £
Total Amount Repayable: £
Total Monthly Payment: £
©2026 The Guild of Property Professionals. All rights reserved. Terms and Conditions | Privacy Policy | Cookie Policy | Complaints Policy | Members Login
The Guild of Property Professionals Trading Address: 121 Park Lane, London W1K 7AG. GPEA Limited. Registered in England & Wales.  Company No: 02819824.  Registered Office Address: 2 St. Stephen's Court, St. Stephen's Road, Bournemouth, Dorset, England, BH2 6LA.  VAT Registration No: 576 8795 61
Book a Property Valuation Update Cookies Preferences