Wonderful Four Bedroom End-Of-Terrace House

Offers Over
£775,000
SSTC
This property listing is now SSTC

4 Bedroom End of Terrace House for sale in London

1 4 1
  • Freehold House
  • End-Of-Terrace
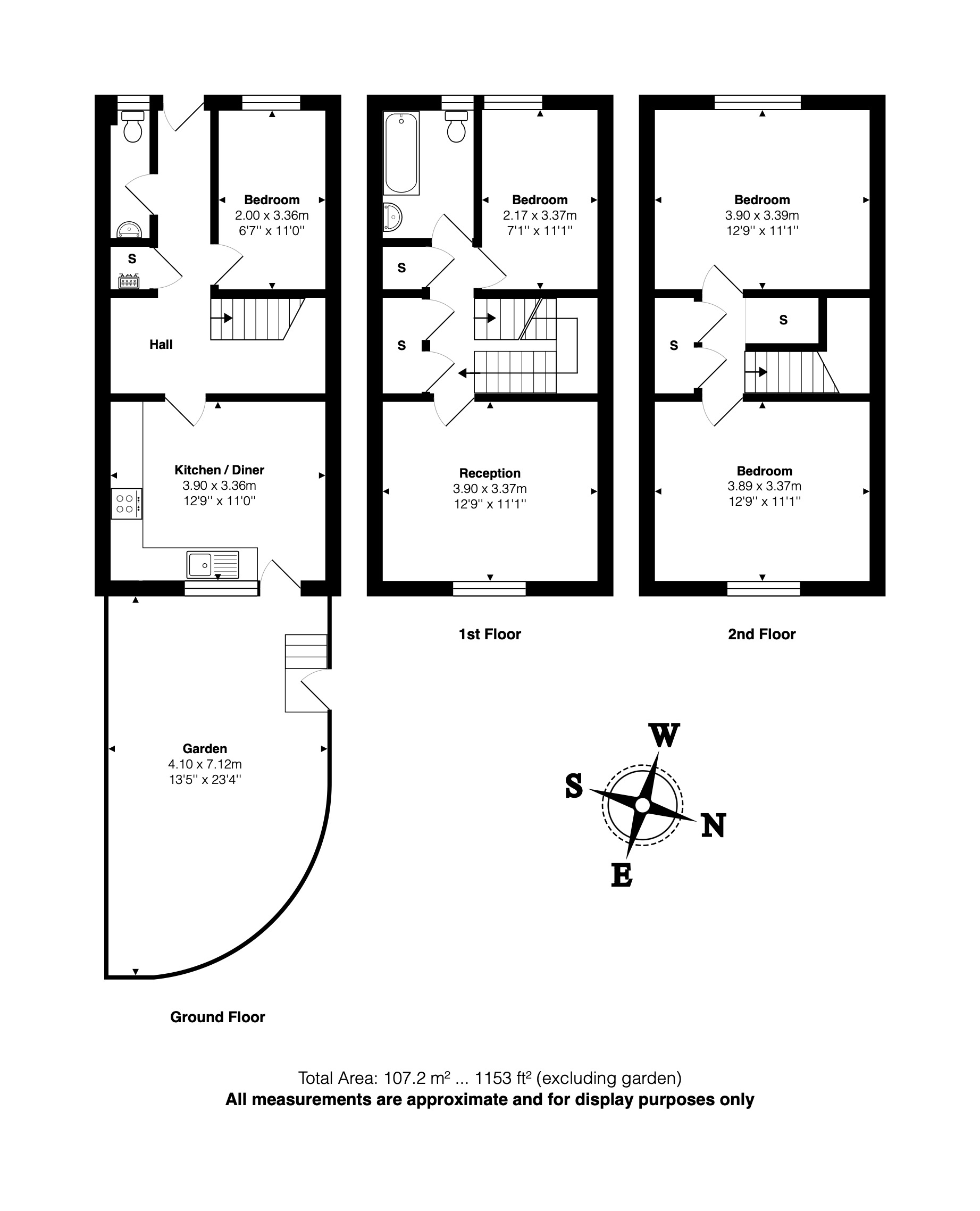
  • Four Bedrooms
  • Arranged Over Three Main Floors
  • Private Garden
  • Chain Free
  • Caledonian Road Tube Station 0.3m
  • Adjacent To Caledonian Park & Clock Tower

Set within a quiet, modern cul-de-sac just off Market Road and sitting beside the green open space of Caledonian Park, with its striking Grade II Listed Clock Tower, this bright and thoughtfully arranged family home offers generous and flexible accommodation across three principal floors.



The ground floor is centred around a spacious kitchen and dining room stretching across the rear of the house, opening directly onto a private, low-maintenance paved garden, an ideal spot for summer entertaining or al-fresco dining. This level also includes a guest cloakroom/W.C. and a versatile fourth bedroom, perfectly suited to use as a study, workspace, playroom or guest room.



On the first floor, a full-width reception room overlooks the garden, providing a peaceful and inviting setting for everyday living. A further bedroom and the main family bathroom complete this level. The top floor hosts two generous double bedrooms, each benefitting from excellent natural light and pleasant outlooks.



Ewe Close enjoys superb access to transport and local amenities. Caledonian Road Underground Station (Piccadilly Line) is just 0.3m, while excellent bus routes along Caledonian Road, Hillmarton Road and York Way offer quick links across London. The home is conveniently positioned for Kings Cross, Granary Square, Holloway Road and Upper Street, all offering an extensive selection of cafés, restaurants, independent shops and supermarkets.

Important Information

  • This Council Tax band for this property is: D
  • EPC Rating is C

Property Ref: DAN_DAN240973

Share:

Similar Properties

Three Bedroom Victorian House (Cash Buyers Only)

3 Bedroom Terraced House | Guide Price £775,000

CASH BUYERS ONLY - Positioned on a sought-after residential turning, this three-bedroom Victorian house offers an exciti...

Woodberry Down

2 Bedroom Flat | Guide Price £750,000

A mixture of Luxury one Bedrooms, two Bedrooms & Three Bedroom apartments, with stunning internal finishes, fantastic co...

Three Bedroom Edwardian Conversion

3 Bedroom Flat | Offers in excess of £750,000

Originally built around 1900, this beautiful three-bedroom Red Brick Edwardian property with private garden extends to a...

Highgate Avenue Highgate

2 Bedroom Ground Floor Flat | Guide Price £800,000

Two double bedroom garden maisonette (WITH PLANNING TO EXTEND) occupying the entire lower ground floor of this imposing...

Pollard Close Islington

2 Bedroom Terraced House | Offers Over £800,000

A fantastic opportunity to restore a freehold townhouse to its former glory. This home is ideal for those seeking the op...

Skylark Point Newnton Close

2 Bedroom Flat | Offers in excess of £820,000

LUXURY SPACIOUS TWO-BEDROOM, TWO-BATHROOM NEW BUILD APARTMENT An EXCEPTIONAL 7TH-FLOOR APARTMENT with SOUTH-FACING VIEW...

Drivers & Norris (Holloway)

Holloway, London, N7 6HP

0207 607 5001

How much is your home worth?

Use our short form to request a valuation of your property.

Request a Valuation

Mortgage Calculator

Amount Borrowed: £
Total Amount Repayable: £
Total Monthly Payment: £
©2026 The Guild of Property Professionals. All rights reserved. Terms and Conditions | Privacy Policy | Cookie Policy | Complaints Policy | Members Login
The Guild of Property Professionals Trading Address: 121 Park Lane, London W1K 7AG. GPEA Limited. Registered in England & Wales.  Company No: 02819824.  Registered Office Address: 2 St. Stephen's Court, St. Stephen's Road, Bournemouth, Dorset, England, BH2 6LA.  VAT Registration No: 576 8795 61
Book a Property Valuation Update Cookies Preferences