Acton, W3

Offers in excess of
£850,000

3 Bedroom Semi-Detached House for sale in London

1 3 1
  • Excellent location
  • Permit Parking
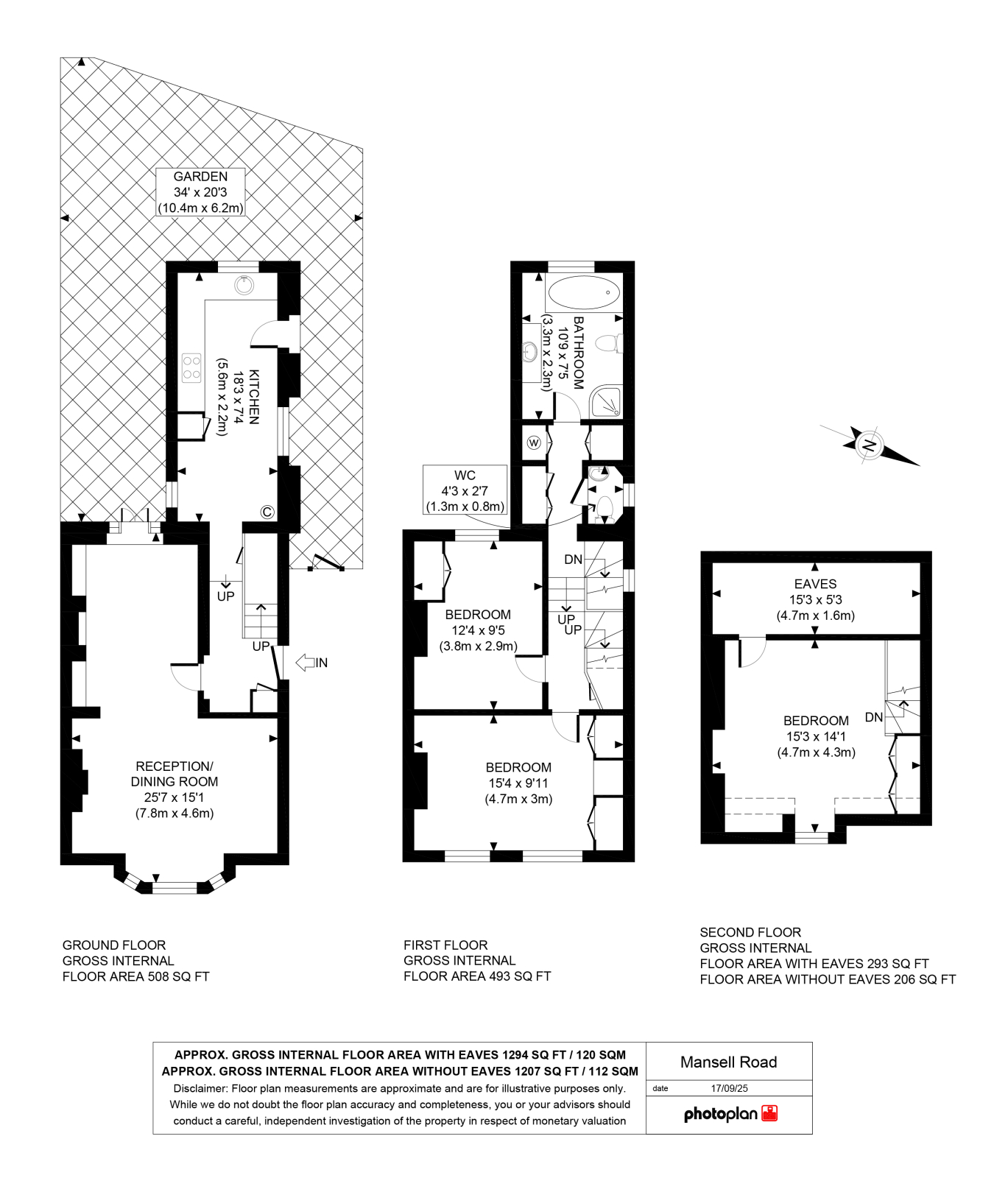
  • approx 1,300 sqft
  • Potential to extend (STPP)
  • Close to all Amenities/Schools/Transport
  • Close to Acton High Road
  • Sash Windows
  • Semi Detached
  • Garden
  • Double Bedrooms

Council tax band: E.

This delightful three-bedroom, semi-detached house located on Mansell Road, London W3. The property includes three double bedrooms over 3 floors, a modern fitted bathroom, and a spacious double reception area. The reception room is bright due to the high ceilings and high sash windows, leading into a dining area that overlooks the garden. The kitchen has a lot of workspace and cupboards and a door leading to a private court yard. 

The private court yard, offering a peaceful outdoor space for relaxation or entertaining. The garden is easily accessible from the kitchen and the side access, providing a seamless indoor-outdoor living experience. The house is just under 1,300 sq. Ft which is larger than your average 3 bedroom property and will suit a family that is looking for a great location property.

Situated in Acton, the property benefits from excellent transport links and access to local amenities. The area is well-served by public transport, making commuting convenient. The property is also within reach of various shops, restaurants, and recreational facilities such as parks at the end of the road and across the road.

Rail / Overground / Underground

  • Acton Central Station (London Overground / National Rail)
    Approximately 0.25 miles from the property (5-minute walk).

  • South Acton Station (Overground)
    Approximately 0.5 miles away.

  • Acton Main Line (National Rail / Elizabeth Line)
    Approximately 0.8 miles 

  • Underground (Tube) Stations Nearby:

    • Acton Town – District and Piccadilly lines (approximately. 0.9 miles)

    • Turnham Green – District and Piccadilly lines (approximately. 0.8 miles)

    • Chiswick Park – District line (approximately. 0.8 miles)

    • East Acton – Central line (approximately. 1.6 miles)

    • Primary Schools
      • Ark Byron Primary Academy – 0.2 miles

      • Ark Priory Primary Academy – 0.3 miles

      • Southfield Primary School – 0.4 miles

      • Derwentwater Primary School – 0.5 miles

      • East Acton Primary School – 0.5 miles

      • Acton Gardens Primary School – 0.5 miles

      • West Acton Primary School – 0.8 miles

      Secondary Schools

       

      • Ark Soane Academy – 0.7 miles

      • Twyford Church of England High School – 0.9 miles

      • Ark Acton Academy – 0.9 miles

      • The Ellen Wilkinson School for Girls – 1.3 miles

Important Information

  • This is a Freehold property.

Property Ref: 632118_homesearch_36177883

Share:

Similar Properties

Cottage Close, HA2

4 Bedroom End of Terrace House | Offers Over £850,000

NEW TO MARKET - Immaculate 4-Bedroom Home in Gated Development with Garden, Garage & Gym complex on site - Almost 2,000...

North Road, W5

4 Bedroom Terraced House | £730,000

4/5 Bedroom Terraced House in South Ealing Situated in the heart of South Ealing

Archway, London, N19

3 Bedroom Flat | £700,000

Council tax - Band D Tenure- Leasehold 125 years from 29 September 2016EPC- D

Netherbury Road , W5

3 Bedroom Terraced House | £899,950

NEW TO MARKET!! Charming 3-Bed Mid-Terrace with 43ft long Garden – Moments from South Ealing Station

Maple Grove, W5

5 Bedroom End of Terrace House | £910,000

NEW TO MARKET! 5-Bedroom Family Home with Driveway for 2 cars almost 1600 sq ft in South EalingLocated in the heart of S...

Manton Avenue, W7

4 Bedroom Terraced House | £969,000

4 Bedroom Mid Terrace Period Property

Homesearch (Ealing)

Ealing, London, W5 4QB

020 8560 0125

How much is your home worth?

Use our short form to request a valuation of your property.

Request a Valuation

Mortgage Calculator

Amount Borrowed: £
Total Amount Repayable: £
Total Monthly Payment: £
©2025 The Guild of Property Professionals. All rights reserved. Terms and Conditions | Privacy Policy | Cookie Policy | Complaints Policy | Members Login
The Guild of Property Professionals Trading Address: 121 Park Lane, London W1K 7AG. GPEA Limited. Registered in England & Wales.  Company No: 02819824.  Registered Office Address: 2 St. Stephen's Court, St. Stephen's Road, Bournemouth, Dorset, England, BH2 6LA.  VAT Registration No: 576 8795 61
Book a Property Valuation Update Cookies Preferences