Longfield House, W5

Offers Over
£375,000

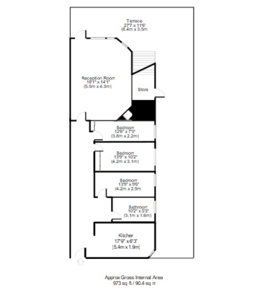
3 Bedroom Flat for sale in London

1 3 1
  • 3 Beds
  • 1 Reception
  • 1 Bathroom
  • Council Tax Band D
  • Gas Central Heating
  • Recently Refurbished
  • Centrally Located
  • Walking distance to Ealing Broadway Station
  • Kitchen-Diner
  • Washing Machine

Council tax band: D.

Tenure: Leasehold.

Lease remaining (For Leasehold tenure): 86 (in years).
Service charge (For Leasehold tenure): £6453 per year.

Being Sold via Secure Saleonline bidding. Terms & Conditions apply. Starting Bid £375,000

LOCATION LOCATION LOCATION!!!!  

Proudly presented, this stunning 3-Bedroom stylish and spacious flat located within one of Ealing's notable Art Deco buildings in the heart of Ealing Broadway. This charming 3-bedroom first-floor flat is ideally located just a stone's throw away from Ealing Broadway, offering a fantastic blend of convenience and comfort. With an abundance of local amenities at your doorstep, you'll enjoy easy access to a variety of shops, restaurants, cafes, and the bustling Ealing Broadway Shopping Centre. Perfect for those seeking both a vibrant community and a peaceful retreat, this property is the ideal base for modern living in one of London's most desirable areas.

Located on the first floor of a secure building, accessible with a key fob, this bright and airy flat offer both lift and stair access. It boasts a spacious hallway that leads to a fully equipped kitchen, two generously sized double bedrooms, and one single bedroom.

The property also includes a modern family bathroom with a three-piece suite.

Further highlights include beautiful wooden flooring throughout, gas central heating, double glazing, and underfloor heating in the kitchen and bathroom.

Ealing Broadway Station- 0.4 miles ( Elizabeth line, Central Line, District line, mainline)
West Ealing Station- 0.5 miles (Rail)
South Ealing Station-0.8 miles ( Picadilly line)

TENURE: Leasehold (125 years from 25 March 1986)
EPC Rating D
Council Tax D


Water Supply: Mains
Sewerage: Mains
Heating: Mains gas
Mobile Signal/Coverage: High - O2, EE, 3, Vodafone
Broadband Speed: Ultrafast - 910mb/s
Flood Risk: Rivers & Seas = No Risk ; Surface Water = Very Low




Features
  • Double Bedrooms


Property additional info

Kitchen:
Fully fitted

Living/Dining Room

Bedroom 1:
Double

Bedroom 2:
Double

Bedroom 3:
Single

Bathroom:
3 piece suite

Separate WC

Important Information

  • This is a Leasehold property.

Property Ref: 632118_RM_SP_2670

Share:

Similar Properties

Ealing, W5

2 Bedroom Flat | Offers Over £370,000

A fantastic opportunity to acquire this stylish and well-presented two double bedroom duplex flat, located on the first...

Gunnersbury Lane , W3

2 Bedroom Flat | Offers in region of £360,000

This 2-bedroom flat located on Central Parade, Gunnersbury Lane, offers a practical layout with one bathroom and a recep...

Randolph Road, UB1

1 Bedroom Flat | £360,000

1 Bedroom Luxury Apartment The Green Quarter Rosemary House

Coates Walk, TW8

3 Bedroom Flat | Offers Over £400,000

Lovely 3-bedroom Duplex Flat for Sale in Brentford Homesearch Ltd is thrilled to present this beautifully refurbished...

Lampton Parkside , TW3

1 Bedroom Flat | £410,000

A beautiful one-bedroom apartment at Lampton Parkside, ready to move into today!

Randolph Court, Belgrave Gardens, NW8

1 Bedroom Flat | £410,000

Spacious 1-Bedroom Flat in Prime St Johns Wood Location – Ideal Investment or First Home

Homesearch (Ealing)

Ealing, London, W5 4QB

020 8560 0125

How much is your home worth?

Use our short form to request a valuation of your property.

Request a Valuation

Mortgage Calculator

Amount Borrowed: £
Total Amount Repayable: £
Total Monthly Payment: £
©2025 The Guild of Property Professionals. All rights reserved. Terms and Conditions | Privacy Policy | Cookie Policy | Complaints Policy | Members Login
The Guild of Property Professionals Trading Address: 121 Park Lane, London W1K 7AG. GPEA Limited. Registered in England & Wales.  Company No: 02819824.  Registered Office Address: 2 St. Stephen's Court, St. Stephen's Road, Bournemouth, Dorset, England, BH2 6LA.  VAT Registration No: 576 8795 61
Book a Property Valuation Update Cookies Preferences