Carlton Mansions, Randolph Avenue

Asking Price
£787,500
Under Offer
This property listing is now Under Offer

3 Bedroom Apartment for sale in London

1 3 1
  • Mansion Flat
  • Communal Gardens
  • Close to Tube Station
  • Reception Room
  • Eat-in Kitchen
  • Three Bedrooms
  • Family Bathroom
  • Share of Freehold
  • Top Floor
  • Double Glazed Windows

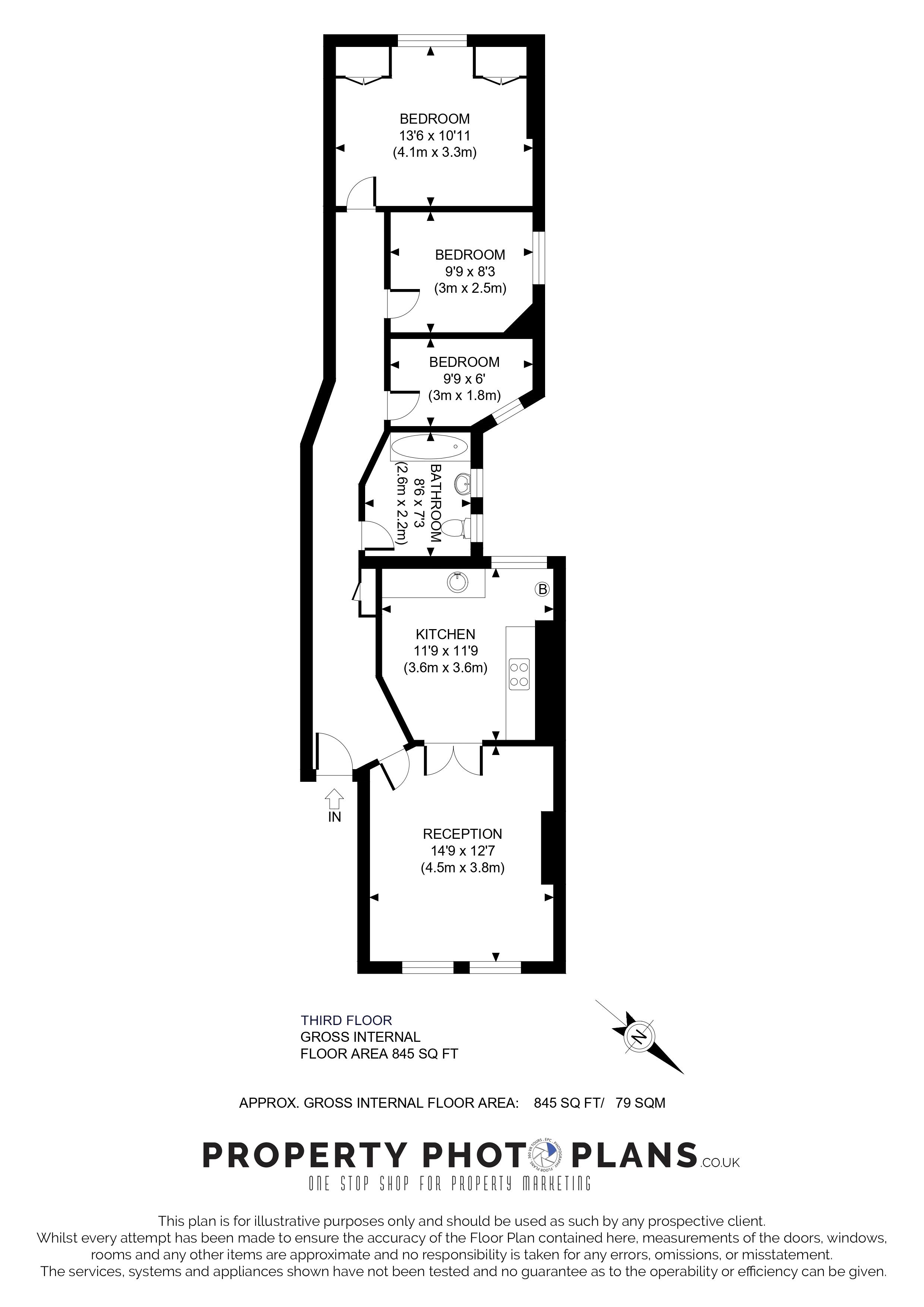
A spacious and nicely presented three bedroomed apartment on the third floor of this attractive red brick mansion block including caretaker services. This property benefits from excellent natural light being end of terrace, double glazing throughout, communal gardens and lovely views onto Paddington Recreation Ground from the main bedroom. The accommodation is well laid out and comprises: hallway with fitted cupboard, reception room with double door to a eat-in kitchen, family bathroom and three bedrooms. Randolph Avenue is a sought after tree lined residential street moments from the delightful open-spaces and facilities of Paddington Recreation Ground. The Tube station, Local shops and cafes are also very close by on Elgin Avenue. Share of Freehold. Lease remaining 978 years. Service Charge including sinking fund £5675 per annum. EPC = D. Council Tax = Band E.

Important Information

  • This is a Share of Freehold property.

Property Ref: EAXML1225_12754630

Share:

Similar Properties

Randolph Avenue, Maida Vale W9

2 Bedroom Apartment | Asking Price £779,950

A beautifully presented apartment on the raised ground floor of this well maintained converted Victorian mid-terraced ho...

Essendine Road, Fully Refurbished / Communal Garden

2 Bedroom Apartment | Asking Price £775,950

A beautifully presented first floor, two double bedroom converted flat in a end of terrace period property, with communa...

Randolph Avenue, London

2 Bedroom Flat | Asking Price £760,000

Ashley Milton are pleased to bring to market this end of terrace larger than average 766 sqft first floor two double bed...

Kilburn Park Road, London

2 Bedroom Apartment | Asking Price £795,000

A beautifully presented apartment set within a sought-after development, ideally located close to a wide range of transp...

Clarendon Court, London

2 Bedroom Apartment | Asking Price £880,000

A Stunning 820 sq ft Two-Bed, Two-Bath Apartment in prestigious Little Venice Mansion Block Presented in exceptional con...

Wymering Road, London

1 Bedroom Apartment | Asking Price £895,000

This extensively refurbished property really needs to be seen to be fully appreciated. It has a wonderful unobstructed s...

Ashley Milton Property Agents (Maida Vale)

Maida Vale, London, W9 1JS

020 7286 6565

How much is your home worth?

Use our short form to request a valuation of your property.

Request a Valuation

Mortgage Calculator

Amount Borrowed: £
Total Amount Repayable: £
Total Monthly Payment: £
©2026 The Guild of Property Professionals. All rights reserved. Terms and Conditions | Privacy Policy | Cookie Policy | Complaints Policy | Members Login
The Guild of Property Professionals Trading Address: 121 Park Lane, London W1K 7AG. GPEA Limited. Registered in England & Wales.  Company No: 02819824.  Registered Office Address: 2 St. Stephen's Court, St. Stephen's Road, Bournemouth, Dorset, England, BH2 6LA.  VAT Registration No: 576 8795 61
Book a Property Valuation Update Cookies Preferences