Delaware Road, London

Asking Price
£899,000
SSTC
This property listing is now SSTC

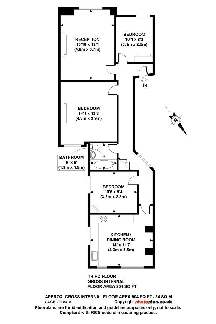
3 Bedroom Apartment for sale in London

1 3 1
  • TOP FLOOR MANSION FLAT
  • PERIOD FEATURES
  • RECEPTION ROOM
  • KITCHEN DINER
  • THREE BEDROOMS
  • BATHROOM
  • CLOSE TO TRANSPORT

A nicely presented three bedroom apartment on the top floor of this attractive red brick mansion block. The property has original fireplaces and the accommodation comprises: reception room, eat-in kitchen, three double bedrooms and bathroom. Located on this quiet one way street close to the open-spaces of Paddington recreation ground. Maida Vale and Warwick Avenue underground stations (Bakerloo Line) are within close proximity. Leasehold. EPC = C

Important Information

  • This is a Freehold property.

Property Ref: EAXML1225_10668604

Share:

Similar Properties

Wymering Road, London

1 Bedroom Apartment | Asking Price £895,000

This extensively refurbished property really needs to be seen to be fully appreciated. It has a wonderful unobstructed s...

Sutherland Avenue - 40 ft Private Garden

2 Bedroom Apartment | Asking Price £849,999

Located on one of Maida Vale's most desirable roads is this spacious two double bedroom garden flat. The property is in...

Carlton Mansions, Randolph Avenue

3 Bedroom Apartment | Asking Price £787,500

A spacious and nicely presented three bedroomed apartment on the third floor of this attractive red brick mansion block...

Amberley Road - Three Bed Duplex / Garden

3 Bedroom Apartment | Asking Price £990,000

An immaculately presented three bedroomed duplex apartment arranged over the ground and lower ground floors of the well...

Finchley Road, London

5 Bedroom House | Asking Price £999,999

MIXED USE FREEHOLD INVESTMENT / DEVELOPMENT OPPORTUNITY. Four storey end of terrace building with garage. Lower ground...

Dixon Butler Mews, London

3 Bedroom Apartment | Asking Price £1,000,000

An exceptional three bedroom two bath room apartment on the first floor (with lift) of the recently constructed secure '...

Ashley Milton Property Agents (Maida Vale)

Maida Vale, London, W9 1JS

020 7286 6565

How much is your home worth?

Use our short form to request a valuation of your property.

Request a Valuation

Mortgage Calculator

Amount Borrowed: £
Total Amount Repayable: £
Total Monthly Payment: £
©2025 The Guild of Property Professionals. All rights reserved. Terms and Conditions | Privacy Policy | Cookie Policy | Complaints Policy | Members Login
The Guild of Property Professionals Trading Address: 121 Park Lane, London W1K 7AG. GPEA Limited. Registered in England & Wales.  Company No: 02819824.  Registered Office Address: 2 St. Stephen's Court, St. Stephen's Road, Bournemouth, Dorset, England, BH2 6LA.  VAT Registration No: 576 8795 61
Book a Property Valuation Update Cookies Preferences