Gordon Road, Nunhead, SE15

Guide Price
£1,250,000
SSTC
This property listing is now SSTC

4 Bedroom Terraced House for sale in London

2 4 3
  • Garden Studio
  • Impressive Kitchen and Loft Extensions
  • Generous Storage and Utility
  • Prized Location
  • Freehold

GUIDE PRICE £1,250,000 TO £1,350,000.

Handsomely Extended Four Bedroom Period Home With Garden Studio.

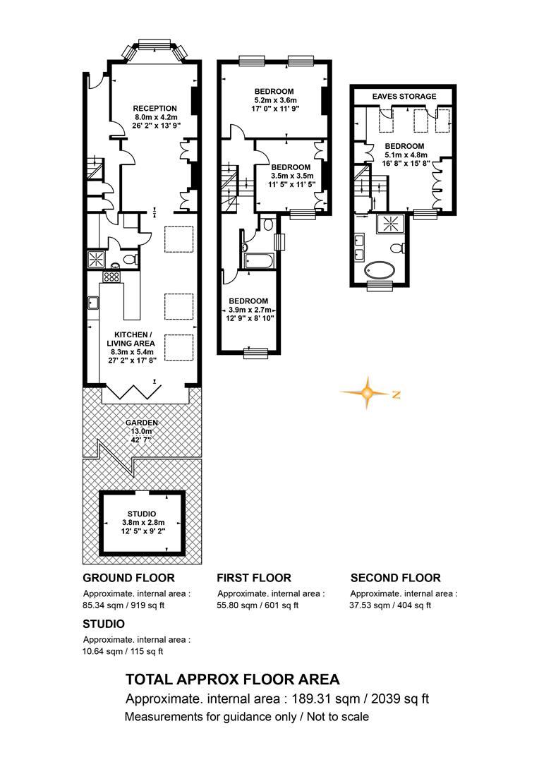
Boasting a wonderful full-width kitchen extension and a magnificent loft suite, this four bedroom family home lets you spread your wings wide. The decor is sympathetic and there's plenty of storage and a fab garden studio too! The accommodation comprises a double reception, huge kitchen/living space, four lovely double bedrooms, two fab bathrooms and a handy utility/shower room. You couldn't ask for a better location! Here you are close to three stations: Nunhead offers regular services to Victoria and Blackfriars, Queens Road Peckham will get you into London Bridge in five minutes (and Victoria in slightly longer) while Peckham Rye serves all three London termini. The two latter stations each also enjoy the London Overground line. Nunhead Lane, at the southern end of the road past the green, is a good place for local grocery shopping - it has a wet fish shop, a proper bakery and a greengrocer.

A pretty exterior greets you brightly with duck egg walls and neat front garden. The inner hall has wooden floors, an arched ceiling architrave and neutral decor. A huge double reception invites you left to find a wide bay with charming window seat and louvered blinds. Also on offer is a wood burning stove with period mantel and lovely tiled hearth. A matching hearth to the rear is flanked by low level storage units and shelving. Wide steps descend rear to your gargantuan kitchen/diner where three huge skylights afford a flood of natural light. There's a long breakfast bar and additional formal/family dining, a butler sink and a six ring gas range. Wide bi-fold glass doors slide full-width for your guests to spill onto the patio. It blends beautifully with the interior. From here a healthy and generous lawn precedes the garden studio which has its own decked patio. This enjoys summer sun till 7pm ! Perfect for an early evening aperitif. The studio benefits from electricity and peaceful vibes. It's the perfect work-from-home space. The garden has a wonderful secure appointment being mid-terrace.

Back inside you find a welcome utility space off the kitchen with an adjoining shower room. This handily wraps around to the hall. Upward bound you meet a huge front-facing double bedroom stretching to full width. There's a lovely original ornate feature fireplace, fitted wardrobes and sky-blue feature wall. Bedroom two has more fitted storage and peaceful rear views. To the rear of the landing you find a family bathroom with pristine white suite, frosted side aspect sash window. Bedroom three, a peaceful rear-facing double steals calming garden views.

A neat staircase with white treads and risers and matching runner ascends from the landing to a rear-facing bathroom with space-saving sliding door. Geometric floor tiles make for a snazzy finish and there's a huge double walk-in shower, twin wash hand basins and a most lovely roll top bath with ornate legs. The top master bedroom sits through another nifty recessed door and spans a notably impressive space. Three front aspect Velux and a gorgeous picture window ensure maximum airiness. There's tonnes of fitted shelving and additional storage in the eaves.

You're within a 10-15 minute walk of all that Peckham offers, like the massively popular 'Frank's Café' - great for a summer pint and some fab city views. Peckham Bazzar is a much-loved local watering hole/restaurant - it's just a moment's stroll. Or, for any amount of exotic produce, nip down to Rye Lane which is equally close. The Bussey Building offers a great mix of culture and social fun. Other yummy restaurants include Mr Bao, Kudu and the Greek Mezze restaurant just a few moments around the corner. Skehan's pub on Telegraph Hill was recently voted London's top boozer by Timeout! If you fancy a coffee and a read, head to Good cup or Mosely - both an easy stroll.

Nearby Lordship Lane has just about everything to save you heading to town - boutiques, cafés, deli's, pubs and clubs - it's a real plus. Peckham Rye Park or beautiful, peaceful Nunhead Cemetery are close by for a Sunday stroll. Also close-by are Cossal Park, Harold Moody Park and Nunhead Green. Sydenham Hill Woods is a quick drive for yet more leafy r&r as is the Horniman Museum, South London Gallery and the Hannah Barry Gallery.

Tenure: Freehold

Council Tax Band: D

Property Ref: 58297_33127593

Share:

Similar Properties

Graces Road, Camberwell, SE5

4 Bedroom Terraced House | Guide Price £1,250,000

Three/Four Bedroom Period Home With Gorgeous Decor and Generous Garden. GUIDE PRICE: £1,250,000 TO £1,300,000. This magn...

Bushey Hill Road, Camberwell, SE5

3 Bedroom Terraced House | Offers in excess of £1,250,000

Elegantly Presented Three Bedroom Period Home With Fantastic Garden. There's a uniquely lovely vibe throughout this eleg...

Camberwell Grove, Camberwell, SE5

4 Bedroom Terraced House | Offers in excess of £1,250,000

Wonderful Grade II Listed Four Bedroom Georgian Home Over Four Floors - CHAIN FREE. Resting along the oldest part of the...

Chadwick Road, Peckham, SE15

3 Bedroom Terraced House | Guide Price £1,300,000

GUIDE PRICE £1,300,000 to £1,350,000A Unique and Well Proportioned Three Bedroom Period Charmer with Dishy Finish and Pr...

Peckham Hill Street, Peckham, SE15

4 Bedroom Semi-Detached House | £1,350,000

Expertly Restored Three/Four Bedroom Double-Fronted Georgian Home with Generous Garden and Studio - CHAIN FREE.We've sim...

Anstey Road, Peckham, SE15

5 Bedroom Terraced House | £1,350,000

Sublime Four/Five Bedroom Period Home With Impressive Loft and Kitchen Extensions. With a magnificent full-width kitchen...

Wooster & Stock (Nunhead)

Nunhead Green, Nunhead, London, SE15 3QQ

020 7952 0595

How much is your home worth?

Use our short form to request a valuation of your property.

Request a Valuation

Mortgage Calculator

Amount Borrowed: £
Total Amount Repayable: £
Total Monthly Payment: £
©2025 The Guild of Property Professionals. All rights reserved. Terms and Conditions | Privacy Policy | Cookie Policy | Complaints Policy | Members Login
The Guild of Property Professionals Trading Address: 121 Park Lane, London W1K 7AG. GPEA Limited. Registered in England & Wales.  Company No: 02819824.  Registered Office Address: 2 St. Stephen's Court, St. Stephen's Road, Bournemouth, Dorset, England, BH2 6LA.  VAT Registration No: 576 8795 61
Book a Property Valuation Update Cookies Preferences