Choumert Road, Peckham, SE15

£1,500,000
Under Offer
This property listing is now Under Offer

4 Bedroom Terraced House for sale in London

2 4 2
  • Off Street Parking
  • Impressive Living Space
  • Sunny Rear Garden With Direct Access
  • Freehold

Beautifully Presented Four Bedroom Converted Victorian Shop With Sunny Garden.

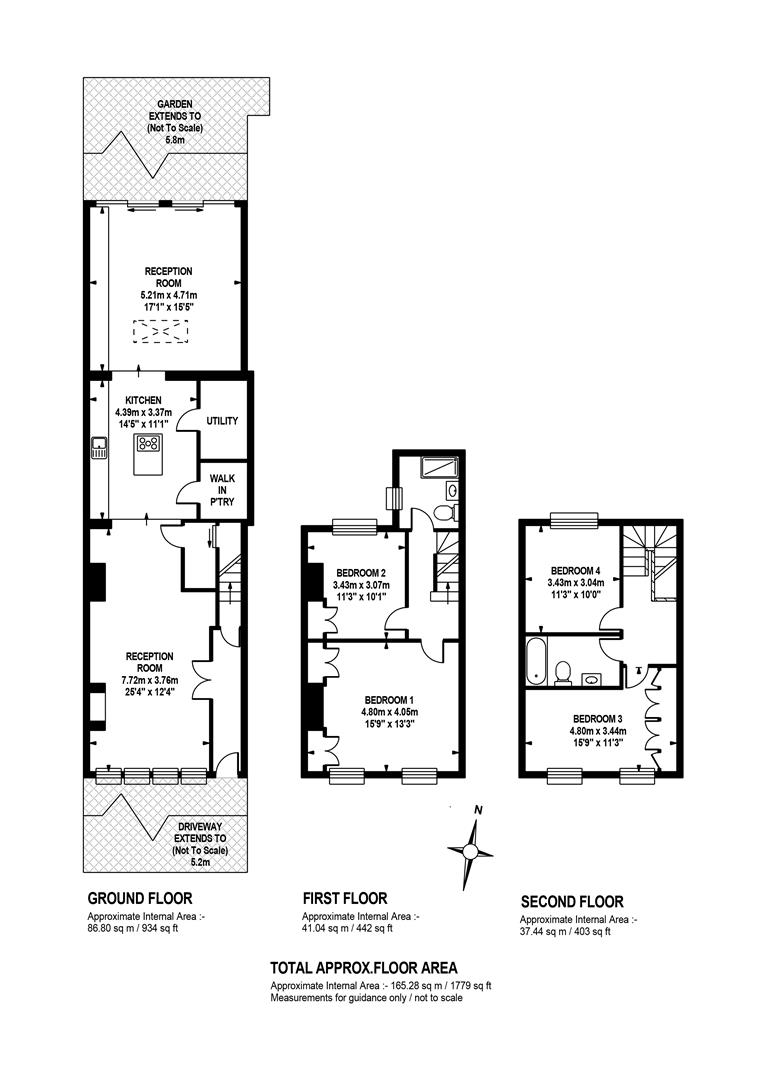
Expertly converted from a Victorian glass-manufacturing shop, this circa 1800 square foot unique building makes a most elegant four bedroom home, perfect for both families and for entertainment. Spread generously over three spacious floors, the accommodation sprawls to comprise a vast living area with two separate lounges, a dining area and a contemporary kitchen, four dishy bedrooms, a shower room and a bathroom. There's off-street space for a family SUV out front and a sunny, paved garden out back. You can sample the dishy delights of Bellenden Village in seconds, while Rye Lane is a one minute stroll down the road. You can be at Peckham Rye Station in less than five minutes more for swift, frequent services to central London, London Bridge, Canary Wharf, and beyond. You're within the catchment for the highly considered Belham Primary School and The Villa nursery and pre-prep is a short walk away.

The exterior is particularly handsome, enjoying London stock brickwork and some mature greenery. Past the off-street parking area you enter into an inviting hallway with wooden panelling to dado level. The living area runs open-plan to the full impressive depth of the property - over 18m in total! A seating area fronts the property with seven double glazed wooden framed sash windows with louvered shutters and floor to ceiling shelving for your books and holiday snaps. A wide dining area leads past a deep understairs storage point, and down one step to the kitchen with its sparkly-white countertops and splashback, modern appliances and plenty of storage. The walk-in pantry and the central island offer even more storage to meet the needs of any family, while the separate laundry room with fitted cupboards and space for customary appliances works had to keep the rest of the house tidy and neat.

Beyond this you meet a wonderful lounge kept bright by an overhead vaulted skylight. Integrated units on the left wall will house the largest of flat screens, while a wall of new gliding glass doors opens up to the pretty garden. This is paved and has mature creepers, wooden planter boxes, shed and a rear access point - perfect for mucky dogs and messy kids.

A door off the entrance hall opens to a white painted staircase with a stripy woollen runner. There's a fully tiled contemporary shower room on the return with a white suite and large walk-in shower. The first floor hosts two wonderful bedrooms. The large front facing carpeted double has fitted storage and plenty of space to add a chill-out or a work corner. To the rear is another double with a peaceful aspect and some fab terracotta-tone walls. Upward again you meet a similarly impressive front-facing double with bespoke storage. A second family bathroom sits next door with a fourth and final double bedroom completing the tour.

Choumert Road forms part of a magical collection of period streets: this leafy, mature and community-driven neighbourhood is bursting with creativity. Peckham Rye Station is less than a 5 minute walk for swift and frequent services to London Bridge, Victoria and Blackfriars. Denmark Hill is also easily reached on foot or train. There's a whole variety of buses run into town along Peckham Road and Rye Lane just five minutes away. Shops, restaurants and green spaces in East Dulwich, Camberwell and Peckham are all nearby. Local bars include The Montpelier, The Victoria Inn, The Clock House Tavern, The Herne Tavern, and many more - all cracking places to meet all your new neighbours. The neighbourhood is bursting with culinary delights from the much feted Artusi and the Begging Bowl on Bellenden Road, to Mr Bao for buns by the Rye, to Levan and Hausu the latest cutting-edge eateries by the station. And Made of Dough and Pizzeria 081 dish out some of the best pizzas in town! This area is spoilt for green spaces, with the playgrounds of Warwick Gardens - a mere 5 minutes walk away - providing endless places of entertainment for young and older children alike, while the 120 acre Peckham Rye Common, a small walk away in the other direction, offering vast open spaces for sports and strolls alike.

Tenure: Freehold

Council Tax Band: F

Property Ref: 58297_34358410

Share:

Similar Properties

Asylum Road, Peckham, SE15

4 Bedroom Semi-Detached House | Guide Price £1,500,000

Elegant Three/Four Bedroom Victorian Home With Beautiful Garden - CHAIN FREE. GUIDE PRICE: £1,500,000 to £1,600,000. Ris...

Crofton Road, Camberwell, SE5

4 Bedroom Terraced House | Offers in excess of £1,500,000

Double-Fronted 3/4 Bedroom Victorian Home circa 1900 sq ft on Best Street. A stunning, double-fronted beauty with impres...

Lyndhurst Grove, Peckham, SE15

4 Bedroom Terraced House | Guide Price £1,500,000

GUIDE PRICE £1,500,000 TO £1,550,000. Huge Four Bedroom Contemporary Home Spanning Over 2000 sq ft With OSP - CHAIN FREE...

Amott Road, Peckham, SE15

5 Bedroom Terraced House | £1,685,000

Beautifully Extended Five Bedroom Period Home with Study and Generous Garden - CHAIN FREE.This expertly extended and sub...

Ashbourne Grove, East Dulwich, SE22

4 Bedroom Semi-Detached House | £1,695,000

Elegant Four Bedroom Period Home With Stunning Garden and Parking Moments From Lordship Lane.The current owners of this...

Camberwell Grove, Camberwell, SE5

5 Bedroom Terraced House | Offers in excess of £1,700,000

Divine Grade II Listed Five Bedroom Georgian Beauty With Roof Terrace on Best Street - CHAIN FREE. All the charm of a Ca...

Wooster & Stock (Nunhead)

Nunhead Green, Nunhead, London, SE15 3QQ

020 7952 0595

How much is your home worth?

Use our short form to request a valuation of your property.

Request a Valuation

Mortgage Calculator

Amount Borrowed: £
Total Amount Repayable: £
Total Monthly Payment: £
©2026 The Guild of Property Professionals. All rights reserved. Terms and Conditions | Privacy Policy | Cookie Policy | Complaints Policy | Members Login
The Guild of Property Professionals Trading Address: 121 Park Lane, London W1K 7AG. GPEA Limited. Registered in England & Wales.  Company No: 02819824.  Registered Office Address: 2 St. Stephen's Court, St. Stephen's Road, Bournemouth, Dorset, England, BH2 6LA.  VAT Registration No: 576 8795 61
Book a Property Valuation Update Cookies Preferences