Talfourd Road, Camberwell, SE5

Guide Price
£650,000

3 Bedroom Apartment for sale in London

1 3 1
  • Large Shared Garden
  • Generous Proportions
  • Close to all Amenities
  • Period Features
  • Leasehold

GUIDE PRICE £650,000 to £675,000.

Perfectly Placed Victorian Three Bedder with Huge Shared Garden - CHAIN FREE.

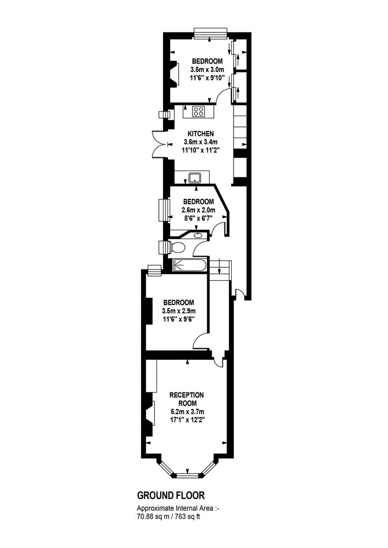
Taking the ground floor of a handsome period building along one of the area's most coveted streets, this terrific three bedder ticks all the boxes! Enjoying a lovely reception, separate kitchen/diner, three bedrooms and bathroom, the property allows you spread your wings wide. Access is also offered to a super-generous and mature communal garden in which you can hobnob with the friendly neighbours. Talfourd Road enjoys a friendly atmosphere with summer street parties and even a monthly street closure for children's play. Sitting within a pleasurable 10-minute ramble of bountiful Bellenden Village, it offers easy access to a seemingly endless list of bars, shops and pubs. Camberwell and its ever-growing list of social attractions is easily reached on foot too. Transport is a cinch with Peckham Rye Station a seven-minute stroll for swift, regular services to London Bridge, Victoria, Elephant and Castle, Blackfriars, Farringdon, Shoreditch and plenty more besides.

The dishy double-fronted red bricked exterior invites you through a shared garden and entrance. The inner has wooden floors and neutral decor - a theme in abundance throughout. A front-facing reception soaks in plenty of light through a wide bay window. A working wood burner will supply winter warming and there is some lovely bespoke storage and original picture rails. The first of your double bedrooms comes next along the hall with a peaceful rear aspect and more neutral tones. The bathroom precedes the second bedroom, a nicely appointed single room with a side aspect. Next comes the kitchen/diner which offers plenty of cabinet, counter and dining space. Both the kitchen and bathroom include concrete marble floors with underfloor heating. Access to the sizeable communal garden is also offered here. The third and final bedroom adjoins the kitchen with a lovely garden vista.

For coffee, croissants, books, antiques, flowers and dry-cleaning services, go no further than Bellenden Village (a 10-minute walk). We love Petitou, The Victoria Inn, Ganapati and The Begging Bowl. The much loved Toad bakery is even closer. The South London Gallery Café is great for impressing visitors with! Rye Lane is tantalisingly close for any amount of culture. The Bussey Building has some fab rooftop bars and even a cinema! The highly considered Villa Nursery is as close - now that's an easy morning drop off! The area has easy access to Peckham Rye (zone 2 and a brisk 5-minute walk) and Denmark Hill stations (also zone 2 and about a 12-minute walk away) for services to London Bridge, Victoria and Blackfriars. The London Overground whizzes you to Clapham, Shoreditch and Canada Water for the Jubilee Line. A whole variety of buses run into town along Peckham Road, just five minutes away. The wide-open green spaces of Peckham Rye Park are also within easy reach. Even closer is the very lovely Warwick Gardens. It's a fine spot for a read of the papers.

Tenure: Leasehold

Lease Length: 91 years

Council Tax Band: C

Property Ref: 34438807

Share:

Similar Properties

Camberwell Grove, Camberwell, SE5

2 Bedroom Flat | £650,000

GUIDE PRICE - £650,000 to £700,000. Gorgeous Grade II Listed Georgian Two Bedder on Finest Street - CHAIN FREE. With a p...

Camberwell Grove, Camberwell, SE5

3 Bedroom Flat | £650,000

Huge Georgian Three Bedder With Pretty Shared Garden - CHAIN FREE.Spreading its wings wide on the lower ground floor of...

Chadwick Road, Peckham, SE15

2 Bedroom Flat | Offers in excess of £650,000

Perfectly Placed and Generous Two Bedder with Pretty Patio Garden. Located literally seconds from the bustle and banter...

Grosvenor Terrace, Camberwell, SE5

2 Bedroom Apartment | £675,000

Spacious Split-Level Two Bedder With Private Front and Rear Gardens - CHAIN FREE.This handsome two bedder enjoys a peace...

Camberwell Grove, Camberwell, SE5

2 Bedroom Flat | £675,000

Wonderful Two Bedroom Georgian Conversion with Shared Garden - CHAIN FREE.Resting along the tree lined and magical Cambe...

Glengarry Road, East Dulwich, SE22

3 Bedroom Flat | Offers in excess of £675,000

Stunning Split-Level Three Bedroom Period Flat in Ideal Location.Situated on one of SE22's most sought-after roads, is t...

Wooster & Stock (Nunhead)

Nunhead Green, Nunhead, London, SE15 3QQ

020 7952 0595

How much is your home worth?

Use our short form to request a valuation of your property.

Request a Valuation

Mortgage Calculator

Amount Borrowed: £
Total Amount Repayable: £
Total Monthly Payment: £
©2026 The Guild of Property Professionals. All rights reserved. Terms and Conditions | Privacy Policy | Cookie Policy | Complaints Policy | Members Login
The Guild of Property Professionals Trading Address: 121 Park Lane, London W1K 7AG. GPEA Limited. Registered in England & Wales.  Company No: 02819824.  Registered Office Address: 2 St. Stephen's Court, St. Stephen's Road, Bournemouth, Dorset, England, BH2 6LA.  VAT Registration No: 576 8795 61
Book a Property Valuation Update Cookies Preferences