Iverson Road West Hampstead

Asking Price
£565,000
SSTC
This property listing is now SSTC

1 Bedroom Flat for sale in London

1 1 1
  • Charming Period Residence
  • Stunning Garden Apartment
  • Private 55ft Garden
  • Private Wood Decking Area
  • Beautifully Presented Throughout
  • Fantastic Central West Hampstead Location
  • Long Lease

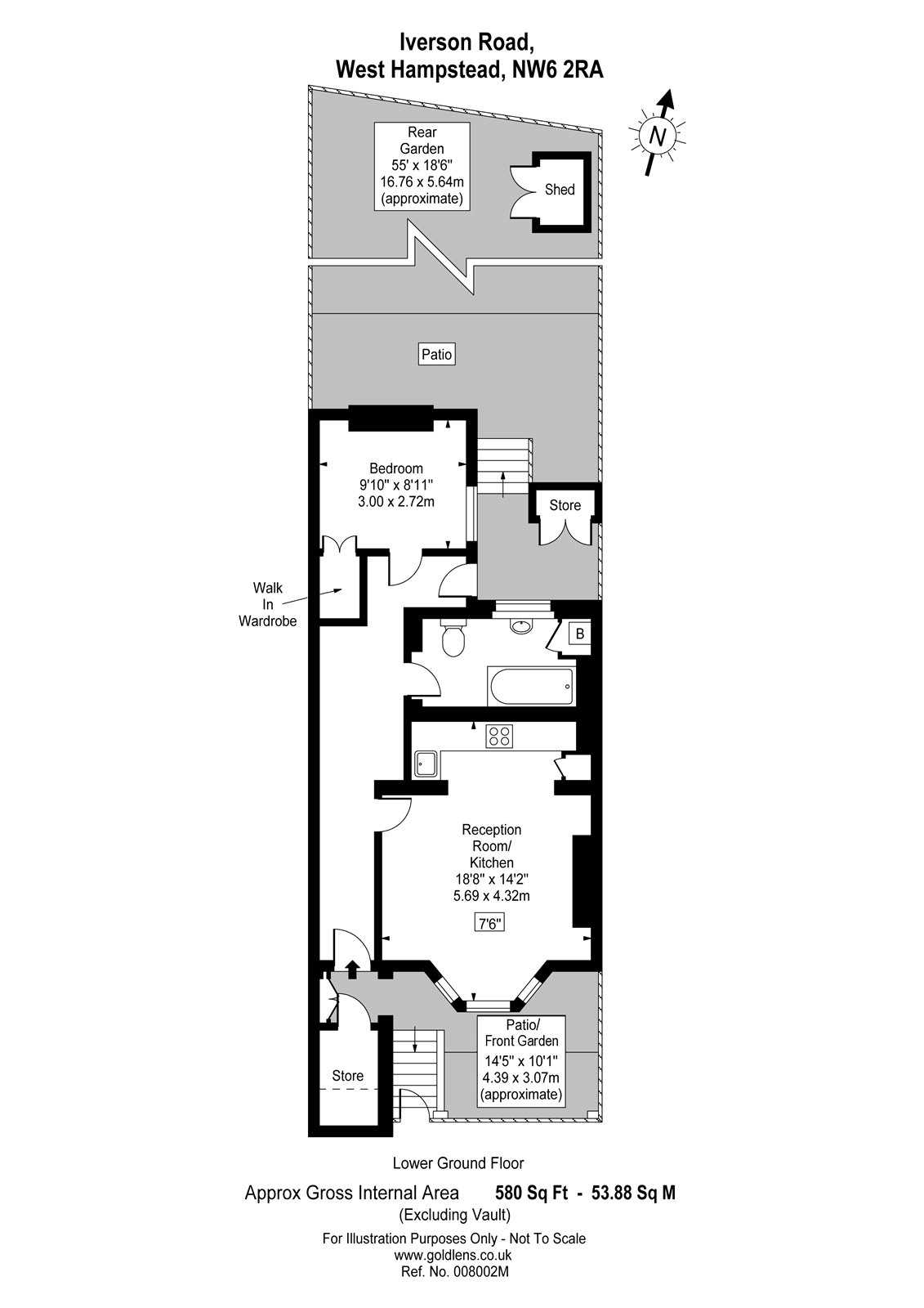
We are delighted to offer this beautifully presented one bedroom garden apartment which has been extremely well looked after by the proud and meticulous current owner.



This charming period residence benefits from wooden flooring throughout, a striking bay window in the reception area, an open-plan fully fitted kitchen with ample storage, a principle bedroom with a large walk in storage cupboard and a modern well-presented bathroom suite. Further benefits include your own private entrance as well as charming period features throughout.



This beautifully landscaped, larger than average 55 ft private garden also consists of wonderfully crafted and substantial wood decking area which is also perfect for entertaining during the summer months.



Iverson Road is perfectly positioned for all the fantastic shops, restaurants and bars of West Hampstead. It is also moments away from all the exceptional transport links such as the Jubilee Line, London Overground and Thames Link services.

Important Information

  • This is a Leasehold property.
  • EPC Rating is C

Property Ref: WES_WES200024

Share:

Similar Properties

Harrow Road, NW10

1 Bedroom Flat | Asking Price £550,000

Set within The Vabel Chamberlayne, an exceptional development by the acclaimed Vabel, this beautifully crafted one bedro...

Fortune Green Road, West Hampstead

2 Bedroom Flat | Asking Price £550,000

A brand new two bedroom first floor apartment located opposite Fortune Green Park in the heart of West Hampstead. The a...

High Road, Finchley

2 Bedroom Maisonette | Guide Price £495,000

A recently refurbished two bedroom, one bathroom garden flat located in East Finchley. The property comprises of a gre...

Sidmouth Road NW2

3 Bedroom Flat | Guide Price £575,000

Occupying the third floor of an elegant period mansion block, this apartment offers over 1,300 sq ft of well-planned liv...

Kingdon Road, West Hampstead

2 Bedroom Ground Floor Flat | Asking Price £595,000

This charming raised ground floor apartment is situated in one of West Hampstead’s most sought-after locations. The pro...

South Hampstead, NW6

2 Bedroom Flat | Guide Price £599,950

Introducing this charming 2-bedroom, top floor apartment in the picturesque, tree lined street of Woodchurch Road in Sou...

Oakhill Residential (Camden)

West Hampstead, Camden, London, NW6 1DS

020 3544 4444

How much is your home worth?

Use our short form to request a valuation of your property.

Request a Valuation

Mortgage Calculator

Amount Borrowed: £
Total Amount Repayable: £
Total Monthly Payment: £
©2025 The Guild of Property Professionals. All rights reserved. Terms and Conditions | Privacy Policy | Cookie Policy | Complaints Policy | Members Login
The Guild of Property Professionals Trading Address: 121 Park Lane, London W1K 7AG. GPEA Limited. Registered in England & Wales.  Company No: 02819824.  Registered Office Address: 2 St. Stephen's Court, St. Stephen's Road, Bournemouth, Dorset, England, BH2 6LA.  VAT Registration No: 576 8795 61
Book a Property Valuation Update Cookies Preferences