Perth Road, Wood Green , London, N22

£600,000
Under Offer
This property listing is now Under Offer

3 Bedroom Terraced House for sale in London

2 3 1
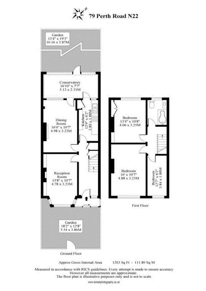
  • Three Bedrooms
  • Two Reception Rooms
  • Sun Room / Conservatory
  • Under floor heated modern upstairs Bathroom
  • Light and spacious (1203 square foot)
  • Period Features
  • Potential for a Loft conversion (STPP)
  • Doubled Glazed and New Roof (EPC Rated C)
  • Lovely rear Garden
  • Close to Tube / All amenities

This spacious mid terraced 1930's home offers a perfect balance of stylish interior and original period plus a beautiful back garden. The loft space provides scope for a loft conversion (STPP).
 
This tasteful home has original stripped & stained wooden flooring, 2 reception rooms, fire places, bright conservatory, fully double glazed & gas central heating.
 
This is a great location in N22 with close access to the shopping area and cinema complex as well as the many cafés and restaurants. The Piccadilly Line Underground Station at Wood Green is a 10 minute walk away, providing excellent transport links to the City of London and to the West End. The property is also within a short distance of the fashionable areas of Green Lanes Haringay, Crouch End and Alexandra Palace, with a variety of local restaurants and shops..

Important Information

  • This is a Freehold property.

Property Ref: DWR000EC2

Share:

Similar Properties

Vicarage Road, Tottenham, London, N17

4 Bedroom House | £600,000

Sole Agents! Knights are delighted to offer for sale this Victorian family home boasting Two reception rooms, Kitchen Di...

Parkview Road, London, N17

3 Bedroom House | Guide Price £600,000

Well-presented mid terrace 3 bedroom 1930's style home located in the desirable Tottenham Hale area overlooking Down Lan...

Langham Road, London, N15

2 Bedroom Terraced House | £600,000

Immaculate 2 bedroom Half house located within a walking distance to Turnpike Lane station. This tasteful property is in...

Strode Road , Tottenham, London, N17

2 Bedroom Terraced House | £610,000

This beautifully presented home benefits from a secluded private garden, two well-proportioned double bedrooms, full dou...

Radley Road, London, N17

4 Bedroom House | Offers in excess of £610,000

Large Victorian Terraced house located in a sought after area & within a walking distance to Bruce grove station. This h...

Lansdowne Road, London, N17

3 Bedroom Terraced House | £615,000

Knights Residential are delighted to offer this stunning three-bedroom, bay fronted, Victorian family home.This well pre...

Knights Residential (Tottenham)

Tottenham, London, N17 9TA

0208 885 6800

How much is your home worth?

Use our short form to request a valuation of your property.

Request a Valuation

Mortgage Calculator

Amount Borrowed: £
Total Amount Repayable: £
Total Monthly Payment: £
©2026 The Guild of Property Professionals. All rights reserved. Terms and Conditions | Privacy Policy | Cookie Policy | Complaints Policy | Members Login
The Guild of Property Professionals Trading Address: 121 Park Lane, London W1K 7AG. GPEA Limited. Registered in England & Wales.  Company No: 02819824.  Registered Office Address: 2 St. Stephen's Court, St. Stephen's Road, Bournemouth, Dorset, England, BH2 6LA.  VAT Registration No: 576 8795 61
Book a Property Valuation Update Cookies Preferences