Daneland, London, EN4

Guide Price
£650,000
Under Offer
This property listing is now Under Offer

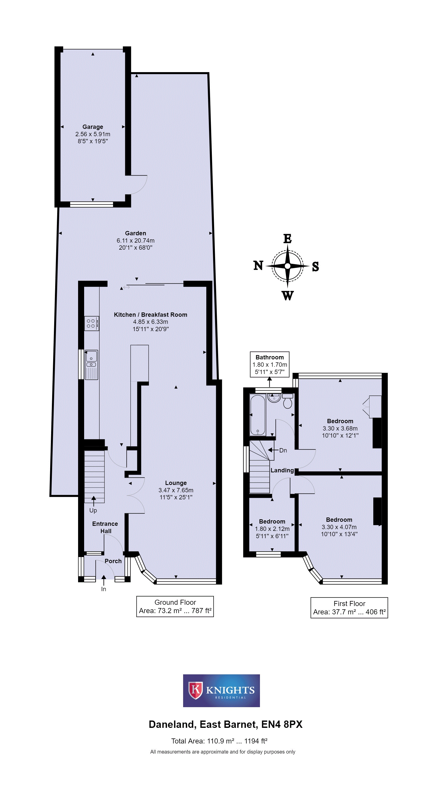
3 Bedroom End of Terrace House for sale in London

1 3 1
  • 3 Bedroom 1930's style Home
  • End Of Terrace
  • Extended Kitchen Diner
  • Fully double Glazed
  • Off Street Parking
  • Potential for Loft Conversion(STPP)

Knights Residential are delighted to offer this 3 Bedroom 1930's style End of Terrace family home located within close proximity to Oakwood/Cockfosters & Southgate  Underground Stations.
 
This property benefits from off street parking, side access to the garden, extended kitchen diner, down stairs W/C, upstairs Bathroom, fully double glazed, gas central heating & potential for loft conversion(STPP)
 
This home is easy reach of Oak Hill Park, East Barnet village and well regarded junior and senior schools.

Important Information

  • This is a Freehold property.

Property Ref: THM001122

Share:

Similar Properties

Mount Pleasant road, London, N17

4 Bedroom Terraced House | £650,000

Spacious 4 bedroom Victorian Terraced period home  located on a sought after residential road, within easy reach of both...

Mount Pleasant Road, Tottenham, London, N17

4 Bedroom Terraced House | £650,000

Knights Residential are delighted to offer for sale this Four Bedroom Victorian Freehold House Located in a desirable lo...

Tynemouth Terrace, Tynemouth Road, London, N15

3 Bedroom House | £650,000

3 Bedroom Victorian Terraced house located within a walking distance to Tottenham Hale & Seven Sisters station. This pro...

Dongola Road, Tottenham, London, N17

4 Bedroom Terraced House | Offers in excess of £660,000

Knights Residential are delighted to offer for sale this tasteful CHAIN FREE 4 Bedroom double bay Victorian Terraced Fre...

Argyle Road, London, N17

3 Bedroom House | Guide Price £660,000

Stunning 3 Bedroom Victorian Terraced home for sale, with many original period features throughout & located in a desira...

Newlyn road, Tottenham, London, N17

3 Bedroom House | Guide Price £675,000

Knights are delighted to offer this stunning large 3 bedroom Victorian bay fronted terraced home located within a walkin...

Knights Residential (Tottenham)

Tottenham, London, N17 9TA

0208 885 6800

How much is your home worth?

Use our short form to request a valuation of your property.

Request a Valuation

Mortgage Calculator

Amount Borrowed: £
Total Amount Repayable: £
Total Monthly Payment: £
©2026 The Guild of Property Professionals. All rights reserved. Terms and Conditions | Privacy Policy | Cookie Policy | Complaints Policy | Members Login
The Guild of Property Professionals Trading Address: 121 Park Lane, London W1K 7AG. GPEA Limited. Registered in England & Wales.  Company No: 02819824.  Registered Office Address: 2 St. Stephen's Court, St. Stephen's Road, Bournemouth, Dorset, England, BH2 6LA.  VAT Registration No: 576 8795 61
Book a Property Valuation Update Cookies Preferences