Greyhound Road, London, N17

Guide Price
£320,000
Under Offer
This property listing is now Under Offer

1 Bedroom Apartment for sale in London

1 1 1
  • SHARE OF FREEHOLD
  • One Bedroom Conversion offered on a Chain Free Basis
  • Ground Floor Apartment with its own secluded garden
  • Fully double glazed & Gas Central heating
  • Desirable Location
  • Great Transport Links

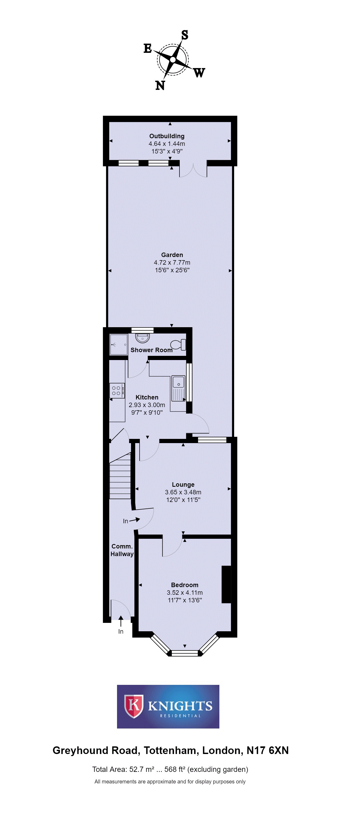
Knights are delighted to offer this well-presented Chain free one-bedroom Victorian Terraced conversion located in a desirable location in Tottenham.
This property is on the ground floor & has a well-presented secluded garden with a brick built shed at the rear.  This property is bright & airy & well presented. There is a fireplace in the bedroom, stripped & stained original wooden flooring, high ceilings, double bedroom, good size kitchen, fully double glazed, gas central heating & offers fantastic access to several transport links nearby & amenities.
 
Greyhound Road forms a part of a highly regarded collection of streets that run off Philip Lane. The road itself is peaceful with a strong community spirit and a good selection of family houses.
 
Transport links at both Seven Sisters & Tottenham Hale (Stansted Express Link) are within easy reach, and buses from the nearby High Road will take you into Central London. Local nurseries & schools are within close proximity while the award-winning Downhills Park & Tottenham Green Leisure centre are both just a short stroll away.

SHARE OF FREEHOLD
GROUND RENT: TBC
 
Please contact the sales team at Knights Residential.

EPC Rating: D
Council Tax:  C

Important Information

  • This is a Share of Freehold property.

Property Ref: THM_THM001258

Share:

Similar Properties

Woodside Gardens, Tottenham, London, N17

2 Bedroom Flat | £320,000

0.1 Mile from Bruce Grove Station. Knights are pleased to offer for sale this Two Bedroom First Floor Conversion located...

Millicent Fawcett, London, n17

2 Bedroom Apartment | Guide Price £320,000

An Immaculate Two bedroom Split level property located in the Heart of Tottenham Re- generation. This tasteful property...

Somerset Gardens, Creighton Road, Tottenham, London, N17

2 Bedroom Flat | £320,000

115 years LEASE! 0.2 miles from White Hart Lane station. Knights are pleased to offer for sale this TWO bedroom Top Floo...

Steele Road, Tottenham, London, N17

3 Bedroom Flat | £325,000

Knights are delighted to offer for sale this Three Bedroom Split Level Flat with its own balcony off the reception Room....

Fenman Court, Shelbourne Road, London, N17

2 Bedroom Flat | Guide Price £325,000

Moments away from Northumberland Park Station! Knights are delighted to offer for sale this Light and Airy Well presente...

Tenby Court, Walthamstow, London, E17

2 Bedroom Flat | £325,000

2 Bedroom split level flat located within a walking distance to Blackhorse road station. This large property benefits fr...

Knights Residential (Tottenham)

Tottenham, London, N17 9TA

0208 885 6800

How much is your home worth?

Use our short form to request a valuation of your property.

Request a Valuation

Mortgage Calculator

Amount Borrowed: £
Total Amount Repayable: £
Total Monthly Payment: £
©2025 The Guild of Property Professionals. All rights reserved. Terms and Conditions | Privacy Policy | Cookie Policy | Complaints Policy | Members Login
The Guild of Property Professionals Trading Address: 121 Park Lane, London W1K 7AG. GPEA Limited. Registered in England & Wales.  Company No: 02819824.  Registered Office Address: 2 St. Stephen's Court, St. Stephen's Road, Bournemouth, Dorset, England, BH2 6LA.  VAT Registration No: 576 8795 61
Book a Property Valuation Update Cookies Preferences