Morteyne road, London, N17

£470,000
Under Offer
This property listing is now Under Offer

2 Bedroom House for sale in London

2 2 1
  • Beautiful 2 Bedroom End of Terrace Home
  • Located in the Popular Tower Gardens Area
  • Original period features throughout including fireplaces & stripped & stained wooden flooring
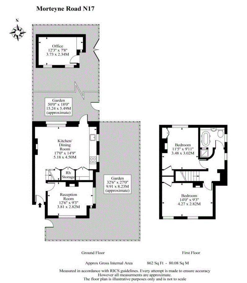
  • Stunning Landscaped Garden with Garden Office
  • Bright & Airy Property
  • Viewings Highly recommended

A beautifully finished 2 bedroom end of terrace house, situated in the leafy Tower Gardens conservation area. This recently refurbished property combines original period features with bespoke contemporary design. The property is flooded with natural light, with views out over the generous front and rear gardens.  

The ground floor comprises of a stylish kitchen living space overlooking the garden, with an additional lounge at the front of the house. Upstairs features two double bedrooms and family bathroom. The landscaped garden is a great entertaining space and boasts a detached garden office.
 
Other features include original cast iron fireplaces and wood floors, original sash windows with secondary glazing, bespoke kitchen and smart heating throughout, including underfloor heating to the bathroom. 
The property is well placed for access to both Wood Green and Turnpike Lane Underground stations (Zone 3 Piccadilly Line) and Bruce Grove Overground station (20 Mins to Liverpool Street St). Nearby attractions within a few minutes walk include the open recreational spaces of Bruce Castle Park and the Lordship Recreation Ground.

Important Information

  • This is a Freehold property.

Property Ref: THM_THM000E07

Share:

Similar Properties

Scotland Green , London, N17

3 Bedroom End of Terrace House | £470,000

Knights are delighted to offer for sale this stunning 3 bedroom End of Terraced home located within walking distance to...

The Avenue, Tottenham, N17

3 Bedroom House | £470,000

***Open Day Saturday 30th April 2016 at 2pm*** Knights are delighted to offer for sale this Three Bedroom Freehold 1930'...

Thackery Avenue, Tottenham, London, N17

2 Bedroom House | £470,000

Sole Agents! Knights are delighted to offer for sale this Victorian House Boasting Two Reception Rooms, Fitted Kitchen,...

White Hart Lane, London, N17

3 Bedroom House | £475,000

Knights Residential are delighted to offer this chain free 3 Bedroom Terrace home located within a close proximity to Wh...

Durban Road, Tottenham, London, N17

2 Bedroom Terraced House | Guide Price £475,000

Knights Residential are pleased to offer for sale this CHAIN FREE  2 Bedroom Victorian Terraced family home with 2 recep...

Crane Heights, Waterside Way, Tottenham Hale Village, N17

2 Bedroom Flat | £475,000

This property comes with a Parking Space! 24ft Open Plan Lounge with Fitted Kitchen, Two Double Bedrooms, En-suite to Ma...

Knights Residential (Tottenham)

Tottenham, London, N17 9TA

0208 885 6800

How much is your home worth?

Use our short form to request a valuation of your property.

Request a Valuation

Mortgage Calculator

Amount Borrowed: £
Total Amount Repayable: £
Total Monthly Payment: £
©2025 The Guild of Property Professionals. All rights reserved. Terms and Conditions | Privacy Policy | Cookie Policy | Complaints Policy | Members Login
The Guild of Property Professionals Trading Address: 121 Park Lane, London W1K 7AG. GPEA Limited. Registered in England & Wales.  Company No: 02819824.  Registered Office Address: 2 St. Stephen's Court, St. Stephen's Road, Bournemouth, Dorset, England, BH2 6LA.  VAT Registration No: 576 8795 61
Book a Property Valuation Update Cookies Preferences