Risley Avenue, Tottenham, N17

Asking Price
£485,000
Under Offer
This property listing is now Under Offer

2 Bedroom Terraced House for sale in London

2 2 1
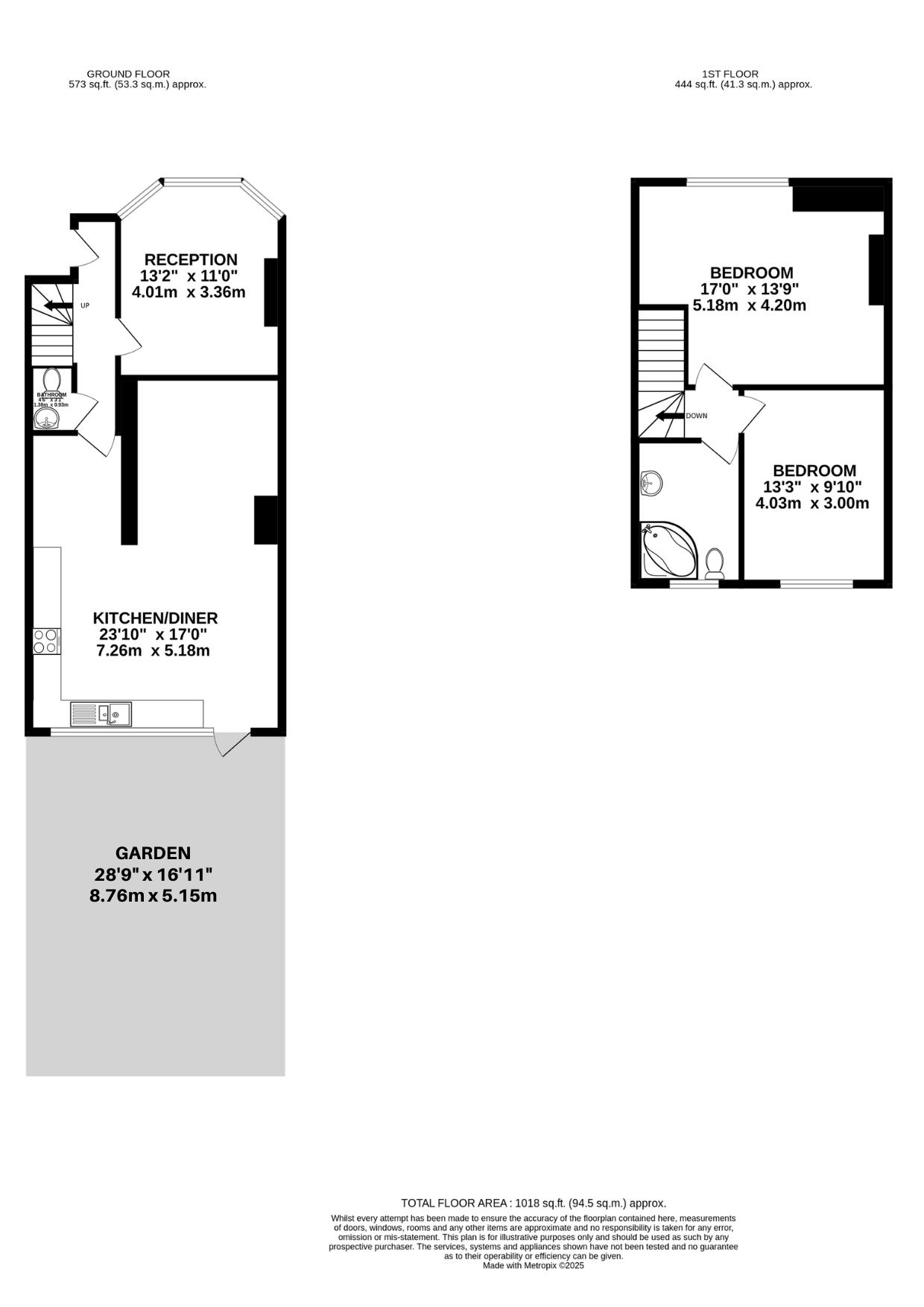
  • Two Bedroom Terraced House
  • Spacious Front Reception & Extended Rear Kitchen Diner
  • 3 Piece Bathroom Suite & 2 Piece W.C/Toilet
  • Private Rear Garden
  • Gas Central Heating & Double Glazing
  • Nearby: Bruce Grove Rail Station (Zone 3 / London Overground)
  • Nearby: White Hart Lane Rail Station (Zone 3 / London Overground)
  • EPC Rating: D | Council Tax Band: D

Filey Properties are delighted to offer on the market this larger than average Two Bedroom Terraced House situated in an extremely sought after location in Tottenham, N17.

Arranged over two floor to the ground floor you will find a Spacious Front Receptions, Large & extended Open-Plan Kitchen/Diner with a Fitted Kitchen Area, 2 Piece W.C/Toilet to the and a Private Rear Garden. To the first floor, there is are Two Bedrooms and a 3 Piece Bathroom Suite. The property further benefits from Gas Central Heating, Double Glazing and a mixture of Laminated/Tiled Flooring. We feel that this property could be a great Investment for an Investor or an ideal purchase for a First time Buyer.

This property is situated in a fantastic, popular & very central location with its close links to transport as Bruce Grove Rail Station (Zone 3 / London Overground) and White Hart Lane Rail Station (Zone 3 / London Overground) is within very close proximity of the property that is a major advantage to commuters and regular users of the London Overground Network along with the many bus routes on offer in the immediate area.

Call us Now to Arrange a Viewing!

EPC Rating - D

Council Tax Band – D

Borough – London Borough of Haringey

Tenure - Freehold

Further Information

Conservation Area: Yes – Tower Gardens Haringey

Flood Risk: Very Low 

Broadband: Basic (12 Mbps) / Superfast (80 Mbps) / Ultrafast (1800 Mbps)

Mobile Coverage: EE / Three / Vodafone / O2

Satellite/Fibre TV: BT / Sky / Virgin 

Disclaimer - The information contained herein has been obtained through sources deemed reliable but cannot be guaranteed by Filey Properties London Ltd as to its accuracy. Any information of special interest should be obtained through independent verification.

Important Information

  • This is a Freehold property.

Property Ref: fps01437

Share:

Similar Properties

Town Road, Edmonton, N9

2 Bedroom House | Asking Price £479,950

Filey Properties are delighted to offer on the market this TWO BEDROOM TERRACED HOUSE with a LOFT ROOM located in the he...

Beechwood House, Teale Street, E2

2 Bedroom Flat | Offers in excess of £475,000

Filey Properties are delighted to offer on the market this well-proportioned two-bedroom ex local authority flat is loca...

Lytton Avenue, Enfield, EN3

3 Bedroom Semi-Detached House | Asking Price £450,000

FILEY PROPERTIES are delighted to offer on the market this THREE BEDROOM END-TERRACED HOUSE with Side Access, situated i...

Vale Road, Haringey, N4

3 Bedroom Flat | Asking Price £500,000

Filey Properties are pleased to present this Three Bedroom Period Maisonette situated on the ever-popular Vale Road, N4,...

Cressington Close, Hackney, N16

2 Bedroom End of Terrace House | Asking Price £500,000

Filey Properties are delighted to offer on the market this Two Bedroom Split-Level Maisonette with a Private Garden situ...

Croyland Road, Edmonton N9

4 Bedroom End of Terrace House | Asking Price £525,000

FILEY PROPERTIES are delighted to offer on the market this FOUR BEDROOM END OF TERRACE HOUSE with, situated in a residen...

Filey Properties (Enfield)

78 Lancaster Road, Enfield, London, EN2 0BZ

0203 231 4081

How much is your home worth?

Use our short form to request a valuation of your property.

Request a Valuation

Mortgage Calculator

Amount Borrowed: £
Total Amount Repayable: £
Total Monthly Payment: £
©2026 The Guild of Property Professionals. All rights reserved. Terms and Conditions | Privacy Policy | Cookie Policy | Complaints Policy | Members Login
The Guild of Property Professionals Trading Address: 121 Park Lane, London W1K 7AG. GPEA Limited. Registered in England & Wales.  Company No: 02819824.  Registered Office Address: 2 St. Stephen's Court, St. Stephen's Road, Bournemouth, Dorset, England, BH2 6LA.  VAT Registration No: 576 8795 61
Book a Property Valuation Update Cookies Preferences