TAMAR WAY, London, N17

£285,000
Under Offer
This property listing is now Under Offer

1 Bedroom Apartment for sale in London

1 1 1
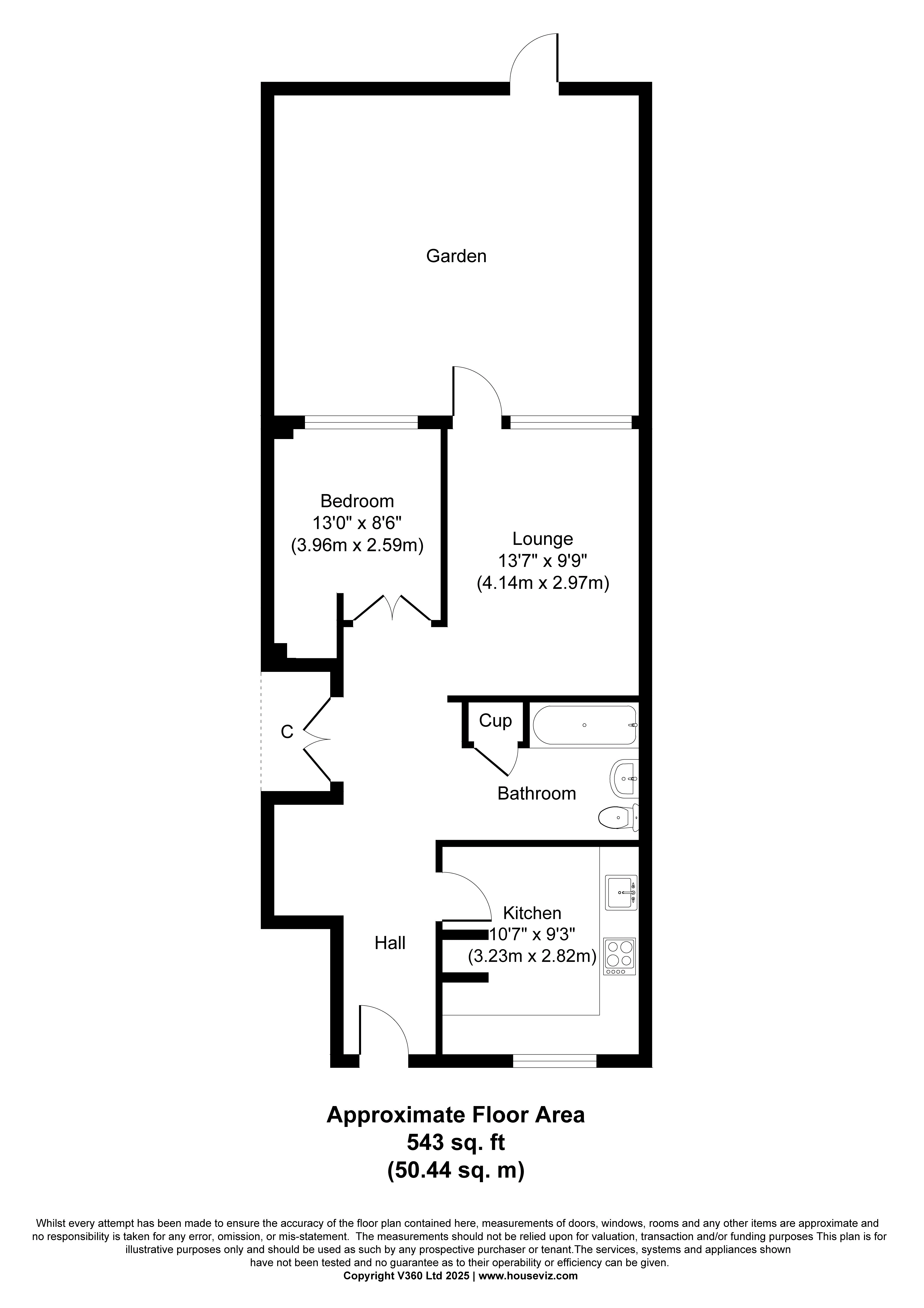
  • Well Presented One Bedroom Flat
  • Ground Floor
  • Own Front door & Private Rear Garden
  • Separate kitchen & Lounge
  • Fully Double glazed
  • Walking distance to the main High Road
  • Walking distance to Tottenham Hale & Seven Sister Station
  • Chain Free

NEW! Knights are delighted to offer to let this Chain Free ground floor one bedroom flat located within a purpose built development and close to transport links. The flat boasts laminated flooring, separate lounge/diner, private rear garden, own front door, gas central heating, fitted kitchen and double glazing.

Ideal for first-time buyers, investors, or anyone seeking a convenient London base.
 
Located close to Tottenham Hale station & Seven Sisters Station, the property offers excellent transport connections via both the Overground and Victoria Line (Zone 3), as well as the Stansted Express for direct access to the airport. Walthamstow and the scenic Walthamstow Wetlands are just minutes away, providing a mix of urban convenience and green space. Tottenham Hale Retail Park is within easy reach, offering a wide selection of shops and amenities.
 
This sought-after location combines excellent connectivity with a vibrant local community, and the property is offered to the market chain-free, making for a smooth and straightforward purchase.

EPC RATING: C
COUNCIL TAX BAND: B

Our Vendor has confirmed:
87 Years remaining on the Lease
Service Charges £187.92 per calendar month which includes £10 Ground Rent Per Year

Important Information

  • This is a Leasehold property.

Property Ref: THM_THM00145C

Share:

Similar Properties

North Birkbeck Road , Leyton, London, E11

1 Bedroom Apartment | Guide Price £285,000

Recently Refurbished. Knights Residential are delighted to offer for sale this Light and Airy 572 sq. ft One Bedroom Low...

Millicent Fawcette, London, N17

2 Bedroom Flat | £285,000

Knights are delighted to offer for sale this Split Level Two Bedroom Flat with Own Private Balcony off the Kitchen. 16ft...

Shelbourne Road, Tottenham, London, N17

2 Bedroom Apartment | Guide Price £285,000

Knights are delighted to offer for sale this Brick fronted first floor conversion flat benefiting from Two Bedrooms. 19f...

Bream Close, Tottenham Hale, London, N17

1 Bedroom Apartment | Guide Price £290,000

We are thrilled to present this bright and airy apartment facing the River Lea in the vibrant area of Tottenham Hale.The...

Shelbourne road, Tottenham, N17

2 Bedroom Flat | £290,000

Sole Agents !! Knights are delighted to offer for sale a Purpose built Maisonette benefiting from its own front door & o...

Robert Burns House, Northumberland Park, Tottenham, London, N17

2 Bedroom Flat | £290,000

Knights are delighted to offer for sale this split level Two double bedroom flat located within walking distance to Nort...

Knights Residential (Tottenham)

Tottenham, London, N17 9TA

0208 885 6800

How much is your home worth?

Use our short form to request a valuation of your property.

Request a Valuation

Mortgage Calculator

Amount Borrowed: £
Total Amount Repayable: £
Total Monthly Payment: £
©2025 The Guild of Property Professionals. All rights reserved. Terms and Conditions | Privacy Policy | Cookie Policy | Complaints Policy | Members Login
The Guild of Property Professionals Trading Address: 121 Park Lane, London W1K 7AG. GPEA Limited. Registered in England & Wales.  Company No: 02819824.  Registered Office Address: 2 St. Stephen's Court, St. Stephen's Road, Bournemouth, Dorset, England, BH2 6LA.  VAT Registration No: 576 8795 61
Book a Property Valuation Update Cookies Preferences