Wycombe road, London, N17

£500,000
Under Offer
This property listing is now Under Offer

2 Bedroom Terraced House for sale in London

1 2 1
  • Well presented 2 Bedroom Home
  • Terraced
  • Bright & Airy
  • Extended kitchen diner
  • Large garden
  • CHAIN FREE

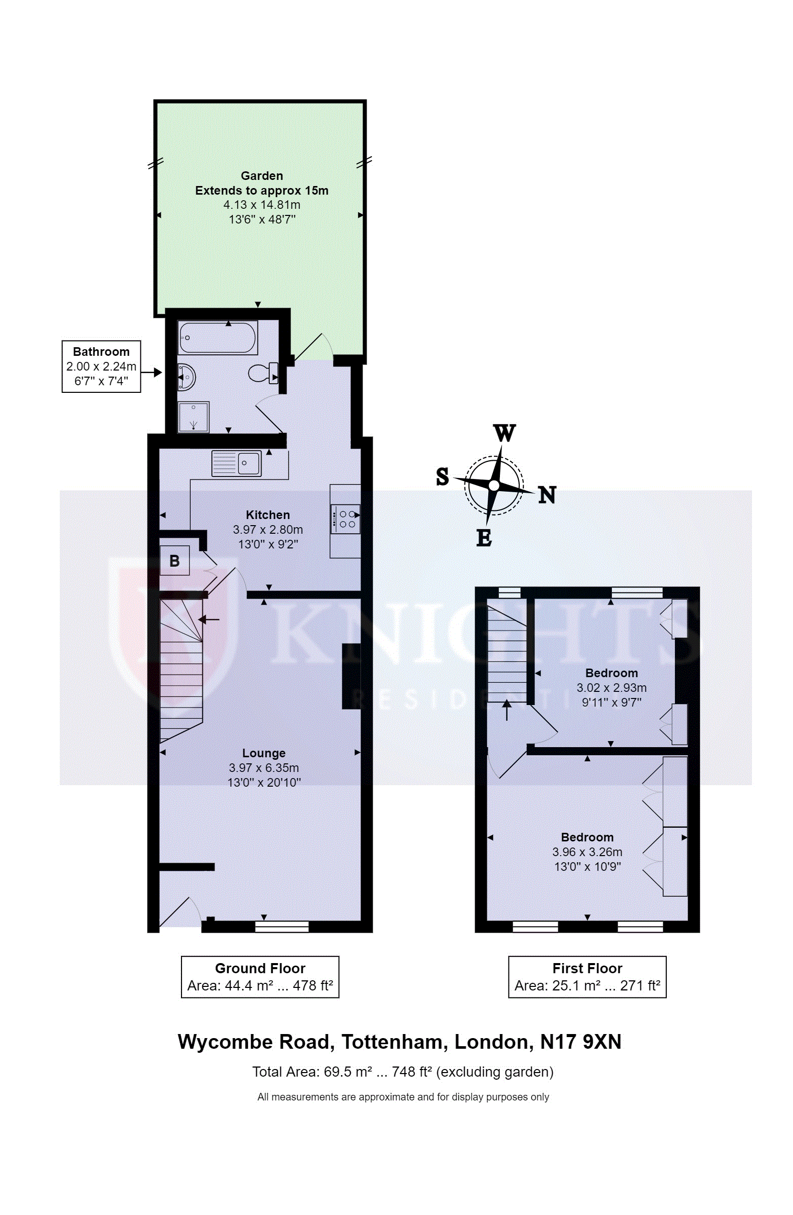
Knights are delighted to offer for sale this Bright and Airy Freehold mid terraced 2 bedroom House located in the Tottenham area. This home benefits from a spacious bright though lounge, Extended Kitchen diner, large garden, fully double glazed and has gas central heating(untested).  Potential for a loft conversion (STPP). Offered CHAIN FREE

This lovely home sits in the heart of a friendly neighbourhood where young families can settle their roots due to a good community spirit and well regarded primary schools in the area.
   
Exciting and vibrant neighbourhood currently undergoing an impressive regeneration programme. You will be able to take a short stroll to the historic Bruce Castle Museum with its adjoining park and take your pick from a multitude of restaurants, coffee shops and pubs along the High Road, including the newly opened Blue coats Pub.
   
Walking distance to both Northumberland Park and Tottenham Hale Station  (Zone 3) providing quick access into central London.

Important Information

  • This is a Freehold property.

Property Ref: THM_THM000F5D

Share:

Similar Properties

Erskine Crescent, Tottenham Hale , London, N17

3 Bedroom Townhouse | Guide Price £500,000

Knights Residential are delighted to offer to the market this Doer Upper waiting for the right DIY Enthusiast to purchas...

Rosebery Avenue , London, N17

3 Bedroom End of Terrace House | Offers in excess of £500,000

Knights residential are delighted to offer this three bedroom Victorian end of terraced home, situated in a desirable lo...

The Roundway, london, N17

3 Bedroom House | Guide Price £500,000

Knights are delighted to offer this well presented 3 bedroom home located within a walking distance to Lordship Lane(ame...

Shelbourne Road , London, N17

3 Bedroom End of Terrace House | £509,995

Knights Residential are delighted to offer this 3 Bedroom End of Terraced Home offered on a chain free basis. This prope...

Coniston road , London, N17

3 Bedroom House | £510,000

3 Bedroom 1930's style home located on a quite road within a walking distance to Tottenham Football Ground, White Hart L...

Crescent road, London, n15

3 Bedroom Apartment | Guide Price £510,000

Knights residential are delighted to offer this tasteful 3 bedroom first floor Victorian conversion located within a wal...

Knights Residential (Tottenham)

Tottenham, London, N17 9TA

0208 885 6800

How much is your home worth?

Use our short form to request a valuation of your property.

Request a Valuation

Mortgage Calculator

Amount Borrowed: £
Total Amount Repayable: £
Total Monthly Payment: £
©2025 The Guild of Property Professionals. All rights reserved. Terms and Conditions | Privacy Policy | Cookie Policy | Complaints Policy | Members Login
The Guild of Property Professionals Trading Address: 121 Park Lane, London W1K 7AG. GPEA Limited. Registered in England & Wales.  Company No: 02819824.  Registered Office Address: 2 St. Stephen's Court, St. Stephen's Road, Bournemouth, Dorset, England, BH2 6LA.  VAT Registration No: 576 8795 61
Book a Property Valuation Update Cookies Preferences