Drayton Road, London

Fixed Price
£275,000
SSTC
This property listing is now SSTC

2 Bedroom Flat for sale in London

2
  • FIRST FLOOR MAISONETTE
  • TWO BEDROOMS
  • REAR GARDEN
  • VACANT WITH NO UPPER CHAIN
  • GAS CENTRAL HEATING
  • CLOSE TO TOWN CENTRE
  • LOFT AREA

Mathesons are offering this vacant and SPACIOUS FIRST FLOOR TWO BEDROOM MAISONETTE with walking distance of Harlesden Town Centre with all the LOCAL AMENITIES around. The property benefits from being offered with NO UPPER CHAIN complications, UPVC DOUBLE GLAZING, GAS CENTRAL HEATING, LOFT AREA and a GOOD SIZE REAR GARDEN.
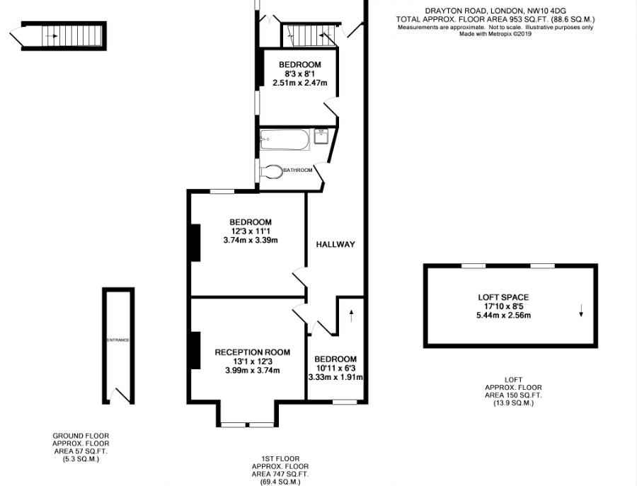
The property comprising: Entrance hall, stairs rising to the first floor with door to, lounge area, kitchen/diner, two bedrooms, bathroom, study area, loft area and a rear garden.

Entrance Hall With Stairs Rising To The First Floo -

First Floor Landing With Doors To -

Lounge - 3.99 x 3.72 (13'1" x 12'2") -

Kitchen/Diner - 3.75 x 3.48 (12'3" x 11'5") -

Bedroom One - 3.43 x 3.38 (11'3" x 11'1") -

Bedroom Two - 2.51 x 2.46 (8'2" x 8'0") -

Bathroom -

Study/Office Area - 3.42 x 1.89 (11'2" x 6'2") -

Loft Area - 5.44m x 2.57m (17'10 x 8'5) -

Outside Rear Garden -

Property Ref: 29023666

Share:

Similar Properties

Acton Lane, London

1 Bedroom Apartment | Offers in region of £275,000

Offers are invited for this bright and spacious one bedroom period apartment in need of modernisation but realistically...

Elgar Avenue, London

1 Bedroom Apartment | Guide Price £275,000

MATHESONS ARE FAVOURED TO OFFER THE SALE OF THIS RECENTLY DECORATED PURPOSE BUILT GROUND FLOOR ONE BEDROOM FLAT SITUATED...

Armstrong Road, London, NW10

1 Bedroom Flat | Offers in excess of £275,000

Found on Armstrong Road, NW10, London, this modern stylish contemporary 2nd floor apartment with lift access and under f...

Church Road, London

1 Bedroom Flat | Guide Price £280,000

MODERN ONE BEDROOM PURPOSE BUILT THIRD FLOOR (TOP) APARTMENT. The property benefits from a SEPARATE BRIGHT AND SPACIOUS...

Hornby Court, High Road, London

1 Bedroom Apartment | £284,468

A stunning one bedroom apartment within this highly sought after newly built development and in gorgeous condition throu...

Tokyngton Avenue, Wembley

1 Bedroom Flat | £284,950

A newly renovated one double bedroom luxury apartment benefiting from a large reception with a separate fully fitted kit...

Churchill Mathesons (Harlesden)

Harlesden, London, NW10 4JT

0208 965 2250

How much is your home worth?

Use our short form to request a valuation of your property.

Request a Valuation

Mortgage Calculator

Amount Borrowed: £
Total Amount Repayable: £
Total Monthly Payment: £
©2026 The Guild of Property Professionals. All rights reserved. Terms and Conditions | Privacy Policy | Cookie Policy | Complaints Policy | Members Login
The Guild of Property Professionals Trading Address: 121 Park Lane, London W1K 7AG. GPEA Limited. Registered in England & Wales.  Company No: 02819824.  Registered Office Address: 2 St. Stephen's Court, St. Stephen's Road, Bournemouth, Dorset, England, BH2 6LA.  VAT Registration No: 576 8795 61
Book a Property Valuation Update Cookies Preferences