Sellons Avenue, London

Guide Price
£585,000
SSTC
This property listing is now SSTC

2 Bedroom Flat for sale in London

1 2 1
  • TWO BEDROOM GROUND FLOOR FLAT
  • SHARE OF FREEHOLD
  • LARGE REAR GARDEN
  • IMMACULATE CONDITION THROUGHOUT
  • REFITTED KITCHEN & BATHROOM
  • POPULAR LOCATION
  • OPEN FIREPLACES
  • SASH UPVC WINDOWS TO THE FRONT
  • POTENTIAL TO EXTEND (STPP)

CHURCHILL & MATHESONS are delighted to bring to the market this SPACIOUS TWO BEDROOM GROUND FLOOR FLAT WITH LARGE REAR GARDEN and SHARE OF FREEHOLD. Within easy walking distance of Harlesden Town Centre and close other local amenities to include schools, doctors etc with great access to local railway and motorway links. An internal viewing highly recommended as the home has been well maintain by the present owners. Further benefits included STRIPPED FLOOR BOARDS, UPVC SASH STYLE WINDOWS, SHUTTERS,OPEN FIREPLACES, REFITTED BATHROOM and THE POSSIBILITY TO EXTEND (STPP).
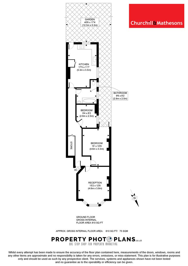
The property comprises of; Entrance Hall, Lounge, Kitchen/Diner, Two Good Sized Bedrooms, Family Bathroom and Private Large Rear Garden.
The total floor area is approximately 810 SQ/FT (75 SQ/M)

Entrance Hall -

Lounge - 4.62m x 3.81m (15'2 x 12'6) -

Kitchen / Diner - 5.31m x 3.53m (17'5 x 11'7) -

Bedroom 1 - 4.57m x 3.28m (15 x 10'9) -

Bedroom 2 - 2.84m x 2.49m (9'4 x 8'2) -

Bathroom - 2.90m x 2.49m (9'6 x 8'2) -

Garden - 12.19m'1.83m x 5.28m (40''6 x 17'4) -

Property Ref: 30905219

Share:

Similar Properties

Wakeman Road, Kensal Green, London

2 Bedroom Flat | Offers in excess of £580,000

A spacious period two bedroom first floor flat located on a popular tree lined residential road and of most generous pro...

Erconwald Street, Shepherds Bush

3 Bedroom Terraced House | £575,000

A spacious three bedroom end of terrace house which has been in the same family for generations and is now sadly availab...

Twybridge Way, London

3 Bedroom House | Guide Price £575,000

THE ONE YOU HAVE BEEN LOOKING FOR!This low maintenance end-terrace home on Twybridge Way, NW10, offers a homely, warm an...

North Acton Road, London, NW10 7

3 Bedroom Terraced House | Guide Price £595,000

Discover this charming terrace house on North Acton Road, NW10 offering a blend of comfort and style. With 3 bedrooms an...

Tatam Road, London NW10 8HT

3 Bedroom House | Offers in region of £599,950

A CHARMING THREE BEDROOM END OF TERRACE situated on a prominent corner plot and offered with the benefit of A DETACHED G...

Alric Avenue, London, NW10 8

3 Bedroom Terraced House | Guide Price £600,000

Found on sought after Alric Road, NW10, this freehold mid-terrace house is a perfect blend of classic elegance and moder...

Churchill Mathesons (Harlesden)

Harlesden, London, NW10 4JT

0208 965 2250

How much is your home worth?

Use our short form to request a valuation of your property.

Request a Valuation

Mortgage Calculator

Amount Borrowed: £
Total Amount Repayable: £
Total Monthly Payment: £
©2026 The Guild of Property Professionals. All rights reserved. Terms and Conditions | Privacy Policy | Cookie Policy | Complaints Policy | Members Login
The Guild of Property Professionals Trading Address: 121 Park Lane, London W1K 7AG. GPEA Limited. Registered in England & Wales.  Company No: 02819824.  Registered Office Address: 2 St. Stephen's Court, St. Stephen's Road, Bournemouth, Dorset, England, BH2 6LA.  VAT Registration No: 576 8795 61
Book a Property Valuation Update Cookies Preferences