Manor Park Road, London

Guide Price
£395,000
SSTC
This property listing is now SSTC

2 Bedroom Flat for sale in London

1 2 1
  • TWO BEDROOM CONVERSION FLAT
  • REAR GARDEN
  • SHARE OF FREEHOLD
  • BAY FRONTED LOUNGE
  • BASEMENT

CHURCHILL & MATHESONS are offering this SPACIOUS TWO BEDROOM GROUND FLOOR GARDEN FLAT situated in the heart of Harlesden and within easy walking access to all the local amenities and railway links. The home has been able to keep some of its original features, an internal viewing is highly recommended.
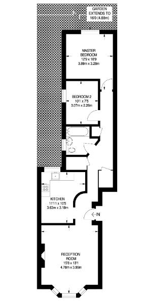
The property comprises of: Entrance Hall, Basement, Lounge, Kitchen/Diner, Two Bedrooms and family bathroom. Outside, a private rear garden.
The total floor area is approximately 59 SQ/M.

Entrance Hall -

Basement -

Lounge - 4.78m x 3.99m (15'8 x 13'1) -

Kitchen - 3.63m x 3.18m (11'11 x 10'5) -

Bedroom 1 - 3.89m x 3.28m (12'9 x 10'9) -

Bedroom 2 - 3.07m x 2.26m (10'1 x 7'5) -

Bathroom -

Rear Garden -

Property Ref: 31006580

Share:

Similar Properties

Bridge Road, London

2 Bedroom Flat | Offers in region of £390,000

A FABULOUS TWO DOUBLE BEDROOM GROUND FLOOR APARTMENT which has been EXTENSIVELY RENOVATED by the current owners includin...

Shaftesbury Gardens, North Acton

2 Bedroom Flat | £389,950

A superb newly decorated two bedroom first floor purpose built flat with private balcony and reserved car parking space....

Craven Park, London

2 Bedroom Flat | Guide Price £389,950

***A CASHBACK OF ?250 IS AVAILABLE ON THIS HOME IF PURCHASED THOUGH CHURCHILL & MATHESONS UPON COMPLETION***CHURCHILL &...

Harley Road, London, NW10

2 Bedroom Flat | Guide Price £399,950

CHURCHILL & MATHESONS are favoured to offer this MODERN VICTORIAN GROUND FLOOR TWO BEDROOM GARDEN FLAT.The property comp...

Burns Road, London

2 Bedroom Flat | £399,950

Two bedroom first floor period conversion located on a quiet tree lined residential road. The property benefits from a s...

Hawthorn Road, London

2 Bedroom Flat | Guide Price £399,950

Mathesons are favoured to offer this spacious TWO BEDROOM FIRST FLOOR apartment offered with no upper chain complication...

Churchill Mathesons (Harlesden)

Harlesden, London, NW10 4JT

0208 965 2250

How much is your home worth?

Use our short form to request a valuation of your property.

Request a Valuation

Mortgage Calculator

Amount Borrowed: £
Total Amount Repayable: £
Total Monthly Payment: £
©2026 The Guild of Property Professionals. All rights reserved. Terms and Conditions | Privacy Policy | Cookie Policy | Complaints Policy | Members Login
The Guild of Property Professionals Trading Address: 121 Park Lane, London W1K 7AG. GPEA Limited. Registered in England & Wales.  Company No: 02819824.  Registered Office Address: 2 St. Stephen's Court, St. Stephen's Road, Bournemouth, Dorset, England, BH2 6LA.  VAT Registration No: 576 8795 61
Book a Property Valuation Update Cookies Preferences