Redfern Road, London

Guide Price
£320,000
SSTC
This property listing is now SSTC

1 Bedroom Flat for sale in London

1 1 1
  • ONE BEDROOM FIRST FLOOR FLAT
  • NEWLY REFURBISHED
  • 120+ YEARS LEASE
  • NO CHAIN
  • GAS CENTRAL HEATING
  • DOUBLE GLAZING
  • CLOSE TO LOCAL AMENITIES
  • VACANT

CHURCHILLMATHESONS are favored to offer this NEWLY REFURBISHED ONE BEDROOM FIRST FLAT.
The property comprises of an open plan reception room/fitted kitchen with built in appliances, bedroom and bathroom.
Further benefits are the property is being sold with a long lease, double glazing and gas central heating.
Redfern Road is close to local amenities of Harlesden Town Centre and transport links including Harlesden Station (Bakerloo Line & London Overground- Zone 3) is only a short walk away.
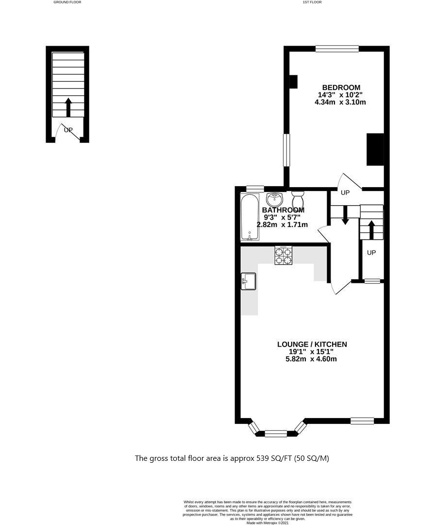
The total floor area is approximately 539 SQ FT (50 SQ/M)

Entrance Hall -

Lounge / Kitchen - 5.82m x 4.60m (19'1 x 15'1) -

Bedroom - 4.34m x 3.10m (14'3 x 10'2) -

Bathroom - 2.82m x 1.70m (9'3 x 5'7) -

Property Ref: 8008_30472311

Share:

Similar Properties

Curzon Crescent, London

2 Bedroom Flat | Guide Price £320,000

IDEAL for FIRST-TIME BUYERS or BUY TO LET INVESTORS. This well-proportioned top-floor two-bedroom apartment is situated...

Harlesden

2 Bedroom Apartment | £319,950

A well presented Victorian two bedroom garden flat located on this residential tree lined road. Benefits include two dou...

West End Close

2 Bedroom Apartment | £310,000

Two double bedroom apartment set within a modern development. The property benefits from two good size bedrooms, bright...

Beaconsfield Road, London NW10 2JE

2 Bedroom Flat | Offers in region of £324,950

A bright and spacious two double bedroom bay fronted period conversion in this sought after road and offered for sale wi...

Rucklidge Avenue, London

2 Bedroom Flat | Offers in region of £325,000

Priced for a very early sale is this two bedroom period apartment in this handsome building just a few moments from The...

Harlesden, NW10 4RT

1 Bedroom Flat | Offers in region of £325,000

A bright and spacious one bedroom first floor apartment In need of updating but offering huge potential.The property has...

Churchill Mathesons (Harlesden)

Harlesden, London, NW10 4JT

0208 965 2250

How much is your home worth?

Use our short form to request a valuation of your property.

Request a Valuation

Mortgage Calculator

Amount Borrowed: £
Total Amount Repayable: £
Total Monthly Payment: £
©2026 The Guild of Property Professionals. All rights reserved. Terms and Conditions | Privacy Policy | Cookie Policy | Complaints Policy | Members Login
The Guild of Property Professionals Trading Address: 121 Park Lane, London W1K 7AG. GPEA Limited. Registered in England & Wales.  Company No: 02819824.  Registered Office Address: 2 St. Stephen's Court, St. Stephen's Road, Bournemouth, Dorset, England, BH2 6LA.  VAT Registration No: 576 8795 61
Book a Property Valuation Update Cookies Preferences