Yewfield Road, London NW10 9TD

Offers in region of
£474,950
SSTC
This property listing is now SSTC

3 Bedroom House for sale in London

1 3 1
  • Three bedMid terraced house
  • Priced for early sale
  • Two receptions
  • Freehold
  • All serious offers Invited
  • No Chain
  • ideal investment
  • Gardens
  • Close to Roundwood Park
  • Over 900 sq ft

A SPACIOUS THREE BEDROOM terraced home in a popular road with GARDENS TO FRONT AND REAR.
This SUPERB PROPERTY is an ideal buy to let investment and all serious offers for the freehold interest are invited.
Offered with no onward chain early viewing is considered essential!.
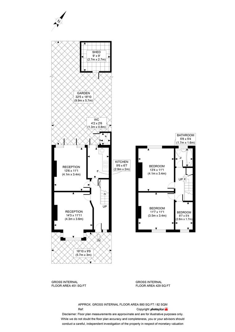
The floor area is approximately 880 sq.ft (182 sq.m)

Entrance Hall -

Reception 1 - 4.34m x 3.63m (14'3 x 11'11) -

Reception 2 - 4.11m x 3.38m (13'6 x 11'1) -

Kitchen - 2.90m x 2.01m (9'6 x 6'7) -

Downstairs Wc - 1.27m x 0.76m (4'2 x 2'6) -

First Floor Landing -

Bedroom 1 - 4.06m x 3.38m (13'4 x 11'1) -

Bedroom 2 - 3.53m x 3.38m (11'7 x 11'1) -

Bedroom 3 - 2.62m x 1.63m (8'7 x 5'4) -

Bathroom - 1.73m x 1.63m (5'8 x 5'4) -

Property Ref: 8008_28577946

Share:

Similar Properties

Lewis Crescent, London

3 Bedroom Terraced House | £464,950

Well presented three bedroom mid terraced house ideal for a growing family or a Buy to Let Investment. Benefits include...

Crownhill Road, Harlesden, London NW10

2 Bedroom Flat | £464,950

A fine two double bedroom period apartment occupying the entire ground floor of this handsome period building.The proper...

Perryn House, Bromyard Avenue, London

3 Bedroom House | Guide Price £460,000

CHURCHILL MATHESONS are pleased to offer for sale this THREE BEDROOM SECOND FLOOR (TOP) MANSION APARTMENT in an ATTRACTI...

St. Marys Road, Harlesden, London

2 Bedroom Flat | Guide Price £475,000

CHURCHILL&MATHESONS are delighted to offer FOR SALE this TWO BEDROOM GROUND FLOOR FLAT situated close to the Town Centre...

St. Albans Road, London, NW10 8UG

2 Bedroom Flat | £479,950

Mathesons bring to the market this Victorian two bedroom ground floor flat located on quiet tree lined residential road....

Oakington Manor Drive, Wembley

3 Bedroom Semi-Detached House | Guide Price £485,000

We are favored to offer to this EXTENDED THREE/FOUR BEDROOM SEMI DETACHED situated in this ever increasing popular locat...

Churchill Mathesons (Harlesden)

Harlesden, London, NW10 4JT

0208 965 2250

How much is your home worth?

Use our short form to request a valuation of your property.

Request a Valuation

Mortgage Calculator

Amount Borrowed: £
Total Amount Repayable: £
Total Monthly Payment: £
©2026 The Guild of Property Professionals. All rights reserved. Terms and Conditions | Privacy Policy | Cookie Policy | Complaints Policy | Members Login
The Guild of Property Professionals Trading Address: 121 Park Lane, London W1K 7AG. GPEA Limited. Registered in England & Wales.  Company No: 02819824.  Registered Office Address: 2 St. Stephen's Court, St. Stephen's Road, Bournemouth, Dorset, England, BH2 6LA.  VAT Registration No: 576 8795 61
Book a Property Valuation Update Cookies Preferences