Cumbrian Gardens, Cricklewood, London. NW2

£675,000
SSTC
This property listing is now SSTC

3 Bedroom House for sale in London

2 3 1

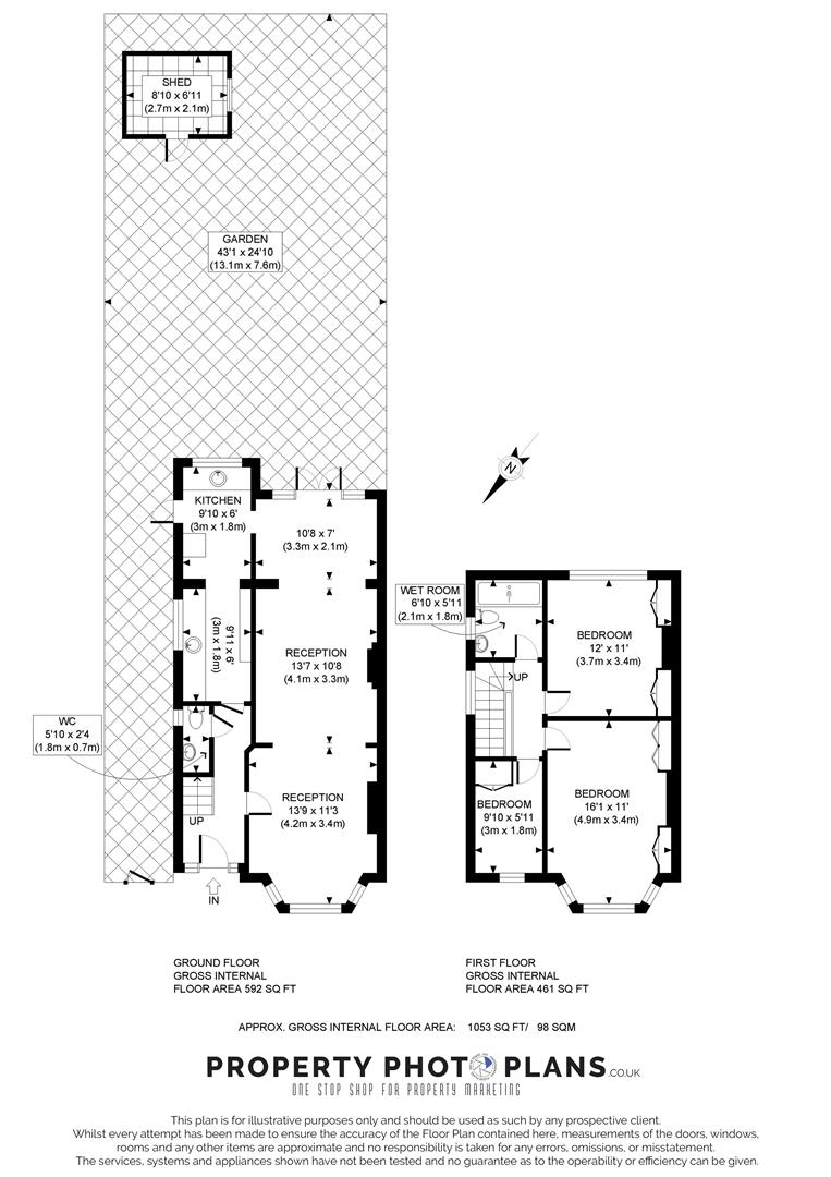
We are pleased to bring to the market this semi-detached house located on a sought-after road on the Golders Green Estate. The property comprises an extended double reception room, kitchen with utility area, and downstairs W.C. On the first floor, there are three bedrooms consisting of two double rooms and a single bedroom and family bathroom. The property, while offered in good condition throughout, has a dated style and requires a significant amount of updating and refurbishment work, providing an excellent opportunity to put your stamp on it and turn it into a lovely family home. The property has the additional benefit of off-street parking and, a rear garden with a brick-built outhouse. The house also has the potential to add a loft conversion subject to all necessary consents. Cumbrian Gardens is located just off the Vale between the A41 and Edgware Road.
Cricklewood Train Station (Thameslink) is located within 0.8 miles of the property and Golders Green Underground Station (Northern Line) is located 0.9 miles away. Brent Cross Shopping Centre is located 1.3 miles away with its wide abundance of shops and restaurants. Freehold, Council Tax Band E.

Property Ref: 57880_33078215

Share:

Similar Properties

Minster Road, Cricklewood, London, NW2

3 Bedroom Flat | £635,000

Spacious three-bedroom flat with potential in prime Cricklewood location.Set on sought-after Minster Road, this bright 9...

The Lofts, Grenville Place, Mill Hill, NW7

2 Bedroom Flat | £552,500

Stunning two bedroom, two bathroom (one en-suite) 1st Floor apartment ( 953 sq ft ) set within this unique development o...

Westfield Lodge, Finchley Road, London, NW3

1 Bedroom Flat | £475,000

We are please to offer this superb One-Bedroom Ground Floor Flat with Excellent Amenities. This beautifully presented on...

New Trinity Road, East Finchley, London, N2

4 Bedroom Townhouse | £685,000

Located on New Trinity Road, East Finchley is this end of terraced freehold townhouse (1032 sq.ft / 96 sq.m) built in 20...

New Trinity Road, London

4 Bedroom Terraced House | £695,000

Located on New Trinity Road, East Finchley is this end of terraced freehold townhouse (1022sq.ft / 95 sq.m) built in 201...

New Trinity Road, East Finchley, London

4 Bedroom Townhouse | £725,000

Located on New Trinity Road, East Finchley is this stunning mid terraced freehold townhouse (1107 sq.ft / 103 sq.m) buil...

Living Residential (West Hampstead)

118 Fortune Green Road, West Hampstead, London, NW6 1DH

0207 4356066

How much is your home worth?

Use our short form to request a valuation of your property.

Request a Valuation

Mortgage Calculator

Amount Borrowed: £
Total Amount Repayable: £
Total Monthly Payment: £
©2026 The Guild of Property Professionals. All rights reserved. Terms and Conditions | Privacy Policy | Cookie Policy | Complaints Policy | Members Login
The Guild of Property Professionals Trading Address: 121 Park Lane, London W1K 7AG. GPEA Limited. Registered in England & Wales.  Company No: 02819824.  Registered Office Address: 2 St. Stephen's Court, St. Stephen's Road, Bournemouth, Dorset, England, BH2 6LA.  VAT Registration No: 576 8795 61
Book a Property Valuation Update Cookies Preferences