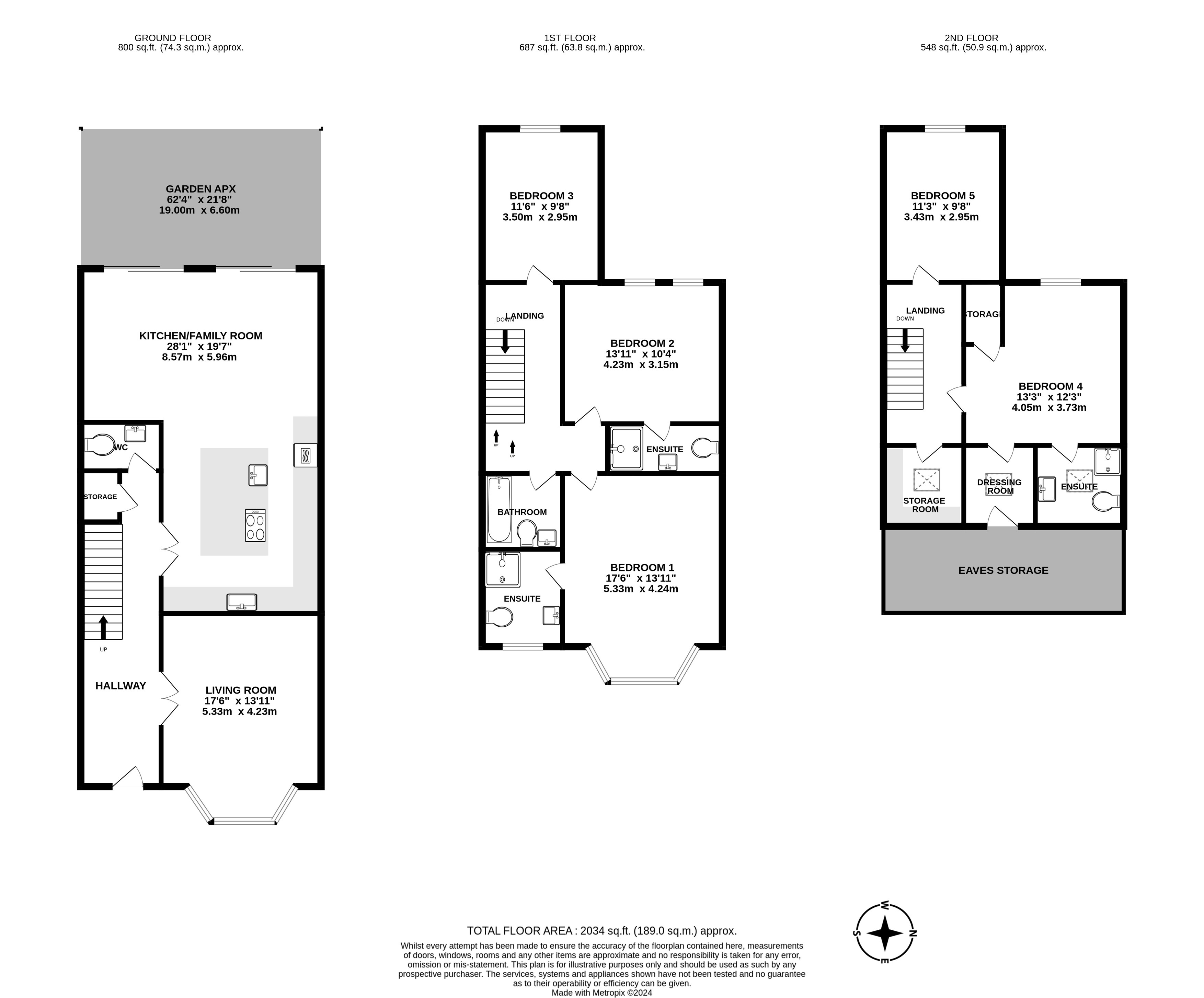
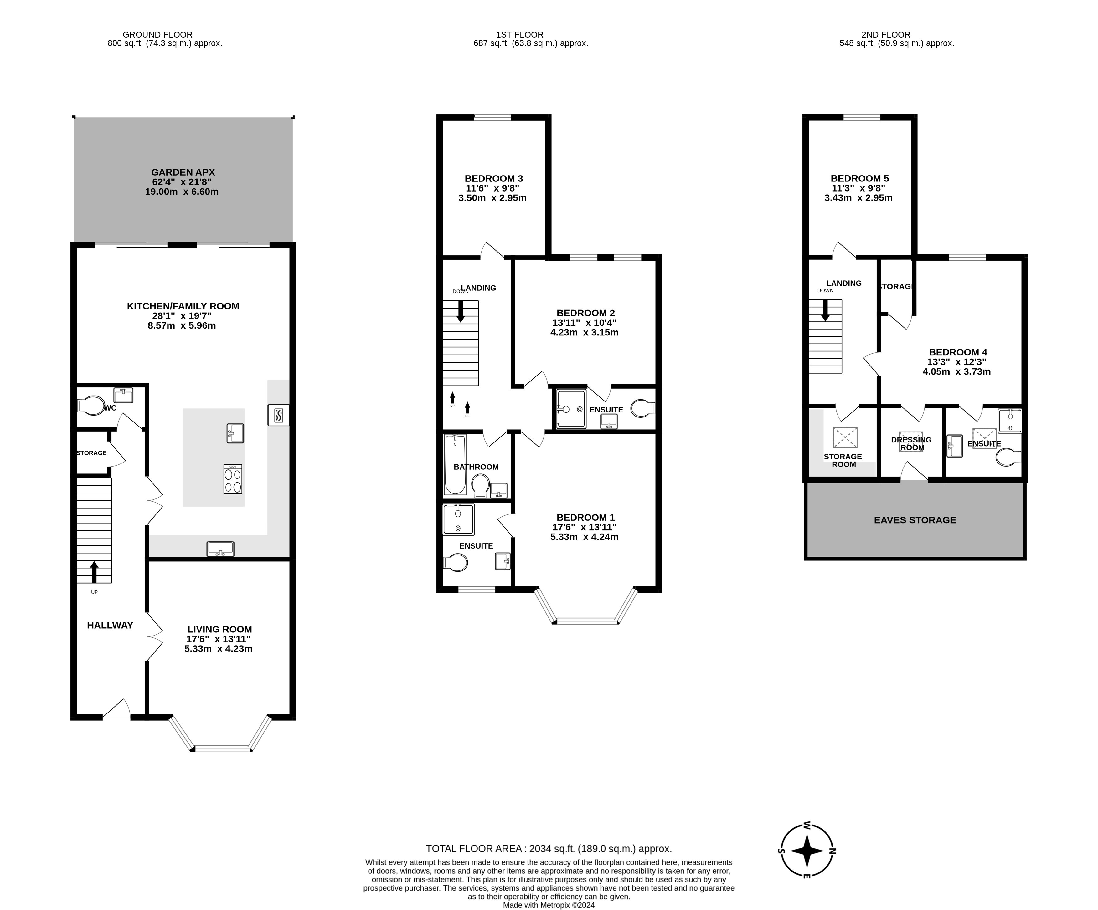
This exquisite 5-bedroom family residence has recently undergone a complete renovation to the highest standards.
Situated on a prestigious street in Mill Hill, this home features a remarkable entrance hall leading to the formal living room with a spacious bay window and great ceiling heights. The 28' open plan kitchen/living/dining room boasts a bespoke kitchen and sliding doors that open onto a generous patio area, perfect for summer gatherings.
The first floor accommodates 3 double bedrooms, 2 of which have their own en-suite bathrooms, along with a family bathroom. 
The second floor offers a storage room/utility room and 2 additional bedrooms, one with an en-suite bathroom and walk-in wardrobe.
Outside, the rear garden includes a sizable patio area and lawn.
To truly grasp the impressive qualities of this stunning property, a viewing is highly recommended.
Property Ref: 603603_LUM240030
Stables End, Aldenham, Watford, Hertfordshire, WD25
6 Bedroom Detached House | £1,400,000
Nestled within the highly sought-after village of Aldenham, this impressive six-bedroom detached residence is situated o...
Gills Hill Lane, Radlett, Hertfordshire, WD7
4 Bedroom Detached House | Guide Price £1,350,000
Set on the desirable Gills Hill Lane in Radlett, this beautifully arranged detached family home offers spacious and vers...
The Close, Radlett, Hertfordshire, WD7
3 Bedroom Detached House | Guide Price £1,300,000
Tucked away in the peaceful cul-de-sac of The Close in the sought-after village of Radlett, this impressive and spacious...
Florida Close, Bushey Heath, Bushey, Hertfordshire, WD23
5 Bedroom Detached House | £1,450,000
Lumley Estates are proud to present this stunning five bedroom detached home located in the ever-desirable location of B...
Williams Way, Radlett, Hertfordshire, WD7
5 Bedroom Detached Bungalow | Guide Price £1,495,000
This exquisite five-bedroom detached bungalow is situated behind a spacious, well-kept green on a highly desirable road,...
Williams Way, Radlett, Hertfordshire, WD7
4 Bedroom Detached House | £1,500,000
A stunning 4 bedroom detached family home in located in tranquil Radlett locationNestled at the serene end of Williams W...
 
                            Lumley Estates (Radlett)
72 Watling Street, Radlett, Hertfordshire, WD7 7NP
Use our short form to request a valuation of your property.
Request a Valuation