Millway, Mill Hill, NW7

£765,000

4 Bedroom Semi-Detached House for sale in London

2 4 1
  • 4 BEDROOMS
  • SPACIOUS RECEPTION ROOM
  • BRIGHT DINING ROOM
  • IN NEED OF UPDATING
  • POTENTIAL TO EXTEND STPP
  • CLOSE TO LOCAL SCHOOLS
  • STONES THROW TO MILL HILL BROADWAY

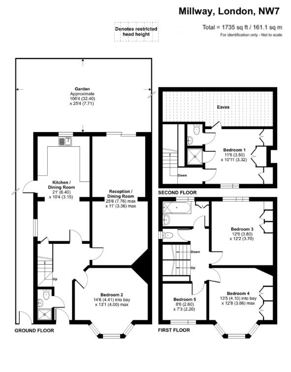
Fantastic Four-Bedroom Semi-Detached Home Just Steps from Mill Hill Broadway. Nestled on one of Mill Hill's most desirable tree-lined streets, this attractive four-bedroom semi-detached family home is ideally located just moments away from the vibrant shops, caf�s, and transport links of Mill Hill Broadway.

The property offers a well-balanced layout ideal for modern family living. The ground floor comprises a generous reception room, a separate dining area, and a well-sized kitchen-providing flexible spaces for both relaxing and entertaining. Upstairs, the first floor includes three comfortable bedrooms, a family bathroom, and a separate WC. A large fourth double bedroom occupies the top floor, perfect as a master suite or guest accommodation.

With clear potential for extension or redevelopment (subject to planning permissions), this home offers scope to personalise and expand in line with your future aspirations.

Outside, a sizeable private garden provides an excellent setting for outdoor gatherings or children's play, while off-street parking adds everyday convenience. Chain Free. Probate Sale.

Property Ref: 699857_33807861

Share:

Similar Properties

Tommy Flowers Mews, Mill Hill

3 Bedroom End of Terrace House | £750,000

Situated in the highly sought after Millbrook Park Development is this modern End of Terrace 3 bedroom 2 bathroom proper...

Sebergham Grove, Milll Hill

4 Bedroom End of Terrace House | £750,000

Cosway are pleased to offer for sale this extended, Well presented four bedroom end of terrace house with two bathrooms...

Millway, Mill Hill, NW7

3 Bedroom Semi-Detached House | £750,000

Located a stones throw from Mill Hill Broadway, is this well maintained and 3 bedroom property. The ground floor of this...

Hammers Lane, London

4 Bedroom Not Specified | £769,950

Situated in a sought after location within Poets Corner, is this well proportioned characterful 4 bedroom property withi...

Longfield Avenue, Mill Hill

3 Bedroom Semi-Detached House | £769,950

Situated in a sought after location is this extended and modernised 3 bedroom property in a prime residential road in Mi...

Fairfield Avenue, Edgware

4 Bedroom Semi-Detached House | £770,000

Located in a sought after turning in Edgware on a large corner plot is this well presented 4 double bedroom property wit...

Cosway Estates (Mill Hill)

Mill Hill, London, NW7 4TD

020 8959 0011

How much is your home worth?

Use our short form to request a valuation of your property.

Request a Valuation

Mortgage Calculator

Amount Borrowed: £
Total Amount Repayable: £
Total Monthly Payment: £
©2025 The Guild of Property Professionals. All rights reserved. Terms and Conditions | Privacy Policy | Cookie Policy | Complaints Policy | Members Login
The Guild of Property Professionals Trading Address: 121 Park Lane, London W1K 7AG. GPEA Limited. Registered in England & Wales.  Company No: 02819824.  Registered Office Address: 2 St. Stephen's Court, St. Stephen's Road, Bournemouth, Dorset, England, BH2 6LA.  VAT Registration No: 576 8795 61
Book a Property Valuation Update Cookies Preferences