Tretawn Gardens, Mill Hill, NW7

£925,000

3 Bedroom Detached House for sale in London

3 3 1
  • 3 BEDROOM DETACHED HOUSE
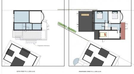
  • PLANNING PERMISSION APPROVED TO EXTEND
  • THROUGH LOUNGE
  • KITCHEN
  • DINING ROOM
  • MODERN BATHROOM
  • POTENTIAL TO EXTEND
  • OFF-STREET PARKING
  • WALKING DISTANCE TO MILL HILL BROADWAY

Tretawn Gardens, Mill Hill - 3-Bedroom Detached Home with Planning Permission Approved

This well-presented Three-bedroom detached home in the sought-after Tretawn Gardens offers spacious living, modern finishes, and exciting potential for further development with approved planning permission.

On the ground floor, the property boasts a generous double reception room, perfect for both relaxing and entertaining. The well-maintained kitchen leads seamlessly into a bright and airy dining room, while a convenient guest W/C completes the ground floor layout.

Upstairs, you'll find two large double bedrooms both with fitted cupboards a third bedroom and a modern family bathroom.

Additional benefits include off-street parking, a private rear garden, and the valuable benefit of approved planning permission offering scope to extend or enhance the property further.

Located within walking distance of Mill Hill Broadway, with its array of shops, cafes, and excellent transport links, the property is also ideally situated close to highly regarded local schools.
An ideal family home with strong potential in a prime location early viewing is highly recommended. Sole Agent.

Property Ref: 699857_34141316

Share:

Similar Properties

Drummer Stagpole Mews, London

4 Bedroom Semi-Detached House | £925,000

We are pleased to offer for sale this stunning 4 bedroom 3 bathroom town house located in the highly desirable Millbrook...

Flower Lane, Mill Hill

6 Bedroom Semi-Detached House | £925,000

Situated in a sought after location opposite Mill Hill Park and within walking distance to Mill Hill Broadway is this ex...

Highwood Hill, Mill Hill, NW7

4 Bedroom Detached House | £925,000

Cosway Estates are proud to present a stunning Four Bedroom Detached house located on a sought after road close to Mill...

Lawrence Gardens, London

4 Bedroom Semi-Detached House | £929,950

Located on one of Mill Hill's prime tree lined cul-de-sacs is this 4 bedroom 2 reception room, property in need of compl...

Priory Field Drive, Edgware

5 Bedroom Detached House | £935,000

Edgware/Mill Hill Borders - An impressive five bedroom, three bathroom detached property situated in a sought after prim...

The Reddings, London

5 Bedroom House | Offers in excess of £935,000

This bright and sunny 5 bedroom 3 bathroom 3 reception room property offers over 2000 sq ft of living space and is situa...

Cosway Estates (Mill Hill)

Mill Hill, London, NW7 4TD

020 8959 0011

How much is your home worth?

Use our short form to request a valuation of your property.

Request a Valuation

Mortgage Calculator

Amount Borrowed: £
Total Amount Repayable: £
Total Monthly Payment: £
©2026 The Guild of Property Professionals. All rights reserved. Terms and Conditions | Privacy Policy | Cookie Policy | Complaints Policy | Members Login
The Guild of Property Professionals Trading Address: 121 Park Lane, London W1K 7AG. GPEA Limited. Registered in England & Wales.  Company No: 02819824.  Registered Office Address: 2 St. Stephen's Court, St. Stephen's Road, Bournemouth, Dorset, England, BH2 6LA.  VAT Registration No: 576 8795 61
Book a Property Valuation Update Cookies Preferences