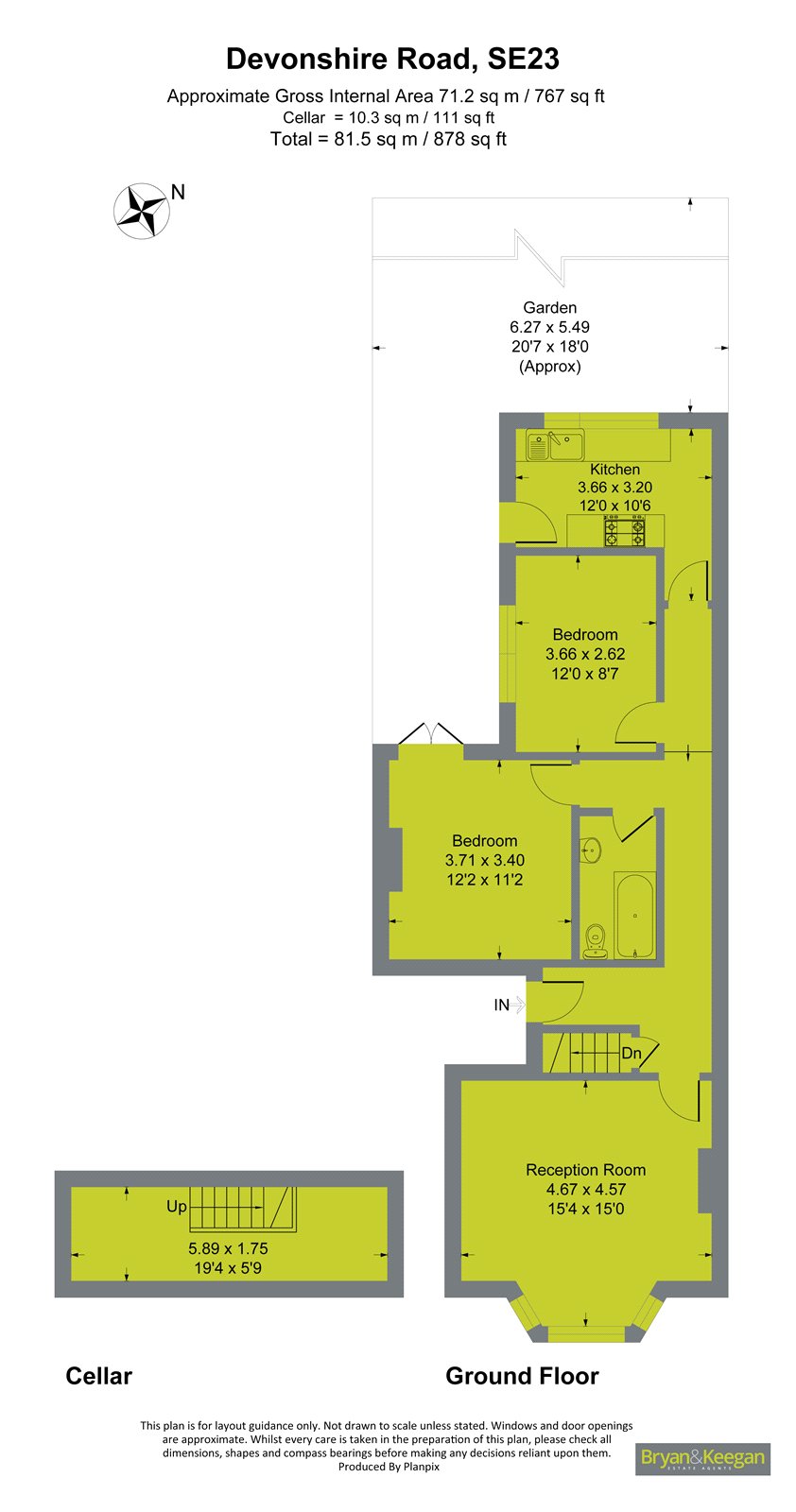
Devonshire Road, London

Asking Price
£550,000
SSTC
This property listing is now SSTC

2 Bedroom Flat for sale in London

1 2 1
  • Two bedroom garden flat
  • Share of freehold
  • Off street parking
  • Period features througout
  • In excess of 850 Sq ft
  • Two direct access points to private garden

Stylish two-bedroom, Victorian conversion with garden – Less than half a mile from Honor Oak station.

This wonderful two double bedroom split-level Victorian conversion blends period charm with modern comfort, offering beautifully presented interiors and a private garden.The property benefits from a share of freehold, ensuring a secure and long-term investment in a home that promises both style and stability.

Step into the bright and spacious living room, where large windows flood the space with natural light and a working Victorian fireplace, adding warmth and character. Double glazing throughout ensures a peaceful environment, while underfloor insulation keeps the home warm and cosy year-round. From the living room your then lead to a staircase descending to a generous cellar, providing superb additional storage space.

Both bedrooms are generous doubles, with the master featuring a built-in wardrobe and double doors opening directly onto the well-maintained garden filled with gorgeous plants—a peaceful retreat perfect for enjoying your morning coffee or unwinding in the evening. The recently upgraded kitchen, complete with a large window overlooking the garden, offers sleek units, modern appliances, and plenty of worktop space—ideal for those who love to cook and entertain.

Additional modern enhancements include a newly upgraded family bathroom, offering contemporary fixtures and a stylish finish for added comfort and convenience. Practicality is further enhanced by off-street parking.

This home is ideally situated just a short walk from Honor Oak Station, the property offers excellent transport links via the Overground and National Rail, with direct routes to London Bridge, Canada Water, Shoreditch, Whitechapel, Highbury & Islington, and beyond. You’re also moments away from a fantastic selection of independent cafés, restaurants, gastro pubs, shops, and green spaces including the renowned Horniman Gardens.

A perfect mix of period elegance and modern living, this Forest Hill gem is ideal for professionals, couples, or anyone looking to enjoy the vibrant lifestyle and convenience offered by this popular SE23 locale.

Important Information

  • This is a Share of Freehold property.
  • This Council Tax band for this property is: C
  • EPC Rating is C

Property Ref: BBY250053

Share:

Similar Properties

Stondon Park, London

3 Bedroom Maisonette | Offers in excess of £550,000

Three bedroom | End Terrace Maisonette | Open Plan Kitchen Diner | Private Garden | Close to Shops and Amenities | Good...

Dalrymple Road, London

2 Bedroom Terraced House | Offers in excess of £525,000

| Guide price of £525,000-£550,000 | Private garden | Large open plan kitchen and living room | Study/utility space | La...

Coston Walk, London

3 Bedroom Terraced House | Offers in excess of £525,000

| Three Bedroom Terraced House | Private Residential Parking | 970 Square Foot of Internal Accommodation | West Facing P...

Colfe Road, London

2 Bedroom Ground Floor Flat | Offers in excess of £565,000

| Ground floor garden flat | Period property | Private 56'8 ft garden | Beautifully renovated | Two bedrooms | Offers ov...

Surrey Road, London

2 Bedroom Ground Floor Flat | Asking Price £575,000

| Chain free | Share of freehold | Two double Bedrooms | Private Garden | Southeast facing garden | Period features | Po...

Tressillian Road

3 Bedroom Flat | Asking Price £575,000

| Three bedroom split level conversion | Chain free | Share of freehold | Offers in excess of 1000 sq.ft internal accomo...

Bryan & Keegan (Lewisham)

190 Hither Green Lane, Lewisham, London, SE13 6QB

0208 852 2388

How much is your home worth?

Use our short form to request a valuation of your property.

Request a Valuation

Mortgage Calculator

Amount Borrowed: £
Total Amount Repayable: £
Total Monthly Payment: £
©2026 The Guild of Property Professionals. All rights reserved. Terms and Conditions | Privacy Policy | Cookie Policy | Complaints Policy | Members Login
The Guild of Property Professionals Trading Address: 121 Park Lane, London W1K 7AG. GPEA Limited. Registered in England & Wales.  Company No: 02819824.  Registered Office Address: 2 St. Stephen's Court, St. Stephen's Road, Bournemouth, Dorset, England, BH2 6LA.  VAT Registration No: 576 8795 61
Book a Property Valuation Update Cookies Preferences