Bushey Hill Road, Camberwell, SE5

Guide Price
£525,000
Under Offer
This property listing is now Under Offer

1 Bedroom Flat for sale in London

1 1 1
  • Private Garden
  • Large Kitchen Diner
  • Proper Double Bedroom
  • High Ceilings
  • Leasehold

GUIDE PRICE £525,000 to £550,000.

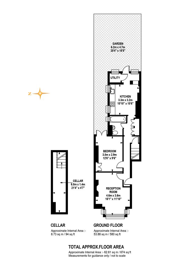
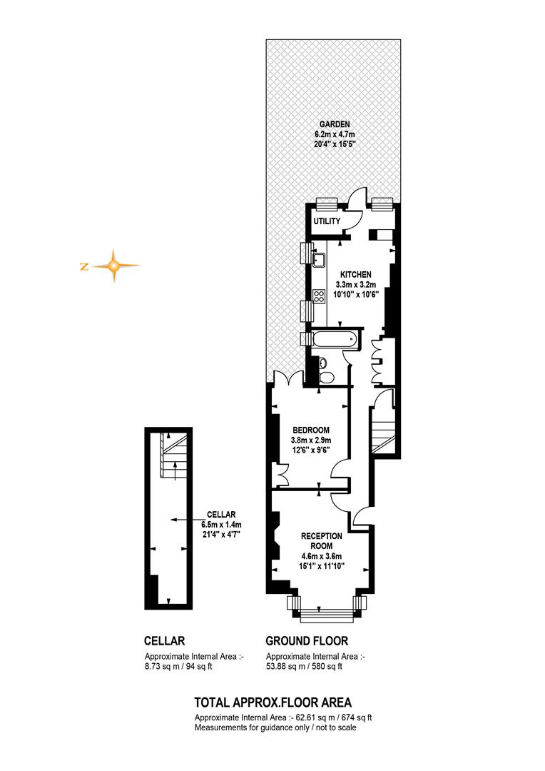
Elegant One Bedroom Period Conversion with Cellar and Generous Private Garden.

Enjoying a considerable proportion, sympathetic finish and sizeable private rear garden, this tidy one bedder ticks all the boxes. It sits on the ground floor of an end-of-terrace Victorian building along one of Peckham's most sought-after streets. The accommodation comprises a lovely bright reception, large double bedroom, swanky bathroom and a large kitchen/diner with direct garden access. A handy storage cellar affords you space for any amount of this or that. You're within a stroll of all that Camberwell offers and within easy reach of Bellenden Road too. Bushey Hill Road is a mature, popular street that rises gently from Peckham Road to Lyndhurst Grove and sits within a pleasurable five minute ramble of bountiful Bellenden Village. Transport is a cinch with Peckham Rye Station a seven minute stroll for swift, regular services to London Bridge, Victoria, Elephant and Castle, Blackfriars, Farringdon, Shoreditch and oodles more. Your social life will buzz with the nearby bustle of Camberwell, Peckham, East Dulwich and Queens Road.

The exterior is handsome and painted crisp white. A shared entrance leads inward to your ground floor door. A front-facing reception dons a beautiful period feature fireplace with tasteful mantel and shelving on either side. A neat square bay window enjoys four separate sash windows for tonnes of light. Louvered blinds on the lower panes afford privacy for your binge-watching days. The double bedroom comes next. It's a fine size and has the same tall ceilings. Bespoke fitted wardrobes keep things neat and tidy and there are French doors opening rear to the garden. Floor-to-ceiling louvered blinds finish the space nicely.

The hall is presented pretty in plum. It widens to the rear to offer more bespoke fitted storage units. There is also access to the storage cellar. The bathroom has some pretty aqua tiling over the panelled bath. There's a heated towel rail and a side aspect frosted sash window. At the end of the hall you meet the kitchen/diner which enjoys lovely rustic timber floors, contemporary cabinets and counters, four ring Stoves range. The laundry cupboard and fridge/freezer each precede the garden entrance. Here you'll benefit from lawn, raised patio and integrated seating.

The area has easy access to Peckham Rye (zone 2 and a brisk 5 minute walk) and Denmark Hill stations (also zone 2 and about a 12 minute walk away) for services to London Bridge, Victoria and Blackfriars. The London Overground whizzes you to Clapham, Shoreditch and Canada Water for the Jubilee Line. A whole variety of buses run into town along Peckham Road, just five minutes away. The South London Gallery Café is great for impressing visitors with! Rye Lane is tantalisingly close for any amount of culture. For coffee, croissants, books, antiques, flowers and dry cleaning services, go no further than Bellenden Village (a 3 minute walk). We love Petitou, The Victoria Inn, Ganapati and The Begging Bowl. Even closer is the Toad Bakery - the queues say everything! The Bussey Building has some fab rooftop bars and even a cinema! The highly considered Villa Nursery and Belham Primary are both close - now that's an easy morning drop off! The wide open green spaces of Peckham Rye Park are also within easy reach. Even closer is the very lovely Warwick Gardens. It's a fine spot for a read of the papers.

Tenure: Leasehold

Lease Length: 177 years remaining

Council Tax Band: B

Property Ref: 58297_34352901

Share:

Similar Properties

Consort Road, Nunhead, SE15

2 Bedroom Terraced House | Guide Price £525,000

Spacious Two Bedroom Period Home With Stylish Finish - CHAIN FREE. Sitting along a row similarly charming period homes,...

Maude Road, Camberwell, London

2 Bedroom Flat | Guide Price £525,000

GUIDE PRICE - £525,000 to £550,000.Beautiful Bright Split Level Two Bedder With Contemporary Finish.You'll just love thi...

Denman Road, Peckham, SE15

1 Bedroom Apartment | Offers in excess of £500,000

Terrific One Bedroom Period Conversion With Private Terrace and Garden - CHAIN FREE.You'll just love this magnificent on...

Dagmar Road, Camberwell, SE5

2 Bedroom Flat | £530,000

Wonderful Two Bedroom Period Beauty with Sunny Shared Garden - CHAIN FREE.This gorgeous two bedroom flat is located in a...

Camberwell Grove, Camberwell, SE5

2 Bedroom Flat | Guide Price £550,000

Bright Period Two Bedder With Shared Garden on Best Street.GUIDE PRICE £550,000 to £600,000.You'll want for nothing with...

Dagmar Road, Camberwell, SE5

2 Bedroom Flat | Guide Price £550,000

Stylish Two Bedder With Patio and Terrace.GUIDE PRICE £550,000 to £600,000.Find this stylish and comfortable two bedder...

Wooster & Stock (Nunhead)

Nunhead Green, Nunhead, London, SE15 3QQ

020 7952 0595

How much is your home worth?

Use our short form to request a valuation of your property.

Request a Valuation

Mortgage Calculator

Amount Borrowed: £
Total Amount Repayable: £
Total Monthly Payment: £
©2026 The Guild of Property Professionals. All rights reserved. Terms and Conditions | Privacy Policy | Cookie Policy | Complaints Policy | Members Login
The Guild of Property Professionals Trading Address: 121 Park Lane, London W1K 7AG. GPEA Limited. Registered in England & Wales.  Company No: 02819824.  Registered Office Address: 2 St. Stephen's Court, St. Stephen's Road, Bournemouth, Dorset, England, BH2 6LA.  VAT Registration No: 576 8795 61
Book a Property Valuation Update Cookies Preferences