Champion Hill, London, SE5

Offers in excess of
£500,000
Under Offer
This property listing is now Under Offer

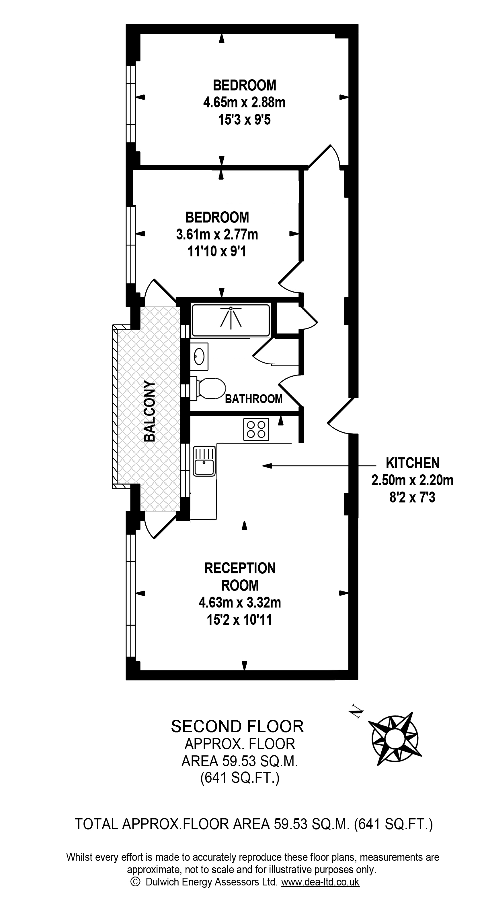
2 Bedroom Apartment for sale in London

2
  • Second floor
  • long Lease
  • Balcony
  • Open Plan Living and Ktichen
  • Two Bedrooms
  • Good Condition
  • Close to Excellent Transport Links
  • Close to Kings College Hospital
  • Close to Ruskin Park
  • Council Tax Band C

With a long lease this light and spacious second floor two bedroom apartment in the sought after Ruskin Park House looks into beautiful well kept gardens. Good transport links from Denmark Hill Overground/BR Stn as well as many buses running into central London. Close to Kings College Hospital.

Two bedroom second floor apartment with a lovely view across well maintained communal gardens.

Ruskin Park House is well established as one of the area’s most popular residential developments, sitting within its beautifully kept gardens and maintained by on-site live-in caretakers. The estate is managed by Ruskin Park House Ltd who act for the residents through a committee of management made up of elected members, all of whom are resident leaseholders. There are on-site allotments and bike sheds as well as a gardening club, informal parents network and poetry readings in the garden.
The development is also conveniently located within easy reach of Denmark Hill, Herne Hill, Camberwell and East Dulwich. These vibrant centres offer a diverse array of recreational facilities including cafes, bars and restaurants such as The Crooked Well and the Sainsbury's superstore on Dog Kennel Hill. The development also boasts a close proximity to the ever popular Ruskin Park. The locality also benefits from excellent transport links from Denmark Hill BR/Overground to Canada Water, Canary Wharf and Shoreditch High Street as well as an array of buses to the City and West End.

Important Information

  • This is a Leasehold property.

Property Ref: HNH250012

Share:

Similar Properties

Champion Hill, London, SE5

2 Bedroom Apartment | Offers in excess of £500,000

This beautiful two bedroom apartment located within the ever popular 1930's designed Ruskin Park House. With a lovely ou...

Champion Hill, Ruskin Park House, SE5

2 Bedroom Apartment | Offers in excess of £500,000

With a long lease this light and spacious second floor two bedroom apartment in the sought after Ruskin Park House looks...

Champion Hill, London, SE5

2 Bedroom Apartment | £499,995

This bright and airy flat provides spacious accommodation through and is ideally located on the Second floor of this pre...

Eastlake Road, London, SE5

2 Bedroom Apartment | Guide Price £550,000

This charming two bedroom period garden flat is adorned with character and bespoke charm set in the vibrant Camberwell c...

Herne Hill, London, SE24

3 Bedroom Terraced House | Guide Price £890,000

Three-bedroom family home near North Dulwich Triangle with kitchen/living room, flexible second reception room, off-stre...

Cambria Road, London, SE5

4 Bedroom End of Terrace House | £975,000

Victorian property comes to the market offering four good size bedrooms, large living area and new kitchen leading onto...

Petermans (London)

London, SE24 9NE

020 7733 5454

How much is your home worth?

Use our short form to request a valuation of your property.

Request a Valuation

Mortgage Calculator

Amount Borrowed: £
Total Amount Repayable: £
Total Monthly Payment: £
©2026 The Guild of Property Professionals. All rights reserved. Terms and Conditions | Privacy Policy | Cookie Policy | Complaints Policy | Members Login
The Guild of Property Professionals Trading Address: 121 Park Lane, London W1K 7AG. GPEA Limited. Registered in England & Wales.  Company No: 02819824.  Registered Office Address: 2 St. Stephen's Court, St. Stephen's Road, Bournemouth, Dorset, England, BH2 6LA.  VAT Registration No: 576 8795 61
Book a Property Valuation Update Cookies Preferences