St Leonards Road, East Sheen, SW14

Offers in excess of
£450,000
SSTC
This property listing is now SSTC

1 Bedroom Flat for sale in London

1 1 1
  • One Bedroom
  • Modern Stylish Bathroom
  • Through Lounge
  • Fitted Kitchen
  • Lower Ground Floor Period Conversion
  • Short Walk to Mortlake Overground Station
  • Close to Thomson House School
  • Close To Local Amenities
  • Lock Up Outside Storage
  • South Facing Walled Rear Garden

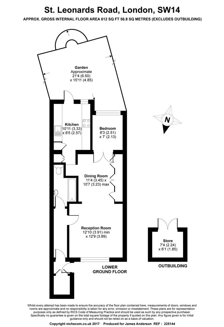
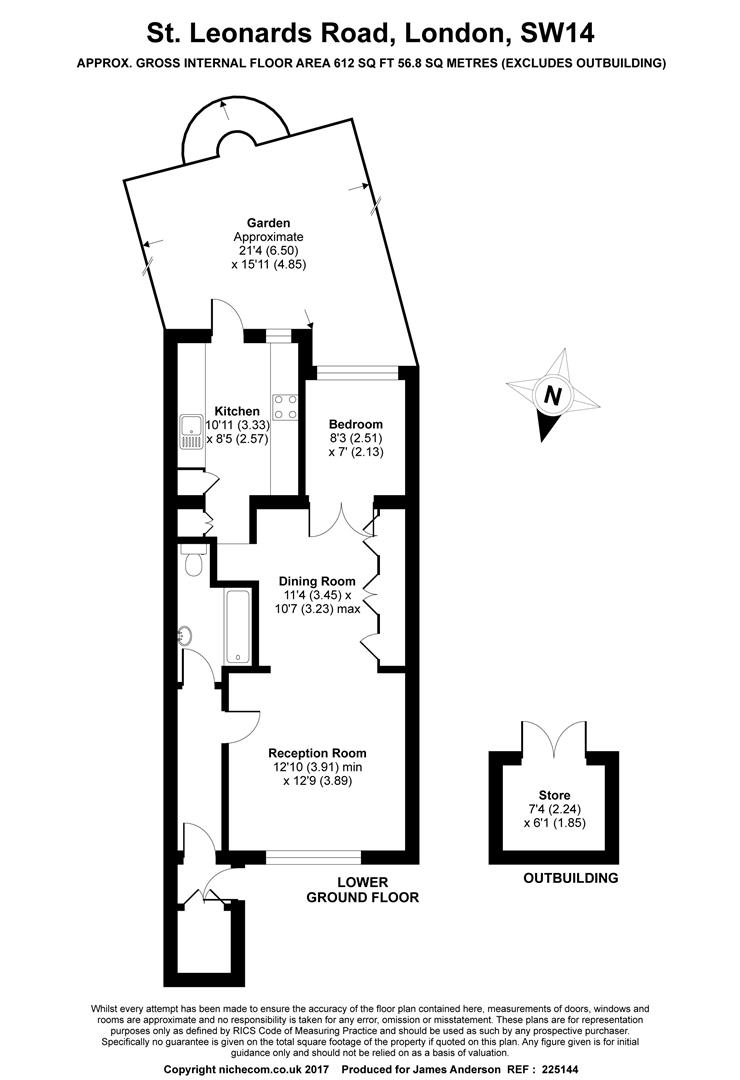
St Leonards Road is a one bedroom lower ground floor period conversion situated within easy reach of the town centre of East Sheen. The property is arranged over one floor. The accommodation provides entrance hall, through lounge, kitchen with plenty of storage, one double bedroom, modern stylish bathroom and a lovely south facing rear garden. The property is well presented throughout and also benefits from a lock up storage to the front. St Leonards Road is conveniently located for the extensive shopping and leisure amenities of East Sheen including Waitrose, a number of gastro pubs, restaurants and coffee shops together with bus routes giving access to Richmond, Putney, Barnes and Hammersmith. Mortlake station is within walking distance with direct access to London Waterloo. Richmond Park is of course also within easy reach. Lease and service charge information is available on request.

Property Ref: 835_31355221

Share:

Similar Properties

Upper Richmond Road West, East Sheen, SW14

2 Bedroom Flat | £450,000

Two double bedroom apartment forming part of a newly built conversion, finished to an exceptional standard throughout.Th...

The Willoughbys, East Sheen, SW14

3 Bedroom Flat | £450,000

A spacious three bedroom second floor apartment presented in good order with a south facing balcony. This wonderful prop...

Upper Richmond Road West, East Sheen, SW14

2 Bedroom Flat | £450,000

A well presented light and bright first floor conversion apartment situated in the heart of East Sheen. The accommodatio...

Sheen Lane, East Sheen, SW14

3 Bedroom Flat | £475,000

A well presented split level conversion apartment directly overlooking Mortlake Green situated within a handsome period...

Deanhill Court, East Sheen, SW14

2 Bedroom Flat | £475,000

OVER 800 sqft - TWO BEDROOMS - NO ONWARD CHAIN - LONG LEASEA spacious and bright two bedroom flat on the second floor of...

Wadham Mews, East Sheen, SW14

2 Bedroom Flat | £475,000

This gorgeous modern apartment boasts kitchen with granite worktops and integrated appliances, open plan to a good size...

James Anderson (East Sheen - Sales)

363 Upper Richmond Road West, East Sheen - Sales, London, SW14 7NX

020 8876 6611

How much is your home worth?

Use our short form to request a valuation of your property.

Request a Valuation

Mortgage Calculator

Amount Borrowed: £
Total Amount Repayable: £
Total Monthly Payment: £
©2025 The Guild of Property Professionals. All rights reserved. Terms and Conditions | Privacy Policy | Cookie Policy | Complaints Policy | Members Login
The Guild of Property Professionals Trading Address: 121 Park Lane, London W1K 7AG. GPEA Limited. Registered in England & Wales.  Company No: 02819824.  Registered Office Address: 2 St. Stephen's Court, St. Stephen's Road, Bournemouth, Dorset, England, BH2 6LA.  VAT Registration No: 576 8795 61
Book a Property Valuation Update Cookies Preferences