Earls Court Road, London

Asking Price
£415,000

1 Bedroom Apartment for sale in London

1 1 1
  • Newly Renovated
  • Great Location
  • New Long Lease
  • Close To Transport
  • Wood Flooring Throughout

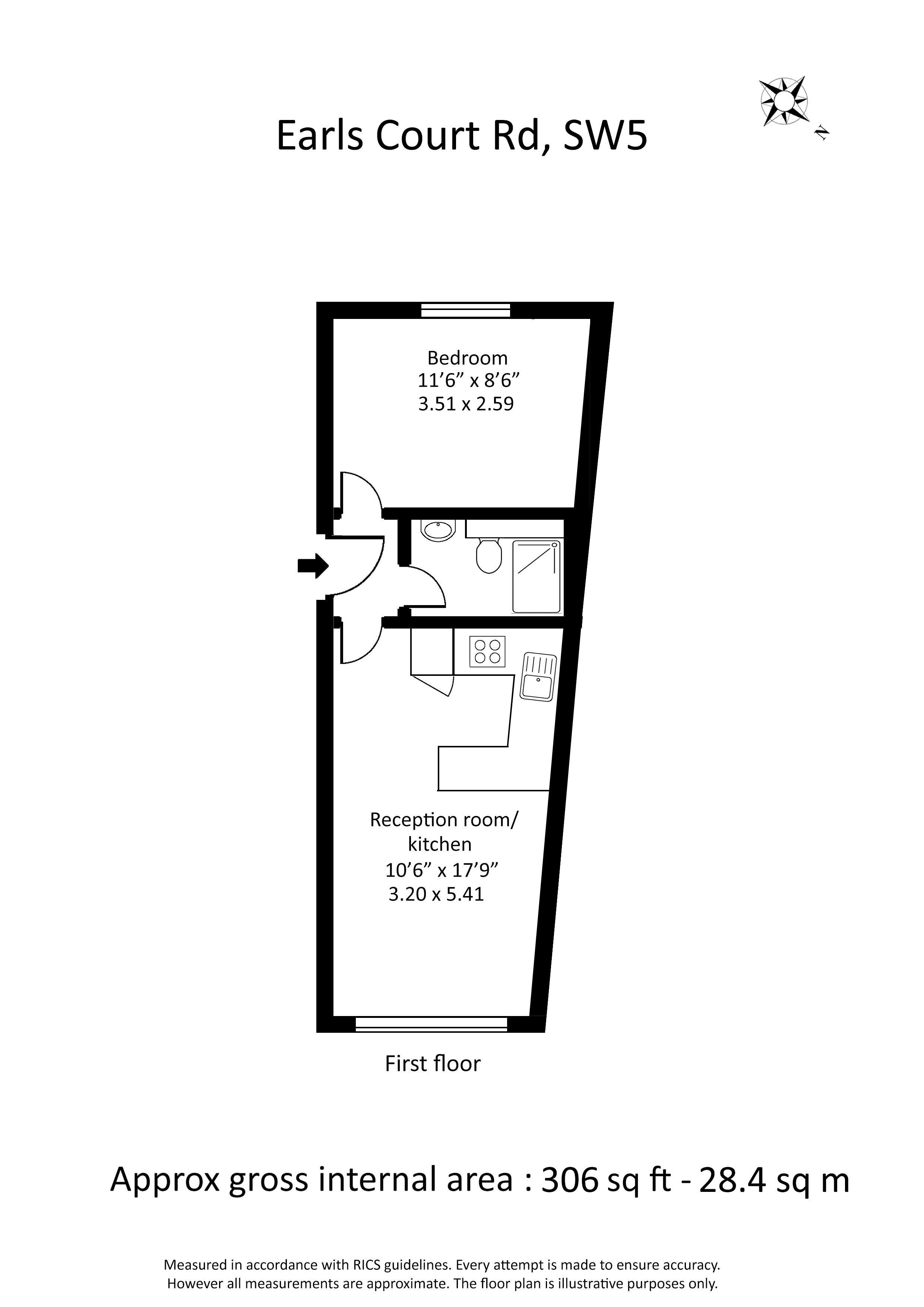
This beautifully refurbished one-bedroom apartment, located on the sought after Earls Court Road in SW5, has been finished to an exceptionally high standard throughout.

The property features wooden flooring throughout. The reception room also benefits from secondary glazing for comfort and tranquillity. The brand-new, fully fitted kitchen is equipped with high-quality integrated appliances, including a washer-dryer, dishwasher, oven, hob, and full-size fridge freezer.

The stylish shower room boasts a contemporary double shower, heated towel rail, and modern fittings, while thoughtful design provides ample built-in storage throughout. Every detail has been carefully considered to create a smart and practical home that maximises both style and space.

With a new 125-year lease, this apartment makes an ideal first-time buy or pied-à-terre in London. Perfectly positioned to enjoy the vibrant lifestyle of the area, residents are moments away from excellent transport links, as well as a wide selection of shops, cafés, and restaurants right on the doorstep.
EPC= D, Council Tax Band = C, Service Charge = £2096, Ground Rent = £150

Important Information

  • This is a Freehold property.

Property Ref: EAXML1225_12773157

Share:

Similar Properties

Downfield Close -

1 Bedroom Apartment | Asking Price £400,000

Located in this popular development close to the Regents Canal is this top floor flat. The block benefits from a lift an...

Brook Road, Borehamwood - 796 sqft

2 Bedroom Apartment | Asking Price £399,999

An immaculate, well proportioned and larger than average 796 sq ft two double bedroom flat located on first floor (with...

Grittleton Road, London

Apartment | Asking Price £399,950

An exceptional studio apartment on the first floor of this well maintained converted Victorian house. The property has w...

Kilburn Park Road, London

1 Bedroom Apartment | Asking Price £425,000

An immaculate one bedroom apartment on the raised ground floor of this converted Victorian house, The property has excel...

Elgin Avenue, London

1 Bedroom Flat | Asking Price £425,000

A very bright and well-presented flat within this converted Victorian property. The flat benefits from a recently update...

Blomfield Road, London

Flat | Asking Price £425,000

A fantastic opportunity to acquire spacious studio apartment on the top floor of this attractive white stucco fronted bu...

Ashley Milton Property Agents (Maida Vale)

Maida Vale, London, W9 1JS

020 7286 6565

How much is your home worth?

Use our short form to request a valuation of your property.

Request a Valuation

Mortgage Calculator

Amount Borrowed: £
Total Amount Repayable: £
Total Monthly Payment: £
©2025 The Guild of Property Professionals. All rights reserved. Terms and Conditions | Privacy Policy | Cookie Policy | Complaints Policy | Members Login
The Guild of Property Professionals Trading Address: 121 Park Lane, London W1K 7AG. GPEA Limited. Registered in England & Wales.  Company No: 02819824.  Registered Office Address: 2 St. Stephen's Court, St. Stephen's Road, Bournemouth, Dorset, England, BH2 6LA.  VAT Registration No: 576 8795 61
Book a Property Valuation Update Cookies Preferences