Blackmore Avenue, Southall, UB1

Offers Over
£525,000
SSTC
This property listing is now SSTC

3 Bedroom House for sale in London

2 3 2
  • 3 Bedrooms
  • End Of Terrace
  • Garage
  • 2 Bathrooms
  • 2 Reception Rooms
  • 8 Min Walk To Elizabeth Line

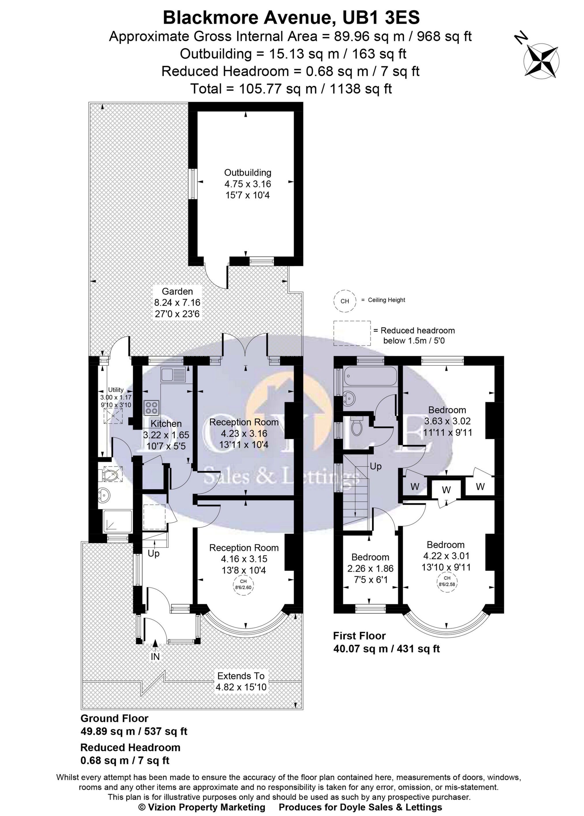
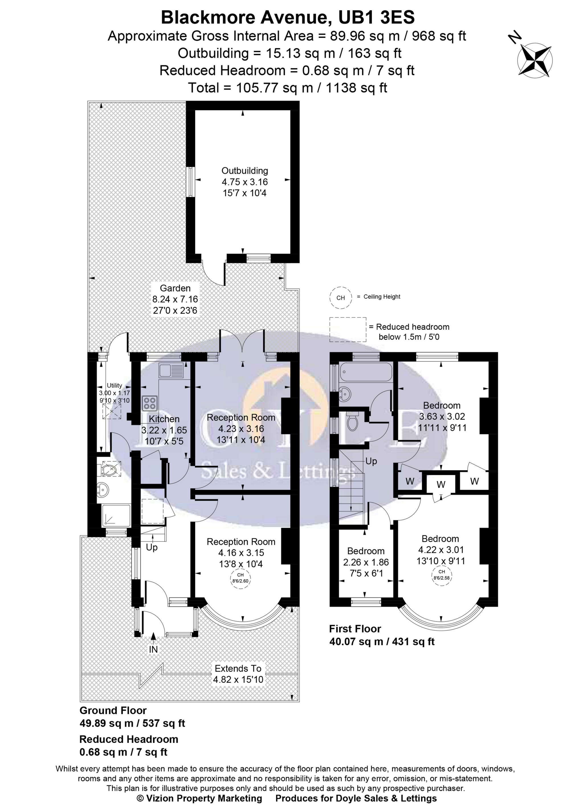
An extended, 3 bedroom, end of terrace, family home with a garage situated in a peaceful cul de sac location on Hanwell borders. The accommodation on the ground floor comprises entrance hallway, bay fronted reception, dining room, Kitchen and side extension with shower room and utility area The first floor offers 3 bedrooms and family bathroom with separate WC. The property benefits from a garage accessed at the rear by a service road, front and rear gardens and an opportunity to extend both the loft space and ground floor STPP. Blackmore Avenue is ideally located only an 8 minute walk to Hanwell Station (Elizabeth Line), in an excellent school catchment and close to Ealing Hospital, road networks, bus routes, canal, parks and Hanwell Broadway.

Important Information

  • This is a Freehold property.

Property Ref: 388489_DOYLE002600

Share:

Similar Properties

Boston Road, Hanwell, W7

2 Bedroom Terraced House | Offers Over £525,000

This charming, two double bedroom terraced cottage is located in the heart of Hanwell. The property comprises front rece...

Campbell Court, Hanwell, W7

3 Bedroom Apartment | £525,000

A share of freehold, 3 bedroom, first floor apartment with own large section of garden and private entrance beside the E...

Murray Court, St Margarets Road, Hanwell, W7

2 Bedroom Apartment | Offers Over £500,000

Recently refurbished, 2 double bedroom top floor apartment with allocated parking and close to the canal in Olde Hanwell...

Connaught Road, West Ealing, W13

2 Bedroom Apartment | £550,000

A stunning and spacious, 2 double bedroom, chain free, period conversion arranged over 2 floors and only a short walk to...

Thames Avenue, Perivale, UB6

3 Bedroom House | £575,000

A well-presented, chain free, 3 bedroom family home, with garage and off-street parking in the ever-popular Medway Villa...

Westcott Crescent, Hanwell, W7

3 Bedroom House | £599,950

Backing onto the park and playing fields is a well-presented, chain free, extended, 3 bedroom, freehold house, close to...

Doyle Sales and Lettings (Hanwell)

Boston Road, Hanwell, London, W7 3TT

020 8840 0171

How much is your home worth?

Use our short form to request a valuation of your property.

Request a Valuation

Mortgage Calculator

Amount Borrowed: £
Total Amount Repayable: £
Total Monthly Payment: £
©2025 The Guild of Property Professionals. All rights reserved. Terms and Conditions | Privacy Policy | Cookie Policy | Complaints Policy | Members Login
The Guild of Property Professionals Trading Address: 121 Park Lane, London W1K 7AG. GPEA Limited. Registered in England & Wales.  Company No: 02819824.  Registered Office Address: 2 St. Stephen's Court, St. Stephen's Road, Bournemouth, Dorset, England, BH2 6LA.  VAT Registration No: 576 8795 61
Book a Property Valuation Update Cookies Preferences