Church Street, Long Bennington

Guide Price
£600,000
SSTC
This property listing is now SSTC

4 Bedroom Detached House for sale in Long Bennington

3 4 3
  • Guide Price �600,000
  • Detached 4 Bedroom Family Home
  • Including SELF CONTAINED Single Storey 1 BEDROOM ANNEXE
  • Ideal For Multi Generational Family Living
  • Open Plan Living and Dining Kitchen
  • 2 Ensuites & Family Bathroom
  • Ample Parking & Double Garage
  • Generous 0.218 Acre Plot with South Facing Rear Garden
  • Tastefully Modernised Throughout
  • EPC Rating C

*** GUIDE PRICE �600,000 *** DETACHED FAMILY HOME ** SELF CONTAINED SINGLE STOREY ANNEXE ** GENEROUS 0.218 ACRE PLOT ** AMPLE PARKING & DOUBLE GARAGE ** 4 DOUBLE BEDROOMS ** 2 ENSUITES & FAMILY BATHROOM ** TASTEFULLY MODERNISED THROUGHOUT ** ESTABLISHED SOUTH FACING REAR GARDEN ** PERFECT FOR EXTENDED FAMILIES ** VIEWING HIGHLY RECOMMENDED **

We have pleasure in offering to the market this really interesting, individual, detached family home which has been significantly enhanced over the years, offering a particularly versatile level of accommodation and providing both a main two storey well proportioned home and an attached single storey ANNEXE, making it perfect for extended families with either dependent relatives or teenagers.

In total the accommodation lies in excess of 2,100sq.ft. comprising the main house which offers around 1,400sq.ft. and the attached single storey annexe giving a further 700sq.ft. of accommodation.

The property is tastefully presented throughout and has benefitted from a general program of thoughtful modernisation over the years with contemporary fixtures and fittings as well as relatively neutral decoration, UPVC double glazing and gas central heating.

Including the annexe, the total accommodation provides four double bedrooms, two with ensuite facilities and separate family bathroom, the main house providing three receptions, an open plan dining kitchen with utility and ground floor cloak room off, and the annexe having it's own well proportioned reception space with open plan dining kitchen, providing a completely self contained unit.

As well as the accommodation the property occupies a delightful plot, generous by modern standards, lying in the region of 0.218 of an acre, as well as offering a southerly rear aspect. The property is set well back from the lane behind a generous frontage with ample off road parking, detached double garage and pleasant enclosed garden at the rear.

Overall viewing comes highly recommended to appreciate both the location and accommodation on offer.

Long Bennington - Long Bennington is a large village located mid way between Newark and Grantham, both approximately seven miles. A strong community spirit is at the heart of Long Bennington with many activities, clubs and amenities. The village has a supermarket, post office, fish and chip shop, a modern doctors' surgery and a health centre, a hairdressers and the Ashiana take away (Indian), and also two coffee shops. There are two public houses with restaurant facilities and a wine bar/brasserie. The infant and primary school in the village has a very high reputation with catchment to the Lincolnshire Grammar and High Schools in Grantham and other near-by excellent secondary schooling. Many commute from Long Bennington, which is by-passed by the A1, to Newark, Grantham and Nottingham with trains from Grantham to London King's Cross in just over an hour.

UPVC DOUBLE GLAZED FRENCH DOORS LEAD INTO:

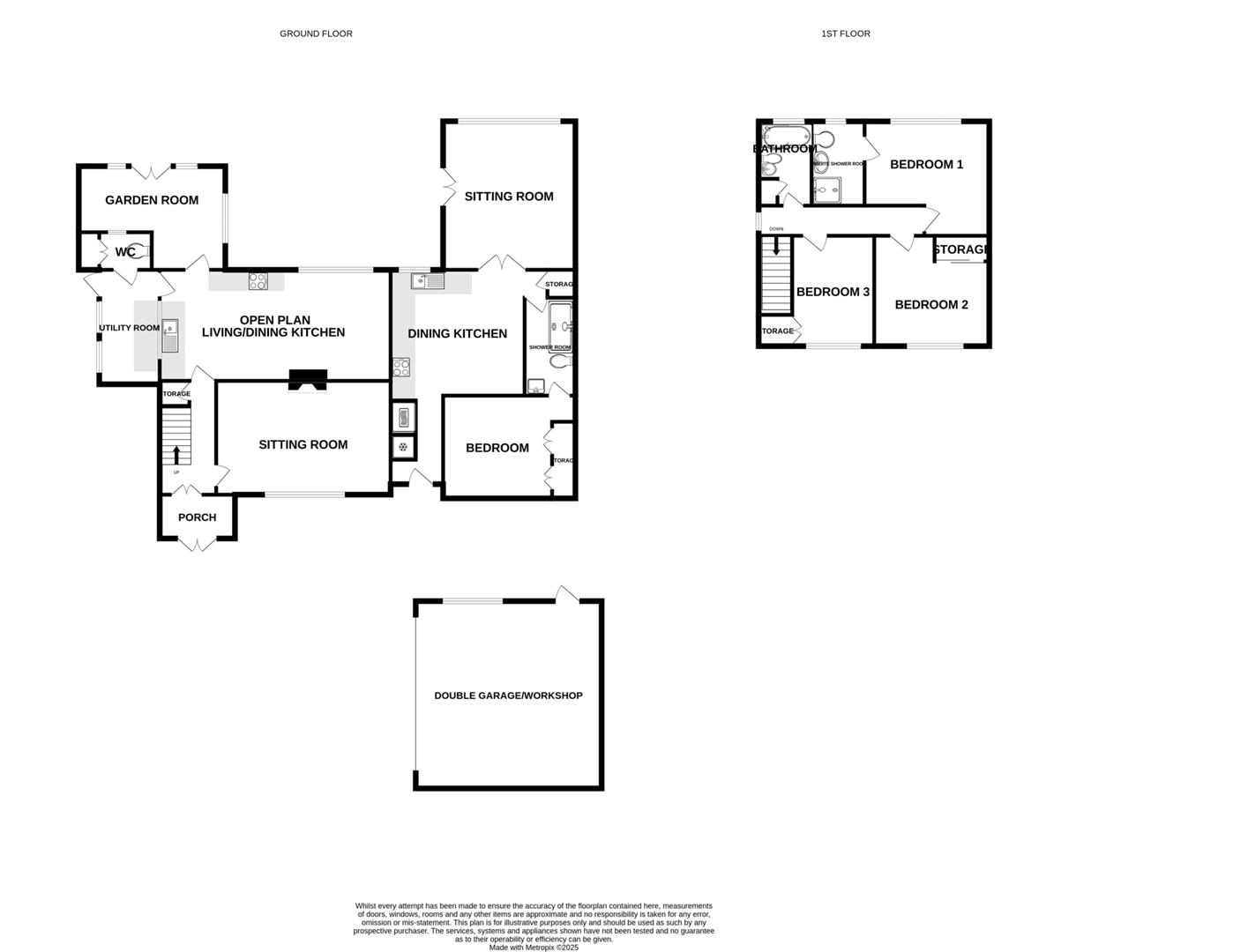
Initial Enclosed Storm Porch - 2.41m x 1.70m (7'11" x 5'7") - A useful addition to the property providing an enclosed area having pitched roof, double glazed windows with opening top lights, double glazed gable end and marble effect tiled floor.

A pair of timber casement glazed doors lead through into:

Main Entrance Hall - 3.71m x 1.80m (12'2" x 5'11") - Having staircase rising to the first floor landing with useful under stairs storage cupboard beneath, continuation of tiled floor and contemporary column radiator. Further doors leading to:

Sitting Room - 5.49m x 3.76m (18' x 12'4") - A well proportioned reception having large double glazed picture window to the front, the focal point to the room being chimney breast with attractive polished stone Minton style fire surround, mantel and hearth with inset grate, deep skirting, coved ceiling, wood effect laminate flooring and central heating radiator.

Open Plan Living/Dining Kitchen - 7.57m x 3.68m (24'10" x 12'1") - A well proportioned light and airy open plan space having pleasant aspect into the rear garden, large enough to accommodate both living and dining area, the initial kitchen area being fitted with a generous range of contemporary gloss fronted wall, base and drawer units with deep pan drawers, ultra thin marble effect worktop, one with inset Franke stainless steel sink and drain unit with chrome swan neck mixer tap, integrated appliances including Lamona ceramic induction hob with AEG chimney hood over and AEG fan assisted oven with combination microwave, plumbing for dishwasher, space for free standing fridge freezer, plinth lighting and under wall unit lighting, inset downlighters to the ceiling, central heating radiator and window through into the conservatory. The living/reception area having chimney breast, further central heating radiator and double glazed picture window.

From the kitchen a multipaned door gives access through into:

Garden Room - 4.65m x 3.00m max (15'3" x 9'10" max) - An L shaped reception being a fantastic addition to the property providing further flexible reception space currently utilised as an additional sitting room but potentially would make formal dining or snug having attractive pitched ceiling with exposed timber purlins, double glazed gable end, windows to two elevations and French doors leading out into the rear garden. There is also an electronically controlled awning over the French doors outside to provide shade in the full sun.

Returning to the kitchen a further door gives access into:

Utility Room - 3.89m x 2.18m (12'9" x 7'2") - Having fitted base unit with granite effect preparation surface over, inset round bowl sink and chrome mixer tap, plumbing for washing machine, space for tumble dryer, central heating radiator, pitched ceiling with inset downlighters, double glazed windows and exterior door.

A further door gives access through into:

Ground Floor Cloak Room - 2.79m x 0.99m (9'2" x 3'3") - Having initial lobby area with useful built in storage cupboard, pitched ceiling with inset downlighter and double glazed window that leads through into the cloak room having close coupled WC, useful storage cupboard above, tiled splash backs and inset downlighter to the ceiling.

RETURNING TO THE MAIN ENTRANCE HALL A STAIRCASE RISES TO:

First Floor Landing - 4.65m x 0.91m (15'3" x 3') - Having access loft space above, central heating radiator and double glazed window.

Further stripped pine doors leading to:

Bedroom 1 - 3.68m x 4.09m max (12'1" x 13'5" max) - A well proportioned L shaped double bedroom having pleasant aspect into the rear garden and benefitting from ensuite facilities, the main bedroom area having central heating radiator, open archway into a dressing area and, in turn a door leading through into:

Ensuite Shower Room - 2.57m x 1.47m (8'5" x 4'10") - Having contemporary suite comprising double width shower enclosure with sliding screen and wall mounted shower mixer with rainwater rose over, close coupled WC, vanity unit with inset washbasin and chrome mixer tap, fully tiled walls, shaver point, contemporary towel radiator and double glazed window to the rear.

Bedroom 2 - 3.63m x 3.71m max (11'11" x 12'2" max) - A further well proportioned double bedroom having useful alcove ideal for free standing wardrobes, wood effect laminate flooring, coved ceiling, central heating radiator and double glazed window to the front.

Bedroom 3 - 3.66m x 2.72m max (12' x 8'11" max) - A further double bedroom having aspect to the front having useful built in wardrobe with overhead storage cupboard, wood effect laminate flooring, central heating radiator and double glazed window.

Bathroom - 2.64m x 1.70m (8'8" x 5'7") - Having contemporary suite comprising L shaped shower bath with chrome mixer tap with both integrated shower handset and rainwater rose over and glass screen, closed coupled WC, vanity unit with inset washbasin, chrome mixer tap and tiled splash backs, central heating radiator, inset downlighters to the ceiling, shaver point, built in storage cupboards and double glazed window to the rear,

Single Storey Annexe - Accessed separately from the main dwelling is an attached single storey annexe which provides completely self contained accommodation and would be ideal for extended families large enough to happily accommodate two adults or a home business., a guest suite or even, potentially, a short term let (this would be subject to any necessary change of consents). Alternatively the property could be amalgamated into the main home providing an additional bedroom and reception space.

The accommodation comprises a UPVC entrance door that leads into an initial lobby area having built in cloaks cupboard with sliding door fronts, attractive pitched ceiling with inset skylight which opens out into:

Dining Kitchen - 4.09m x 4.47m (13'5" x 14'8") - A fantastic well proportioned space having part vaulted ceiling with inset skylight and additional downlighters, the kitchen fitted with a generous range of contemporary gloss fronted wall, base and drawer units providing an excellent level of storage, L shaped preparation surfaces, inset sink and drain unit with swan neck mixer tap, integrated appliances including Lamona fan assisted oven, ceramic hob and chimney hood over, plumbing for washing machine and space for tumble dryer and free standing fridge freezer. The dining area is open plan to the kitchen having contemporary column radiator, inset downlighters to the ceiling and access loft space above. Also accessed off the kitchen is a useful built in storage cupboard.

A pair of double doors lead through into:

Sitting Room - 4.95m x 4.19m (16'3" x 13'9") - A well proportioned light and airy reception benefitting both from a dual aspect into the garden but also a southerly rear aspect flooding this room with light the room having wood effect laminate flooring, central heating radiator, inset downlighters to the ceiling, double glazed window to the rear and French doors to the side.

FROM THE INITIAL ENTRANCE A FURTHER DOOR LEADS THROUGH INTO:

Bedroom - 4.22m x 3.20m (13'10" x 10'6") - A well proportioned double bedroom benefitting from ensuite facilities having central heating radiator, inset downlighters to the ceiling and double glazed window to the front.

A further door gives Jack & Jill access into:

Shower/Cloak Room - 3.18m x 1.68m (10'5" x 5'6") - Having suite comprising double width shower enclosure with sliding screen and wall mounted shower mixer with both independent handset and rainwater rose over, close coupled WC, vanity unit with inset washbasin and chrome mixer tap, contemporary towel radiator, inset downlighters to the ceiling and double glazed window to the side.

Exterior - The property occupies a delightful plot in this well regarded area of the village being generous by modern standards, lying in the region of 0.218 of an acre. The property is set back from the lane behind a generous driveway providing a considerable level of off road parking which in turn leads to a detached garage. The remainder of the garden is laid to lawn with perimeter borders well stocked with established shrubs, a gateway to the side of the property gives access to a useful outdoor utility space ideal for storage and leads through into a southerly facing rear garden having initial paved terrace leading onto a central lawn, well stocked perimeter borders with established trees and shrubs, an electronically controlled awning over the French doors outside the garden room provides shade in the full sun, a useful timber storage shed and greenhouse and enclosed, in the main, with post and rail feather edged board fencing. The garden offers a relatively good deal of privacy and benefits from a southerly aspect.

Garage - 5.97m x 5.44m (19'7" x 17'10") - A brick and pantile garage having power and light, window and courtesy door to the side. EV charging point. Easily accommodates two cars/workshop area.

Council Tax Band - South Kesteven Borough Council - Band D

Tenure - Freehold

Services - Mains water, electricity, gas and drainage are all connected to the property.

Additional Information - Please see the links below to check for additional information regarding environmental criteria (i.e. flood assessment), school Ofsted ratings, planning applications and services such as broadband and phone signal. Note Richard Watkinson & Partners has no affiliation to any of the below agencies and cannot be responsible for any incorrect information provided by the individual sources.

Flood assessment of an area:-
https://check-long-term-flood-risk.service.gov.uk/risk#

Broadband & Mobile coverage:-
https://checker.ofcom.org.uk/en-gb/broadband-coverage

School Ofsted reports:-
https://reports.ofsted.gov.uk/

Planning applications:-
https://www.gov.uk/search-register-planning-decisions

Viewing - Strictly by appointment with the selling agents.

Possession - Vacant possession will be given on completion.

Mortgage - Mortgage advice is available through our Mortgage Adviser. Your home is at risk if you do not keep up repayments on a mortgage or other loan secured on it.

Property Ref: 59503_34355285

Share:

Similar Properties

Corner Farm, Grassthorpe, Newark NG23 6QZ

5 Bedroom Farm House | Offers in excess of £600,000

Fine 3 storey mid 19th Century farmhouse, extended, beautifully restored and offered in immaculate condition. The proper...

Main Street, Kneesall

House | Offers in region of £600,000

A residential development site comprising farmhouse and barn conversions together with three new builds and a commercial...

Great North Road, Cromwell, Newark

6 Bedroom Country House | Offers in excess of £600,000

Situated in the well served village of Cromwell, near Newark, this stunning detached Georgian period farmhouse offers a...

Top Street, Elston, Newark

4 Bedroom Detached House | £610,000

An individual detached four bedroomed chalet design family house, which is well positioned and set back within 0.324 acr...

Pinfold Lane, Elston, Newark

4 Bedroom Detached House | Guide Price £650,000

** �650,000 - �675,000 GUIDE PRICE**A very well presented, four bedroom, detached family home si...

The Spinney, Elston, Newark

4 Bedroom Detached House | £675,000

A very well presented four bedroomed detached family home, positioned on a superb plot, set back with a deep frontage an...

Richard Watkinson & Partners (Newark)

25 Stodman Street, Newark, Nottinghamshire, NG24 1AT

01636 611811

How much is your home worth?

Use our short form to request a valuation of your property.

Request a Valuation

Mortgage Calculator

Amount Borrowed: £
Total Amount Repayable: £
Total Monthly Payment: £
©2026 The Guild of Property Professionals. All rights reserved. Terms and Conditions | Privacy Policy | Cookie Policy | Complaints Policy | Members Login
The Guild of Property Professionals Trading Address: 121 Park Lane, London W1K 7AG. GPEA Limited. Registered in England & Wales.  Company No: 02819824.  Registered Office Address: 2 St. Stephen's Court, St. Stephen's Road, Bournemouth, Dorset, England, BH2 6LA.  VAT Registration No: 576 8795 61
Book a Property Valuation Update Cookies Preferences