Aintree Road, Lordswood, Chatham, ME5

Guide Price
£475,000
SSTC
This property listing is now SSTC

4 Bedroom Detached House for sale in Lordswood, Chatham

2 4 1
  • Four Bedroom Detached
  • Modern Fitted Kitchen/Breakfast Room
  • Immaculate Condition Throughout
  • Two Reception Rooms
  • Conservatory
  • Downstairs Cloakroom
  • Sought After Location
  • Garage & Driveway
  • Enclosed Rear Garden

Guide Price £475,000 - £495,000

We are pleased to present this immaculate four bedroom family home. The current owners have placed a lot of care maintaining this lovely home and you will not be disappointed. Rarely do properties become available on what is known as the Race Course Development which is a sought after area and also within walking distance to local schools.

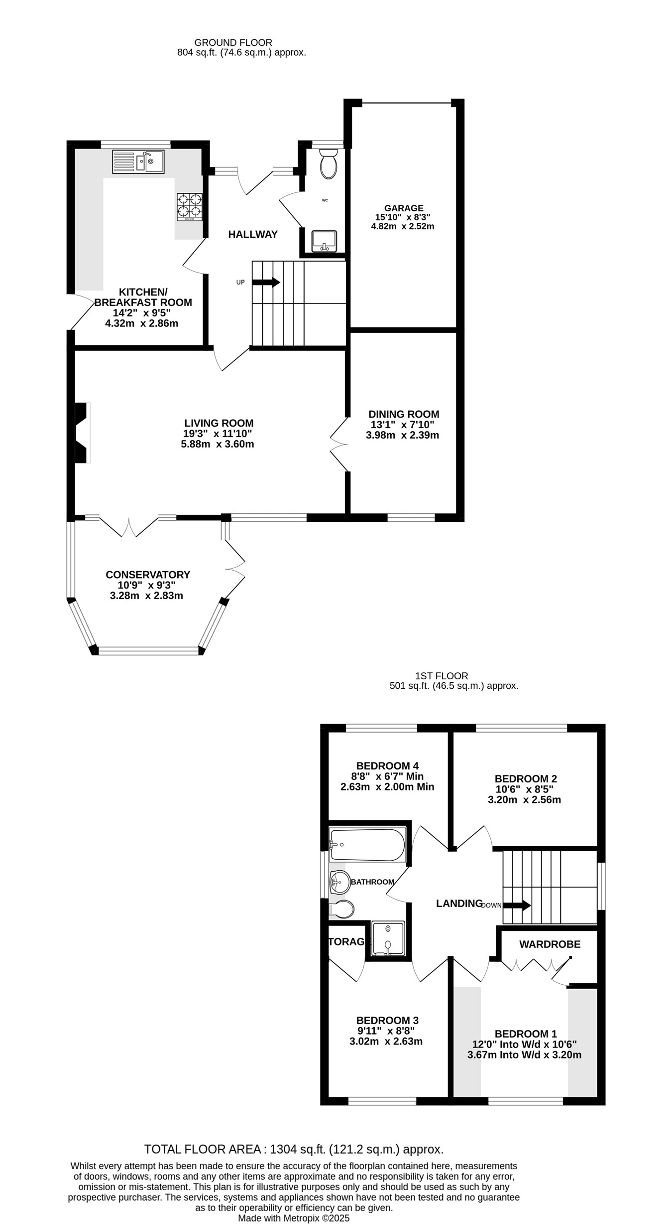
To the ground floor you are welcomed to a spacious entrance hallway with stairs to the first floor. It is very noticeable when entering this lovely home how well presented it is, which continues throughout. You have a handy WC and the modern fitted kitchen/breakfast room which offers a range of fitted wall and base units and ample worksurfaces. it also offers a host of integrated appliances to include double oven, microwave, gas hob and dishwasher. The lounge is a great space to unwind and chill with the focus point of a limestone fireplace. There is a separate dining room which is versatile as it could be offered as a guest room or study. The property also benefits from the conservatory which is a great room again to relax in all year round as it overlooks the private garden.

Moving upstairs you are greeted with four good size bedrooms, the premium offering bespoke fitted wardrobes and a family bathroom with a modern fitted suite with separate shower cubicle.

Externally if you are looking for a South facing garden which is low maintenance then this is ideal as mainly laid to lawn, with large patio area. This is a great space for those family gatherings and also ideal for children to be safe and secure. Gated side access leading to the front with driveway and garage with electric door.

We do highly recommend a viewing, please call the Walderslade Sales Team for further details.Ground Floor

Hallway

WC

Kitchen/Breakfast Room
14' 2" x 9' 4" (4.32m x 2.84m)

Living Room
19' 3" x 11' 10" (5.87m x 3.61m)

Dining Room
13' 1" x 7' 10" (3.99m x 2.39m)

Conservatory
10' 9" x 9' 3" (3.28m x 2.82m)

First Floor

Bedroom 1
12' 0" x 10' 6" (3.66m x 3.20m)

Bedroom 2
10' 6" x 8' 5" (3.20m x 2.57m)

Bedroom 3
9' 11" x 8' 8" (3.02m x 2.64m)

Bedroom 4
8' 8" x 6' 7" (2.64m x 2.01m)

Bathroom

External

Garage
15' 10" x 8' 3" (4.83m x 2.51m)

Important Information

  • This is a Freehold property.

Property Ref: 29515700

Share:

Similar Properties

Kingshill Drive, Hoo, Rochester, ME3

3 Bedroom Detached Bungalow | Offers Over £450,000

Situated in the ever popular Hoo, Rochester. This super detached bungalow benefits from being in the Hoo peninsula with...

Bronington Close, Princes Park, Chatham, ME5

4 Bedroom Detached House | Guide Price £450,000

Guide Price £450,000 - £475,000Excellent family home offering spacious accommodation. Tucked away in a corner position a...

Meadside Walk, Walderslade, Chatham, ME5

4 Bedroom Detached House | Guide Price £425,000

Guide Price £425,000 - £450,000This lovely family home has spacious accommodation and is situated in a cul-de-sac on the...

Spencer Close, Walderslade, Chatham, ME5

4 Bedroom Detached House | Offers in excess of £480,000

We are pleased to present to the market this immaculate four bedroom detached property which the current owners have mai...

Chestnut Avenue, Walderslade, Chatham, ME5

3 Bedroom Detached Bungalow | Offers in excess of £500,000

Ready to move into is this three double bedroom detached bungalow which has been extended and renovated to a high standa...

Niven Close, Wainscott, Rochester, ME3

4 Bedroom Detached House | Offers Over £550,000

We are pleased to present to the market this delightful detached family home. This property has been well maintained thr...

Greyfox Sales & Lettings (Walderslade)

Walderslade Village Centre, Walderslade, Walderslade, Kent, ME5 9LR

01634 672227

How much is your home worth?

Use our short form to request a valuation of your property.

Request a Valuation

Mortgage Calculator

Amount Borrowed: £
Total Amount Repayable: £
Total Monthly Payment: £
©2026 The Guild of Property Professionals. All rights reserved. Terms and Conditions | Privacy Policy | Cookie Policy | Complaints Policy | Members Login
The Guild of Property Professionals Trading Address: 121 Park Lane, London W1K 7AG. GPEA Limited. Registered in England & Wales.  Company No: 02819824.  Registered Office Address: 2 St. Stephen's Court, St. Stephen's Road, Bournemouth, Dorset, England, BH2 6LA.  VAT Registration No: 576 8795 61
Book a Property Valuation Update Cookies Preferences