Wellcroft Gardens, Lymm, WA13 0LU

£365,000
SSTC
This property listing is now SSTC

3 Bedroom Semi-Detached House for sale in Lymm

1 3 1
  • Beautifully presented three bedroom property
  • Popular Seasons Development
  • Walking distance to Lymm High School
  • Immaculately maintained gardens
  • Lounge with bespoke built-in media unit
  • Off-road parking
  • Attached Garage
  • Downstairs WC
  • Kitchen with integrated appliances
  • Early viewings strongly recommended

BEAUTIFULLY PRESENTED Three-Bedroom Semi-Detached Home in the Popular Seasons Development

This stylish and move-in-ready home is perfect for young families, professionals, or those seeking a convenient lock-up-and-go lifestyle. Set within the highly sought-after Seasons Development, the property offers thoughtfully designed accommodation with contemporary finishes throughout.

Ideally located close to the heart of Lymm village, residents can enjoy an excellent range of local amenities, charming shops, and scenic countryside walks right on the doorstep. Lymm High School is also within easy walking distance, making this a superb choice for families.

Combining comfort, convenience, and a desirable location, this delightful home is not to be missed. Early viewings are highly recommended.

 

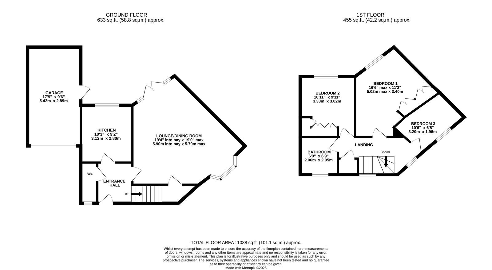
OPEN CANOPY ENTRANCE PORCH

ENTRANCE HALLWAY
Newly installed composite front door, uPVC double glazed window to the front elevation, laminate wood flooring, central heating radiator and stairs to the first floor.
DOWNSTAIRS W.C.
Comprising WC, wash hand basin with splash back tiling, laminate wood flooring, central heating radiator and window to the front elevation.
KITCHEN - 3.12m x 2.8m (10'2" x 9'2")
Comprehensively fitted with a matching range of base and eye level units incorporating Rangemaster stainless steel inset sink unit with pull-out mixer tap, Bosch four ring gas hob with extractor over, Candy oven, space for fridge/freezer, plumbing and space for washing machine, Bosch dishwasher, central heating radiator, laminate wood flooring, window to the rear elevation, cupboard housing Icos central heating boiler, part tiled walls and window to the rear elevation.
LOUNGE/DINING ROOM - 5.9m x 5.79m (19'4" x 18'11")
A beautifully presented entertaining room featuring a bespoke built-in media unit along one wall. This includes concealed  central heating radiator, ample storage cupboards, one thoughtfully designed to accommodate a laptop or PC alongside a TV point and remote controlled dimmable inset lighting. The room benefits from laminate wood flooring, central heating radiator, two windows to the front elevation and French doors with side panels that open out onto the rear garden, allowing plenty of natural light. A generous built-in under stairs storage cupboard provides a useful storage area.
STAIRS TO THE FIRST FLOOR AND LANDING
Two windows to the front elevation, access to loft and cupboard housing hot water cylinder.
BEDROOM 1 - 5.02m x 3.4m (16'5" x 11'1")
Window to the rear elevation, central heating radiator and two double built in wardrobes.
BEDROOM 2 - 3.33m x 3.02m (10'11" x 9'10")
Window to the rear elevation, built in wardrobes and matching cupboards to two walls, central heating radiator.
BEDROOM 3 - 3.2m x 1.96m (10'5" x 6'5")
Window to the front elevation and central heating radiator.
BATHROOM - 2.06m x 2.05m (6'9" x 6'8")
Comprising tiled enclosed bath with overhead shower, rail and curtain, WC, wash hand basin with mixer tap, shaver point, part tiled walls, tiled flooring, central heating radiator and window to the front elevation.
EXTERNALLY

The property boasts a charming and pretty front garden, an ideal spot to enjoy your morning coffee. A driveway provides convenient off-road parking and leads to the garage. To the rear, you'll find a fully enclosed, low-maintenance garden featuring a decked seating area, a slate-effect patio and attractive wooden planters filled with a variety of flowering plants. Additional highlights include outdoor lighting and a cold water tap.

Garage - 5.42m x 2.89m (17'9" x 9'5")
With up and over door to the front elevation, side personal door with access onto the rear garden, eaves storage space, light and power.
TENURE
Leasehold - 250 years from January 2006. Ground Rent payable £250 payable every January. Service Charge £320 p.a. payable every November.
COUNCIL TAX BAND
Warrington Tax Band D.
SERVICES
All mains services are connected. Please note we have not tested the services or any of the equipment in this property, accordingly we strongly advise prospective purchasers to commission their own survey or service report before finalising their offer to purchase.

THESE PARTICULARS ARE ISSUED IN GOOD FAITH BUT THEY ARE NOT GUARANTEED AND DO NOT FORM ANY PART OF A CONTRACT. NEITHER BANNER & CO, NOR THE VENDOR OR LESSOR ACCEPT ANY RESPONSIBILITY IN RESPECT OF THESE PARTICULARS, WHICH ARE NOT INTENDED TO BE STATEMENTS OR REPRESENTATION OF FACT AND ANY INTENDING PURCHASER OR LESSOR MUST SATISFY HIMSELF OR OTHERWISE AS TO THE CORRECTNESS OF EACH OF THE STATEMENTS CONTAINED IN THESE PARTICULARS.


Important Information

  • This is a Leasehold property.
  • The annual cost for the ground rent on this property is £250
  • The annual service charges for this property is £320
  • This Council Tax band for this property is: D

Property Ref: 1103954

Share:

Similar Properties

Whitesands Road, Lymm, WA13 9LF

4 Bedroom Semi-Detached House | £360,000

A beautifully presented and extended four-bedroom semi-detached home, offering spacious, ready-to-move-into accommodatio...

Church Road, Lymm, WA13 0QG

3 Bedroom Terraced House | £360,000

A unique Grade II listed Fustian cottage, dating back to around 1850 and originally built as a mill for the fustian cutt...

Albany Road, Lymm, WA13 9LP

3 Bedroom Semi-Detached Bungalow | £350,000

Spacious and well maintained three-bedroom semi-detached dormer bungalow with no onward chain. Located a short walk from...

Richmond Drive, Lymm WA13 9HE

2 Bedroom Semi-Detached Bungalow | £387,000

REFURBISHED BUNGALOW: This delightful two bed semi-detached bungalow is situated in a popular location within walking di...

Springbank Gardens, Lymm, WA13 9GR

4 Bedroom Town House | £400,000

Spacious Four-Bedroom Townhouse in a Popular LocationWell-presented four-bedroom home arranged over three floors, offeri...

School Drive, Lymm

4 Bedroom Semi-Detached House | Offers Over £425,000

We are pleased to offer for sale this semi-detached townhouse which is situated within walking distance of local ameniti...

Banner & Co (Lymm)

Lymm, Cheshire, WA13 0AG

01925 753636

How much is your home worth?

Use our short form to request a valuation of your property.

Request a Valuation

Mortgage Calculator

Amount Borrowed: £
Total Amount Repayable: £
Total Monthly Payment: £
©2026 The Guild of Property Professionals. All rights reserved. Terms and Conditions | Privacy Policy | Cookie Policy | Complaints Policy | Members Login
The Guild of Property Professionals Trading Address: 121 Park Lane, London W1K 7AG. GPEA Limited. Registered in England & Wales.  Company No: 02819824.  Registered Office Address: 2 St. Stephen's Court, St. Stephen's Road, Bournemouth, Dorset, England, BH2 6LA.  VAT Registration No: 576 8795 61
Book a Property Valuation Update Cookies Preferences