Lympstone, Exmouth

Guide Price
£475,000

3 Bedroom Semi-Detached House for sale in Lympstone

1 3 3

Directions

From Topsham, head towards Exton via Station Road and Elm Grove Road and at the St. George & Dragon Inn roundabout (after passing Darts Farm on your left), turn right onto the A376. Pass Ebford and Exton and continue past Lympstone Commando base on your right. The entrance to Nutwell Cottages will be found a short distance along on the right hand side, once you have passed the Toby Carvery on your left.

What3Words: ///painted.parked.guessing

Situation

Located on the edge of the sought-after estuary village of Lympstone which offers ease of access to both the seaside town of Exmouth and the Cathedral City of Exeter. The village has a well-established local Primary school in the middle of the village, with St Peter's independent school on its outskirts. There is a well-regarded doctor's surgery, two churches, four pubs, one cafe, a hairdressers and a village shop with extended opening hours. A Michelin star restaurant and boutique hotel is a near neighbour. Lympstone supports a wide selection of clubs and societies: sailing and tennis clubs, an active gardening club, film society and other societies bringing live music and drama to the village and fostering home-grown talent. The half-hourly Avocet line train service, with its beautiful views across the River Exe, links the village with Exeter's two main stations: Exeter St David's with its fast train service to London Paddington and Exeter Central with its service to Waterloo. Exeter Central station is at the heart of Exeter's lively shopping centre. The M5 at Junction 30 is just 8 miles away. The Exe Estuary Trail; 26 miles of cycleway along both sides of the Rive Exe, is a much-enjoyed addition to Lympstone's many attractions.

Description

OPEN HOUSE 16th MAY - Call to book in!

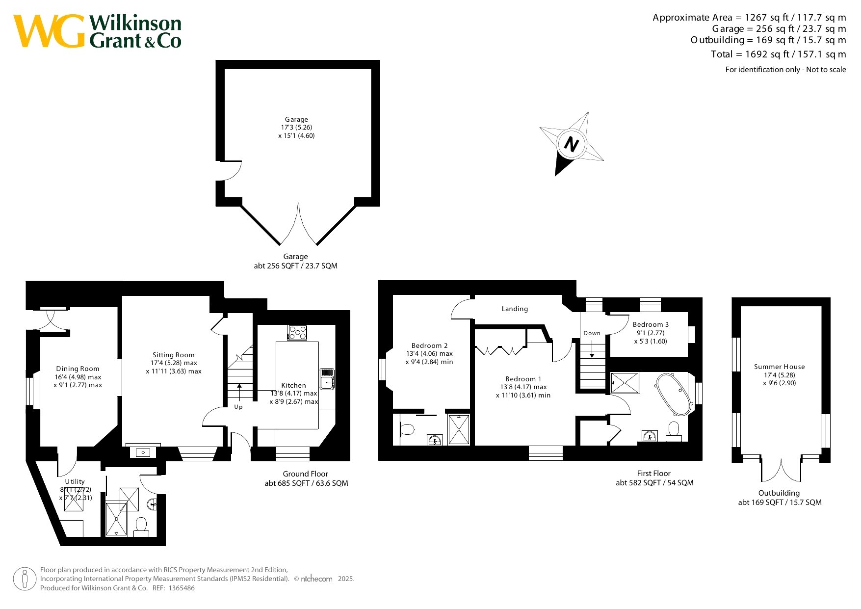
Situated on the edge of the Nutwell estate and believed to have been a former worker's cottage, this delightful house is set in grounds of a third of an acre and has beautiful views over neighbouring fields and to the Exe Estuary.

The cottage has a good size kitchen, a spacious sitting room leading through to a dining room. Off the dining room is a recently constructed downstairs utility room and WC with shower and a separate door to the driveway.

Upstairs there are two double bedrooms both with en suites, a third (single) bedroom currently used as an office.

Outside, the grounds of the house are to the side; mainly laid to lawn. The driveway leads to the large garage and parking area. There are also a number of sheds and a large summerhouse. The garden enjoys wonderful views over the neighbouring field.

The property is Grade II Listed

SERVICES    The vendor has advised the following: Mains gas (serving the central heating boiler and hot water), mains electricity and water. Private drainage system/septic tank located within the property boundaries, understood to be of brick construction and shared by 1 and 2 Nutwell Cottages. The soakaway is located in the adjoining field to the North. Maintenance – last serviced and emptied by Hydrorod on 11 April 2025 at a cost of £350 shared between 1 and 2 Nutwell Cottages. The vendor advises that the septic tank is not compliant with the current General Binding Rules, and they are in the process of obtaining a quote to rectify this. Please ask agent for further information. Electric underfloor heating in principal en-suite.

Telephone landline not connected. Broadband: Under contract with Sky. Estimated Standard speed 7 Mbps and Ultrafast speed 1800 Mbps. Mobile signal: Several networks currently showing as available at the property including O2, EE, and Vodafone.

AGENTS NOTE    The neighbouring property at 1 Nutwell Cottages has a pedestrian and vehicular right of access across the driveway through the wooden gate.

AGENTS NOTE    Please note the vendor is an employee of Wilkinson Grant and Company Ltd

AGENTS NOTE    The wood burner in the sitting room requires updating and should not be used in its current state.

50.662314 -3.429315

Important Information

  • This is a Freehold property.

Property Ref: LND250020

Share:

Similar Properties

Topsham, Devon

2 Bedroom Terraced House | £475,000

A charming Grade II Listed mixed-use property in the heart of Topsham, featuring a characterful ground floor retail unit...

Lympstone, Devon

2 Bedroom Bungalow | Guide Price £475,000

Situated in a peaceful, SOUGHT AFTER CUL-DE-SAC, this semi-detached BUNGALOW offers COUNTRYSIDE VIEWS, TWO DOUBLE BEDROO...

Woodbury, Devon

6 Bedroom Terraced House | Guide Price £450,000

A SUBSTANTIAL character property REQUIRING MODERNISATION and IMPROVEMENT offering over 2,300 Sq Ft of accommodation with...

Topsham, Exeter

2 Bedroom Terraced House | Guide Price £480,000

DELIGHTFUL terraced townhouse around 100 metres level walk from the centre of the town. In need of updating. Offering go...

Woodbury, Devon

3 Bedroom Detached House | Guide Price £495,000

Spacious three-bedroom FAMILY HOME with a GENEROUS GARDEN and huge potential to extend. Ideally located opposite playing...

Clyst St. George, Exeter

4 Bedroom Semi-Detached House | Guide Price £499,950

BEAUTIFULLY PRESENTED and THOUGHTFULLY EXTENDED, this home offers the perfect blend of STYLE AND SPACE. Features include...

Wilkinson Grant & Co (Topsham)

Fore Street, Topsham, Devon, EX3 0HQ

01392 875000

How much is your home worth?

Use our short form to request a valuation of your property.

Request a Valuation

Mortgage Calculator

Amount Borrowed: £
Total Amount Repayable: £
Total Monthly Payment: £
©2026 The Guild of Property Professionals. All rights reserved. Terms and Conditions | Privacy Policy | Cookie Policy | Complaints Policy | Members Login
The Guild of Property Professionals Trading Address: 121 Park Lane, London W1K 7AG. GPEA Limited. Registered in England & Wales.  Company No: 02819824.  Registered Office Address: 2 St. Stephen's Court, St. Stephen's Road, Bournemouth, Dorset, England, BH2 6LA.  VAT Registration No: 576 8795 61
Book a Property Valuation Update Cookies Preferences