Caerau Road, Maesteg

Offers Over
£110,000

3 Bedroom Terraced House for sale in Maesteg

3 1
  • 3 Bedrooms
  • Chain free
  • Close proximity to local school, shops and amenities
  • EPC RATING: 'C'.
  • Fitted Bathroom
  • Rear Garden
  • Separate Kitchen With Some Appliances
  • Recently refurbished
  • Close Links to M4

Introducing this fully refurbished three-bedroom property situated on the popular Caerau Road in Maesteg - an ideal opportunity for families, first-time buyers, or investors looking for a turn-key home in a well-established community.

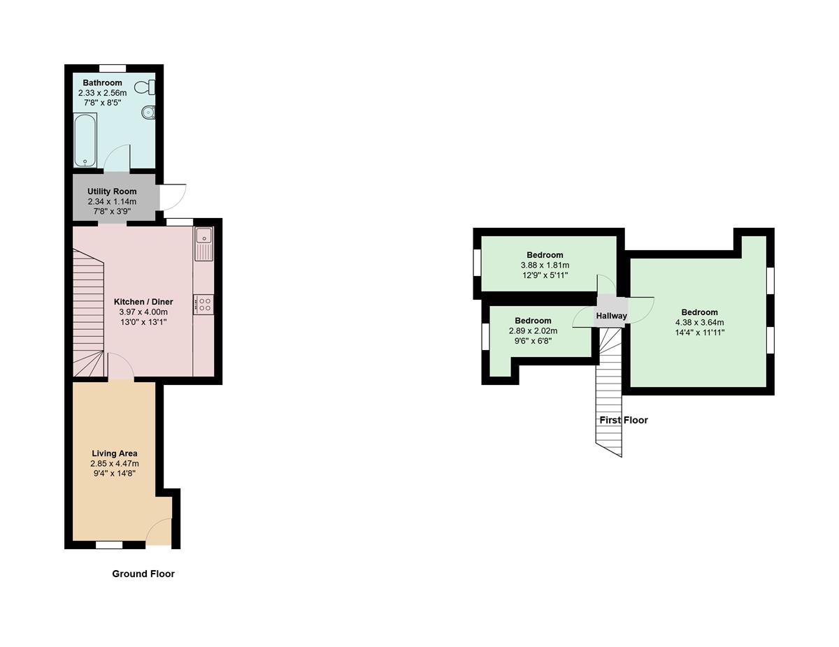
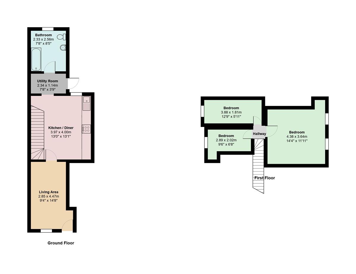
This spacious home has been completely renovated throughout, boasting a fresh and modern finish from top to bottom. This property consists of living room, spacious kitchen, utility room and downstairs family bathroom. The first floor consists of three bedrooms in which could also be used for home working space

The location of this property on Caerau Road offers great access to Maesteg town centre, with its shops, schools, leisure facilities, and train station providing direct links to Bridgend and Cardiff. Surrounded by scenic hills and valleys, Maesteg is a friendly, well-connected community with plenty of outdoor space and local charm.

This is a stunning home that's ready to move straight into - early viewing is highly recommended.

Council Tax Band: A
Tenure: Freehold
Parking options: On Street
Garden details: Rear Garden

Living room w: 2.85m x l: 4.47m x h: 2.55m (w: 9' 4" x l: 14' 8" x h: 8' 5")
White front door with frosted glass, light beige carpet, white walls, skirting boards and ceiling with one light, white cupboard on wall with doors with fuse box and electric meter, one white radiator, large white framed window looking out to front with vertical blinds, 5 double plug sockets

Kitchen w: 4m x l: 3.97m x h: 2.64m (w: 13' 1" x l: 13' x h: 8' 8")
White door with black handle, grey Lino flooring, white walls, skirting boards and ceiling with 7 spotlights, black worktop with electric hob and silver cooker hood, white splash back above countertop, white kitchen cupboards with silver handles, silver sink, tap and draining board, one white radiator, white framed window looking out to rear, 5 double plug sockets, stairs to second floor and open archway to;

Utility w: 1.14m x l: 2.34m x h: 2.28m (w: 3' 9" x l: 7' 8" x h: 7' 6")
Open archway from kitchen, grey Lino flooring as kitchen, white walls, skirting boards and ceiling with 2 spotlights, white worktop with space for washing machine, 3 double plug sockets, door to rear garden, door to;

Bathroom w: 2.33m x l: 2.56m x h: 2.33m (w: 7' 8" x l: 8' 5" x h: 7' 8")
White door with black handle, light grey stone patterned Lino flooring, white walls, skirting boards and ceiling with 4 spotlights, white bath with glass shower screen, black tap, black shower head and hand held shower head, grey stone pattern shower wall splash back, white sink with black tap and grey stone pattern splash back, white toilet, black towel radiator, white framed window with frosted glass

Bedroom 1 w: 3.64m x l: 4.38m x h: 2.38m (w: 11' 11" x l: 14' 4" x h: 7' 10")
White Door with Black handle, white walls, light beige carpet,2 radiators, Boiler in room inside white cupboard,1 spotlight, 3 dual Sockets , 2 large windows overlooking the street

Bedroom 2 w: 1.81m x l: 3.88m x h: 2.29m (w: 5' 11" x l: 12' 9" x h: 7' 6")
White door with black handle, white walls, light beige carpet , 5 dual sockets 1 large radiator, 1 window overlooking garden

Bedroom 3 w: 2.02m x l: 2.89m x h: 2.27m (w: 6' 8" x l: 9' 6" x h: 7' 5")
White door with black handle, light beige carpet, 1 large radiator, 3 dual sockets, 1 window overlooking garden , white skirting boards

Garden
Shared garden with black stones, green back door, grey walls and wooden fence, outside tap, outside dual socket.

Disclaimer
Your attention is drawn to the fact that we have been unable to confirm whether certain items included with the property are in full working order. Any prospective purchaser must accept that the property is offered for sale on this basis. All dimensions are approximate and for guidance purposes only.

Important Information

  • This is a Freehold property.

Property Ref: RS0577

Share:

Similar Properties

Victoria Street, Pontycymer, Bridgend

3 Bedroom Terraced House | Guide Price £110,000

CHAIN FREE A larger-than-average three-bedroom bay-fronted home in Pontycymer, offered with front and rear gardens and a...

Marian Street, Blaengarw, Bridgend

3 Bedroom Terraced House | £100,000

An exceptional chain Free investment opportunity with this partly renovated three-bedroom terraced home, thoughtfully ar...

Brooklands Cottages, Nelson, Treharris

2 Bedroom Terraced House | £99,950

This charming two-bedroom ENCLOSED terraced home, situated in the highly desirable area of Nelson, Treharris, presents a...

West Rhondda Road, Pontyrhyl, Bridgend

2 Bedroom Terraced House | Guide Price £119,500

A modernised two bedroom cottage, situated in the quiet hamlet known as Pontyrhyl, within the Garw valley. Offers splend...

David Street, Blaengarw, Bridgend

2 Bedroom Terraced House | £119,995

**REDUCED** Chain-free two-bed home on David Street, Blaengarw, with open valley and mountain views and no houses opposi...

James Road, Blaengarw, Bridgend

2 Bedroom Terraced House | Offers in region of £119,995

**REDUCED**Situated in an elevated position overlooking the Garw Valley, this mid-terrace property boasts countryside vi...

Wisemove (Pontycymer)

Pontycymer, Bridgend, CF32 8DD

01656870640

How much is your home worth?

Use our short form to request a valuation of your property.

Request a Valuation

Mortgage Calculator

Amount Borrowed: £
Total Amount Repayable: £
Total Monthly Payment: £
©2026 The Guild of Property Professionals. All rights reserved. Terms and Conditions | Privacy Policy | Cookie Policy | Complaints Policy | Members Login
The Guild of Property Professionals Trading Address: 121 Park Lane, London W1K 7AG. GPEA Limited. Registered in England & Wales.  Company No: 02819824.  Registered Office Address: 2 St. Stephen's Court, St. Stephen's Road, Bournemouth, Dorset, England, BH2 6LA.  VAT Registration No: 576 8795 61
Book a Property Valuation Update Cookies Preferences