North Pole Road, Barming, Maidstone

£1,300,000

4 Bedroom Detached House for sale in Maidstone

2 4 3
  • 4 bed detached chalet style property
  • Stunning location with views
  • Spacious accommodation, high spec
  • Magnificent kitchen/family room
  • Utility room
  • 3 bathrooms
  • Detached double garage
  • Landscaped gardens approx one third of an acre
  • Outbuildings

Fellgarth is situated in a quite stunning setting bordering open farmland on the periphery of Barming. The immediate area has excellent local amenities with the county town itself providing a wide range of shopping, educational and social facilities. There is a station in Barming providing services to London.

The property comprises a very substantial detached chalet style property which has been finished to an extremely high specification. The property was built in the late 1920's and has been subject to considerable improvement and extension since that time. The gardens extend to about one third of an acre and are worthy of special mention being beautifully landscaped and taking full advantage of the immediate surroundings. Internal inspection of this quality family home is thoroughly recommended by the sole selling agents. Contact: PAGE & WELLS King Street office 01622 756703. EPC Rating: D.
Council Tax Band: E. Tenure: Freehold.

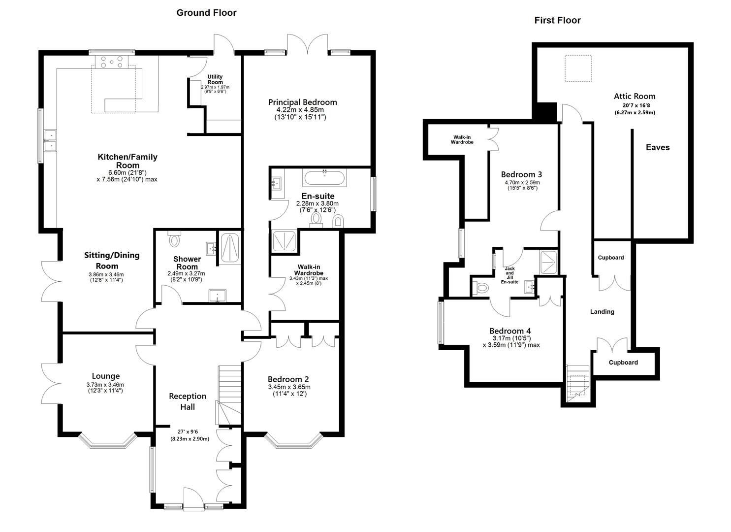
Accommodation -

Ground Floor - Entrance door to ...

Reception Hall: - 8.23m x 2.90m (27' x 9'6) - Natural oak flooring. Staircase to first floor. Range of fitted book shelves. Two boxed radiators. Double glazed leaded light window. Two built in cloaks cupboards.

Lounge: - 3.73m x 3.45m (12'3 x 11'4) - Double aspect room with double glazed double doors with fitted shutters opening to the garden terrace. Bay window with fitted shutters.

Magnificent Kitchen/Family Room: - 7.57m max x 6.60m (24'10 max x 21'8) - The KITCHEN AREA has an extensive range of granite work surfaces with cupboards and drawers under. Inset twin bowl stainless steel sink unit with mixer tap and cupboards under. Range of wall cupboards. Breakfast bar. Built in Fisher Paykel double dishwasher. Two separate Smeg pyrolytic ovens and microwave. Built in wine fridge. Samsung fridge/freezer with ice maker and cold water supply. Box radiator. Sky light. Inset ceiling lighting. This beautiful room incorporates a ...

Sitting/Dining Room: - 3.86m x 3.45m (12'8 x 11'4) - Double aspect with a sizeable sky light. Door to south facing terrace.

Utility Room: - 2.97m x 2.59m (9'9 x 8'6) - Work surface with space under. Range of wall cupboards. Plumbing for washing machine. Tiled flooring. Inset ceiling lighting. Door to garden.

Inner Hallway - Leading to the master suite with oak flooring.

Principal Bedroom: - 4.85m x 4.22m (15'11 x 13'10) - A beautifully proportioned principal bedroom with inset ceiling lighting. Double glazed double doors opening to the garden with fitted shutters.

Walk-In Dressing Room: - 3.43m max x 2.44m (11'3 max x 8') - Fully fitted walk-in dressing room.

En-Suite Bathroom: - 3.81m x 2.29m (12'6 x 7'6) - Free standing bath with side mounted mixer tap. Bidet. Shower enclosure with thermostatically controlled overhead shower.. Low-level WC. Wash hand basin in vanity unit with cupboards and drawers under. Inset ceiling lighting. Recess with glass display shelving.

Bedroom 2: - 3.66m x 3.45m (12' x 11'4) - Double glazed bay window with fitted shutters. Range of built in wardrobe cupboards.

Bathroom - Shower enclosure. Wash hand basin. Low-level WC.

First Floor -

Reception Landing - Range of built in cupboards. Access to ...

Inner Landing - Inset ceiling lighting.

Bedroom 3: - 4.70m x 2.59m (15'5 x 8'6) - Double glazed windows with lovely far reaching views. Door to ...

Jack And Jill En-Suite Shower Room - Low-level WC. Wash hand basin in vanity unit with cupboards under. Shower enclosure with thermostatically controlled overhead shower. Inset ceiling lighting.

Bedroom 4: - 3.58m max x 3.18m (11'9 max x 10'5) - Range of built in wardrobe cupboards. Double glazed window again with lovely views. Door to Jack and Jill shower room.

Attic Room: - 6.27m x 5.08m (20'7 x 16'8) - Providing a very useful storage area with hot water tank.

Externally: - The property is approached from North Pole Road through wrought iron electronically operated double gates. A long pea shingled driveway leads to the property widening to provide very extensive parking and turning and in turn gives access to ...

Detached Double Garage: - 6.10m x 5.33m (20' x 17'6) - Electronically up and over door. Power and light. Glass screen shielding staircase to first floor with a useful OFFICE/PLAY ROOM.

Adjoining Workshop: - 6.10m x 3.35m (20' x 11') - Power and light.

Garden Office: - 6.10m x 2.92m (20' x 9'7) - Central heating. Cloakroom with wash hand basin and low-level WC.

Summerhouse: - 4.34m x 3.05m (14'3 x 10') - Double glazed double doors. Wood burning stove.

Detached Building - Providing a forge with double doors.

Gardens - The gardens, which extend to about one third of an acre, are a delightful feature of the property with extensive areas of lawn interspersed with a variety of ornamental trees and shrubs. Well stocked flower beds. There is a sizeable south facing terrace with views out over the adjoining farmland and beyond. Set in the corner of the garden is a lovely covered seating area with brick pillars for evening drinks.

Viewing - Viewing strictly by arrangements with the Agent's Head Office: 52-54 King Street, Maidstone, Kent ME14 1DB. Tel: 01622 756703.

Directions - Leave Maidstone on the A26 Tonbridge Road. Proceed through Barming, turn right into North Street and continue on before continuing into North Pole Road. Fellgarth will be found after a short distance on the left hand side.

Property Ref: 34395526

Share:

Similar Properties

Heathfield Road, Penenden Heath, Maidstone

5 Bedroom Detached House | Offers in region of £1,100,000

The property is situated in one of Maidstone's most sought after residential roads in Penenden Heath. This popular area...

Hearts Delight Road, Borden, Sittingbourne

5 Bedroom Detached House | Offers in region of £995,000

Filmer House is situated on the edge of the popular village of Borden, set within a small conservation area, bordered by...

Dean Street, East Farleigh, Maidstone

4 Bedroom Detached House | £965,000

A BEAUTIFULLY PRESENTED AND PICTURESQUE GRADE II LISTED OAST HOUSE SITUATED WITHIN GARDENS EXTENDING TO APPROXIMATELY 4-...

South Green, Sittingbourne

6 Bedroom Detached House | Offers in region of £1,395,000

The property is situated in a quite stunning tranquil rural setting on the North Downs in an area of Outstanding Natural...

Page & Wells King Street (Maidstone)

Maidstone, Kent, ME14 1DB

01622 756703

How much is your home worth?

Use our short form to request a valuation of your property.

Request a Valuation

Mortgage Calculator

Amount Borrowed: £
Total Amount Repayable: £
Total Monthly Payment: £
©2026 The Guild of Property Professionals. All rights reserved. Terms and Conditions | Privacy Policy | Cookie Policy | Complaints Policy | Members Login
The Guild of Property Professionals Trading Address: 121 Park Lane, London W1K 7AG. GPEA Limited. Registered in England & Wales.  Company No: 02819824.  Registered Office Address: 2 St. Stephen's Court, St. Stephen's Road, Bournemouth, Dorset, England, BH2 6LA.  VAT Registration No: 576 8795 61
Book a Property Valuation Update Cookies Preferences