St. Philips Avenue, Maidstone

Guide Price
£425,000
SSTC
This property listing is now SSTC

4 Bedroom Terraced House for sale in Maidstone

2 4 2
  • Guide Price: £425,000 - £450,000
  • Extended 4 bed family house
  • Close to town centre and Mote Park
  • 1343 sq ft of accommodation over 3 floors
  • Newly fitted kitchen
  • 2 bathrooms
  • Landscaped rear garden
  • Detached double garage
  • Solar panels with battery storage

** GUIDE PRICE: £425,000 - £450,000 **

The property is situated in a very popular residential area close to Maidstone town centre and Mote Park. The county town provides a good range of shopping, educational and social facilities, together with two mainline stations. Mote Park has 450-acres of mature parkland and a 30-acre lake, providing a wide range of recreational activities.

The property comprises a deceptively spacious four-bedroom family house enjoying mellowed brick elevations under a tiled roof. The property having been extended by our clients to provide excellent family accommodation. The house benefits from solar panels with battery storage, gas fired central heating, double glazing, and is in very good order throughout. The rear garden has been landscaped and is very attractive with a covered seating area. At the bottom of the garden is a detached double garage. Viewing of this lovely family home is thoroughly recommended by the sole selling agents. NO FORWARD CHAIN. Tenure: Freehold. EPC Rating: C. Council Tax Band: C.

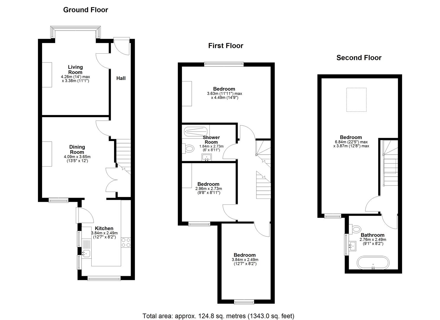
Accommodation -

Ground Floor: - Double glazed entrance door with leaded light glass inset to .

Entrance Hall - Oak flooring. Staircase to first floor.

Living Room - Double glazed bay window to front elevation. Central fireplace in natural brick surround with fitted wood burning stove. Oak flooring.

Dining Room - Double glazed window to rear elevation. Open fireplace. Oak flooring. Built-in cupboards. Leading to ...

Kitchen - Newly fitted kitchen with excellent range of Quartz work surfaces with cupboards and drawers beneath. Sink unit with ProBoil hot water tap. Range of wall cupboards. Space for oven and microwave. 4-ring ceramic hob with extractor fan over. Plumbing for dishwasher and washing machine. Display shelving. Inset ceiling lighting. Double aspect with double glazed windows and door to garden.

First Floor: -

Landing - Staircase to second floor.

Bedroom Two - Double glazed window to front elevation.

Bedroom Three - Double glazed window to rear elevation.

Bedroom Four - Double glazed window to rear elevation.

Luxury Shower Room - Shower cubicle with over-head and hand-held shower. Pedestal wash hand basin. Low level WC. Chrome heated towel rail. Tiled walls. Extractor fan. Recessed shelving. Inset ceiling lighting.

Second Floor: -

Landing - Skylight.

Bedroom One - A beautifully proportioned principal bedroom with Velux window. Double glazed window to rear elevation. Built-in cupboard.

Luxury Bathroom - Free-standing roll top bath with side mounted mixer tap and shower attachment. Pedestal wash hand basin. Low level WC. Chrome heated towel rail and radiator. Inset ceiling lighting. Extractor fan. Part tiled walls. Double glazed window to side elevation. Cupboard concealing Baxi gas fired boiler serving central heating and domestic hot water.

Externally - There is a small garden to the FRONT of the property with brick walling, wrought iron gate and balustrading. The landscaped REAR GARDEN is a good size. Immediately behind the house is a decked terrace with steel framed covered seating area leading on to an area of well-maintained garden with shingled beds and well-stocked flower borders. There are a variety of ornamental trees and shrubs, together with an attractive arbour with climbing rose. At the foot of the garden is a DETACHED DOUBLE GARAGE with hand roll-up door, power, light and electric car charger.

Viewing - Viewing strictly by arrangement with the Agent's Head Office: 52-54 King Street, Maidstone, Kent ME14 1DB. Tel: 01622 756703.

Directions - Leave Maidstone on the A20 Ashford Road. Proceed to the traffic lights at Square Hill and turn right. Continue to the mini-roundabout bearing left. First left into Hastings Road. Continue on into St Philips Avenue.

Property Ref: 34263154

Share:

Similar Properties

Halfpenny Close, Barming

4 Bedroom Semi-Detached House | Guide Price £425,000

** GUIDE PRICE: £425,000 - £450,000 ** A BEAUTIFULLY PRESENTED AND SIGNIFICANTLY EXTENDED FOUR BEDROOM SEMI-DETACHED FAM...

Sutton Road, Maidstone

3 Bedroom Detached Bungalow | £425,000

** A WELL MAINTAINED AND EXTENDED 3 BEDROOM DETACHED BUNGALOW SITUATED IN A PRIME LOCATION SET BACK OFF THE SUTTON ROAD...

Somerfield Road, Maidstone

3 Bedroom Semi-Detached House | Guide Price £420,000

** GUIDE PRICE: £420,000 - £440,000 ** The property is situated in one of Maidstone's most sought-after residential road...

Albert Reed Gardens, Tovil, Maidstone

4 Bedroom End of Terrace House | Offers in excess of £450,000

The property is situated in a delightful setting on the outskirts of Maidstone. Tovil Green provides excellent local ame...

Sutton Road, Maidstone

3 Bedroom Detached Bungalow | Offers in region of £450,000

The property is situated in a popular residential area close to Maidstone town centre. The immediate area has excellent...

Grace Avenue, Maidstone

3 Bedroom Semi-Detached House | Offers in region of £450,000

The property is situated in a very popular residential area off the London Road approximately one mile from Maidstone to...

Page & Wells King Street (Maidstone)

Maidstone, Kent, ME14 1DB

01622 756703

How much is your home worth?

Use our short form to request a valuation of your property.

Request a Valuation

Mortgage Calculator

Amount Borrowed: £
Total Amount Repayable: £
Total Monthly Payment: £
©2026 The Guild of Property Professionals. All rights reserved. Terms and Conditions | Privacy Policy | Cookie Policy | Complaints Policy | Members Login
The Guild of Property Professionals Trading Address: 121 Park Lane, London W1K 7AG. GPEA Limited. Registered in England & Wales.  Company No: 02819824.  Registered Office Address: 2 St. Stephen's Court, St. Stephen's Road, Bournemouth, Dorset, England, BH2 6LA.  VAT Registration No: 576 8795 61
Book a Property Valuation Update Cookies Preferences