Land, Main Road, Long Bennington, NG23 5EH

£2,500,000
SSTC
This property listing is now SSTC

Residential Development for sale in Main Road

LOCATION
** METHOD OF SALE : The site is offered for sale by way of informal tender. Detailed offers are invited for the freehold interest. Offers should be made in writing or by email by close of business on Monday 25th July 2022.**

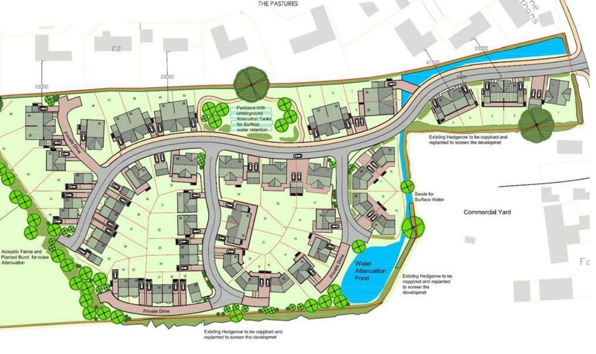
Long Bennington is a linear village located just off the A1,approximately 5 miles south of Newark and 7 miles north of Grantham in the South Kesteven District of Lincolnshire.The local town of Newark is a sizeable market town, with a residential population of 40,118 and Grantham 45,085.Both market towns have a range of National and independant retailers, supermarkets, banks, cafe's, bars, restaurants, leisure and sporting facilities. The site is situated on the southern edge of the village and to the west side of Main Road. The Pastures, a popular housing estate adjoins the site immediately to the north, which comprises mainly detached residential housing. Open farmland adjoins the north and west boundary. A commercial vehicle yard adjoins the site to the south east.

The area is placed reasonably centrally within the United Kingdom and is highly accessible for many towns and cities. The village is well placed for access to the A1 for commuting south to Stamford (30 miles) and Peterborough (40 miles) north Retford (25 miles), Worksop (30 miles) and Doncaster (44 miles). The A46 for commuting to Nottingham (22 miles), Lincoln (23 miles) and Leicester (37 miles). The A52 is located 7 miles distant for access to the market town Bingham (12 miles) & West Bridgford (20 miles) to the west and Sleaford (20 miles) to the east.

There is good public transport links, including direct rail services to London Kings Cross, from Newark Northgate Railway Station & Grantham, with journey times of approximately 1 hour 10 minutes and to Leeds in approximately 50 minutes. Further East Midlands train services run from Newark Castle Railway Station to the cities of Lincoln and Nottingham. East Midlands Airport is located approximately 35 miles distant and Robin Hood Doncaster Airport is located approximately 40 miles distant. Regular bus services run locally through the villages and to the city of Nottingham.

DESCRIPTION
The site area comprises 2.30 hectares (5.68 acres). It has a frontage to Main Road of approximately 40 meters, with an average depth of 190 meters, with an average width of the main part of the site of 100 meters. The site comprises one large field, currently used for agriculture. It has natural boundaries including established and mature hedgerows.The site is largely flat, with levels dropping to the south���eastern corner of the site.

ACCOMMODATION
The site has outline planning consent for up to 50 units. A proposed site plan has been submitted to the planning department, providing a mixed scheme of 2 bedroom semi detached and terrace houses, 3 bedroom semi detached and detached houses and bungalows, 4 & 5 bedroom detached houses. The gross floor area of the current scheme is circa 70,000 sq.ft (700 m.sq)
A more detailed breakdown of accommodation is available in the data room if required.

SITE INFORMATION
The following reports which have been commissioned by the seller are available from the agents via a data room.
* Design & Access Statement
* Tree Survey
* Noise Assessment
* Environment Agency report
* Flood Risk Report
* Highways Report
* CCTV Drainage Report
* Phase I Ecological Report

SERVICES
Mains water, electricity and drainage are all available in Main Road. Prospective purchasesrs should satisfy themselves through their own enquiries of the relevant local authorities, as to the availability, suitablity and capacity of services to the site.

TERMS
The site is offered for sale by way of information tender. Detailed offers are invited for the freehold interest. Offers should be made in writing or by email by close of business on Monday 25th July 2022.

An informal tender form can be requested or found in the Data Room, but in brief should provide:

* Any conditions relating to your offer
* Proposed timescales
* Solicitors details
* Proof of funding

Please note that the seller will not be obligated to accept the highest or indeed any other offer.

VAT
We are advised that VAT will/will not be applicable to the sale price. The is subject to confirmation by the sellers solicitors.

PLANNING
Outline planning consent has been granted by South Kesteven District Council on (date) for the erection of up to 50 dwellings, application reference s20/0775. All documents relating to this planning consent can be accessed through the data room, please contact the agents for further information.

OTHER
S.106 AGREEMENT & AFFORDABLE HOUSING
The site is subject to a s.106 agreement and affordable housing content. Further details of this can be found in the data room.
Currently South Kesteven District Council has NOT adopted or implimented a Community Infrastructure Levy (CIL)

RANSOM STRIP & ACCESS POINTS
There is a retained ransom strip of 1 metre wide around the southern & western boundary of the land, the exact location of which can be seen coloured blue on the documents available in the data room.
Two access points will be retained by the current owners to the western and southern boundary (towards the A1) . The developer will be required to make the access up to the field boundary.

VIEWING
Strictly by appointment with the joint selling agents. Escritt Barrell Goldings (EBG) Geoffrey Bishop Telephone W. 01476 541106
M. 07712 771062

Property Ref: 58325_101505013843

Share:

Similar Properties

Rookery Farm, Joy's Bank, Holbeach St Johns, Spalding

Land | Offers in region of £2,500,000

HORTICULTURAL FACILITY - ACCOMMODATION: 2,971 sq m (31,983 sq.ft.)GLASSHOUSES: 17,098 sq m (184,041 sq.ft.)POLYTUNNELS:...

Pinchbeck

Land | Guide Price £1,900,000

** Site area 9.75 acres - Implemented Planning Consent for 63 Units - Within easy walking Distance of Pinchbeck Village...

Gaysfield Road, Fishtoft, Boston PE21 0SF

Residential Development | Guide Price £1,400,000

* Total Area Approximately 9.55 Acres (3.85 Hectares) * Market Housing Area 7.5 acres (3.03 Hectares) for 46 units * Aff...

Tholomas Drove, Wisbech St Mary, PE13 4SN

Land | £2,750,000

* Hiptoft Farm* 279.822 Acres (113.24 Hectares) Arable Land* Farm Buildings* Detached 4 Bedroom Bungalow* For Sale as a...

Arable Farm - Wisbech St Mary

4 Bedroom Not Specified | Guide Price £2,750,000

* Total Area of 279.822 Acres (113.24 Hectares)* Grade I Arable Land* Farm Buildings* Fully Refurbished 4 Bedroom Bungal...

Ulyatt's Farm, Amber Hill, Boston

Land | Guide Price £3,250,000

Approximately 103.74 hectares (256.34 acres) or thereabouts of Grade 2 arable land, farmyard with farm buildings (950T g...

Longstaff (Spalding)

5 New Road, Spalding, Lincolnshire, PE11 1BS

01775 766766

How much is your home worth?

Use our short form to request a valuation of your property.

Request a Valuation

Mortgage Calculator

Amount Borrowed: £
Total Amount Repayable: £
Total Monthly Payment: £
©2025 The Guild of Property Professionals. All rights reserved. Terms and Conditions | Privacy Policy | Cookie Policy | Complaints Policy | Members Login
The Guild of Property Professionals Trading Address: 121 Park Lane, London W1K 7AG. GPEA Limited. Registered in England & Wales.  Company No: 02819824.  Registered Office Address: 2 St. Stephen's Court, St. Stephen's Road, Bournemouth, Dorset, England, BH2 6LA.  VAT Registration No: 576 8795 61
Book a Property Valuation Update Cookies Preferences