Shute Hill, Malborough, Kingsbridge, Devon

Guide Price
£525,000

3 Bedroom Cottage for sale in Malborough

1 3 2
  • Grade II listed end of terrace character cottage
  • Shared drive to ample private parking
  • Beautiful 3/4 acre garden with orchard
  • Sitting/dining room with fireplace
  • Popular village close to sandy beaches
  • Close to all village amenities

Tucked away in a quiet and desirable position on the southern edge of Malborough village, Shute House is a charming end-of-terrace Grade II listed cottage, showcasing stunning original features and a beautiful orchard garden.

Malborough is renowned for its delightful collection of thatched cottages, and Shute House stands out as one of the most characterful. Offering generous living spaces, the cottage is beautifully presented throughout, retaining a wealth of period charm with exposed beamed ceilings and a striking feature fireplace.

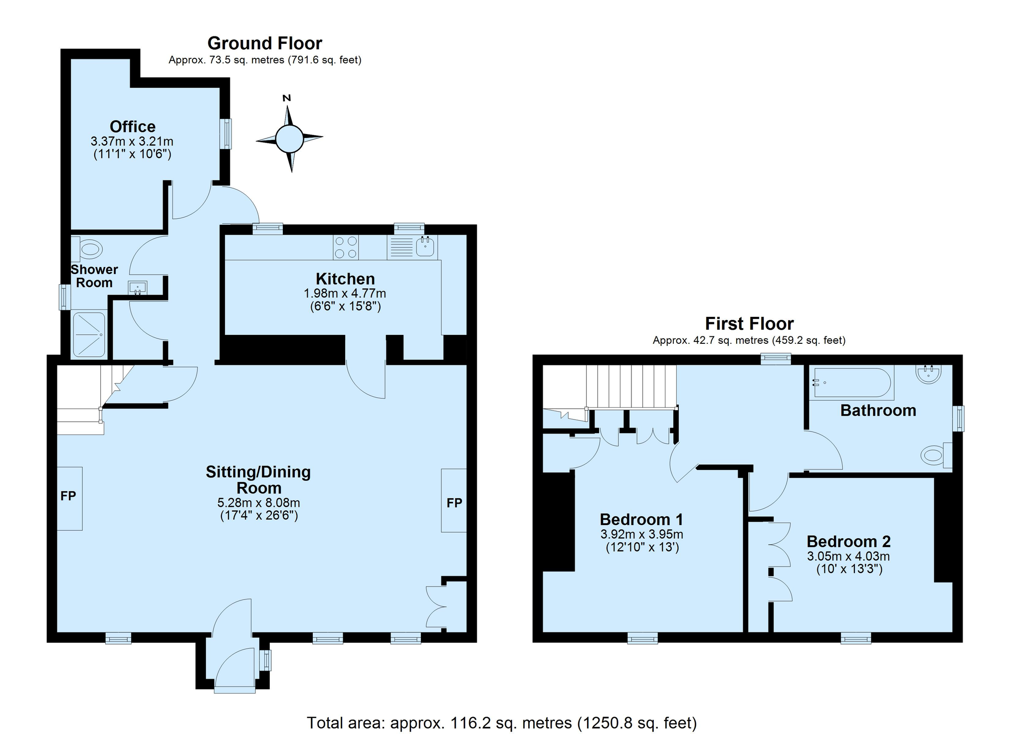
The accommodation comprises, on the ground floor, a large sitting and dining room brimming with character and warmth. Beyond this lies a bright and well-appointed kitchen. A further door from the sitting room leads to a convenient shower room and a flexible third bedroom, currently used as a home office.

Upstairs, a spacious landing leads to two bright double bedrooms and a shared family bathroom.

Outside, the property offers generous space for outdoor living. To the rear, a courtyard patio provides a perfect spot for dining or relaxation, while to the front, a beautiful 3/4 acre garden with orchard creates a tranquil setting to unwind and enjoy the peaceful surroundings. A shared driveway leads to private parking with ample space for vehicles.

Malborough is a popular village with the benefit of a small supermarket/filling station, two pubs, a church and a primary school. It lies just inland from the beautiful coast, spectacular cliffs, coves and beaches of southern-most Devon. Salcombe is situated close by with its picturesque estuary renowned for its sailing and sandy beaches. At the head of the estuary Kingsbridge town provides a comprehensive range of shops and other facilities.

Services
Mains services. Gas central heating.

Fixtures and Fittings
All items in the written text of these particulars are included in the sale. All others are expressly excluded regardless of inclusion in any photographs. Purchasers must satisfy themselves that any equipment included in the sale of the property is in satisfactory order.

Viewings
Very strictly by appointment only through Marchand Petit (Salcombe Office) Tel: 01548 844473

Important Information

  • This is a Freehold property.

Property Ref: 1357_JMQ836661

Share:

Similar Properties

Valleyside, West Buckland, Kingsbridge, Devon, TQ7

3 Bedroom Semi-Detached House | Guide Price £525,000

An exceptionally light and spacious semi-detached property with wonderful countryside views, established gardens, garage...

Mount View Terrace, Totnes

3 Bedroom Terraced House | Guide Price £525,000

Situated in a highly desirable location - a quiet, tucked away cul-de-sac terrace close to the heart of the town - this...

Somerset Place, Totnes, Devon

4 Bedroom Terraced House | £525,000

A beautifully presented 4 bedroom family home with low maintenance garden and garage situated in a convenient location w...

Clarence Hill Dartmouth

3 Bedroom Semi-Detached House | Guide Price £535,000

A well presented home in a very popular residential part of this lovely South Hams riverside town with pretty views of t...

The Soar, Malborough, Kingsbridge, Devon

Lodge | Guide Price £535,000

Fusing minimalist Scandinavian design with exceptional craftsmanship. Only 1 available at this price.

Start Bay Park, Strete, Dartmouth, Devon

5 Bedroom Bungalow | Guide Price £540,000

A spacious extended detached bungalow in the lovely South Hams coastal village of Strete with lovely views across countr...

Marchand Petit (Kingsbridge)

94 Fore Street, Kingsbridge, Devon, TQ7 1PP

01548 857 588

How much is your home worth?

Use our short form to request a valuation of your property.

Request a Valuation

Mortgage Calculator

Amount Borrowed: £
Total Amount Repayable: £
Total Monthly Payment: £
©2025 The Guild of Property Professionals. All rights reserved. Terms and Conditions | Privacy Policy | Cookie Policy | Complaints Policy | Members Login
The Guild of Property Professionals Trading Address: 121 Park Lane, London W1K 7AG. GPEA Limited. Registered in England & Wales.  Company No: 02819824.  Registered Office Address: 2 St. Stephen's Court, St. Stephen's Road, Bournemouth, Dorset, England, BH2 6LA.  VAT Registration No: 576 8795 61
Book a Property Valuation Update Cookies Preferences