Shute Hill, Malborough, Kingsbridge, Devon

Guide Price
£525,000
SSTC
This property listing is now SSTC

3 Bedroom Cottage for sale in Malborough

1 3 2
  • Grade II listed end of terrace character cottage
  • Shared drive to ample private parking
  • Beautiful 3/4 acre garden with orchard
  • Sitting/dining room with fireplace
  • Popular village close to sandy beaches
  • Close to all village amenities

Tucked away in a quiet and desirable position on the southern edge of Malborough village, Shute House is a charming end-of-terrace Grade II listed cottage, showcasing stunning original features and a beautiful orchard garden.

Malborough is renowned for its delightful collection of thatched cottages, and Shute House stands out as one of the most characterful. Offering generous living spaces, the cottage is beautifully presented throughout, retaining a wealth of period charm with exposed beamed ceilings and a striking feature fireplace.

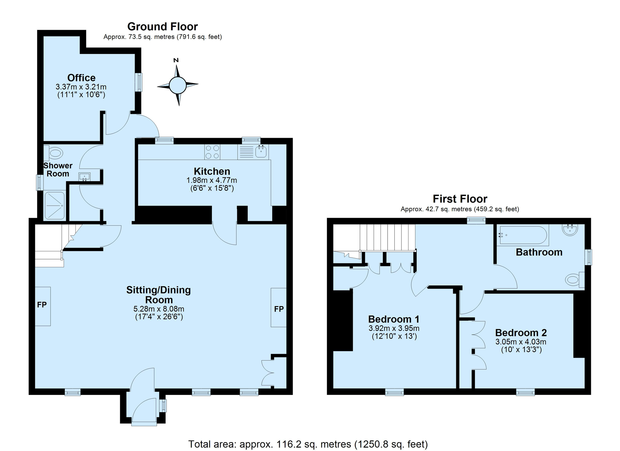
The accommodation comprises, on the ground floor, a large sitting and dining room brimming with character and warmth. Beyond this lies a bright and well-appointed kitchen. A further door from the sitting room leads to a convenient shower room and a flexible third bedroom, currently used as a home office.

Upstairs, a spacious landing leads to two bright double bedrooms and a shared family bathroom.

Outside, the property offers generous space for outdoor living. To the rear, a courtyard patio provides a perfect spot for dining or relaxation, while to the front, a beautiful 3/4 acre garden with orchard creates a tranquil setting to unwind and enjoy the peaceful surroundings. A shared driveway leads to private parking with ample space for vehicles.

Malborough is a popular village with the benefit of a small supermarket/filling station, two pubs, a church and a primary school. It lies just inland from the beautiful coast, spectacular cliffs, coves and beaches of southern-most Devon. Salcombe is situated close by with its picturesque estuary renowned for its sailing and sandy beaches. At the head of the estuary Kingsbridge town provides a comprehensive range of shops and other facilities.

Services
Mains services. Gas central heating.

Fixtures and Fittings
All items in the written text of these particulars are included in the sale. All others are expressly excluded regardless of inclusion in any photographs. Purchasers must satisfy themselves that any equipment included in the sale of the property is in satisfactory order.

Viewings
Very strictly by appointment only through Marchand Petit (Salcombe Office) Tel: 01548 844473

Important Information

  • This is a Freehold property.
  • This Council Tax band for this property is: E

Property Ref: JMQ836661

Share:

Similar Properties

Alston Rise, Malborough, Kingsbridge, Devon

4 Bedroom Detached House | Guide Price £525,000

STAMP DUTY PAID!!!!Finished to an exceptional standard, 3 Alston Rise is a stunning four-bedroom home set within the hea...

The Soar, Salcombe, Devon

Lodge | Guide Price £525,000

Fusing minimalist Scandinavian design with exceptional craftsmanship. Only 2 available at this price.

Salcombe Road, Malborough

4 Bedroom Not Specified | £499,950

A beautifully presented home in a central village location, offering stunning far-reaching countryside and water views,...

The Soar, Salcombe, Devon

Lodge | Guide Price £535,000

Fusing minimalist Scandinavian design with exceptional craftsmanship. Only 1 available at this price.

Devon Road, Salcombe

3 Bedroom Flat | Guide Price £550,000

A spacious 3 bedroom top floor apartment boasting stunning views of the estuary, town, and surrounding countryside, and...

The Soar, Salcombe, Kingsbridge, Devon

2 Bedroom Lodge | From £550,000

Fusing minimalist Scandinavian design with exceptional craftsmanship, The Thurlestone features 2 bedrooms, 2 bathrooms,...

Marchand Petit (Salcombe)

24 Fore Street, Salcombe, Devon, TQ8 8ET

01548 844 473

How much is your home worth?

Use our short form to request a valuation of your property.

Request a Valuation

Mortgage Calculator

Amount Borrowed: £
Total Amount Repayable: £
Total Monthly Payment: £
©2026 The Guild of Property Professionals. All rights reserved. Terms and Conditions | Privacy Policy | Cookie Policy | Complaints Policy | Members Login
The Guild of Property Professionals Trading Address: 121 Park Lane, London W1K 7AG. GPEA Limited. Registered in England & Wales.  Company No: 02819824.  Registered Office Address: 2 St. Stephen's Court, St. Stephen's Road, Bournemouth, Dorset, England, BH2 6LA.  VAT Registration No: 576 8795 61
Book a Property Valuation Update Cookies Preferences