Sawyers Hill, Minety

£695,000
SSTC
This property listing is now SSTC

4 Bedroom Detached House for sale in Malmesbury

3 4 2
  • Village location close to amenities
  • Landscaped garden
  • Gated private parking and garage
  • 2 bathrooms
  • Underfloor heating and air source heat pump
  • 2 further reception rooms
  • Large open plan kitchen/dining/family room and orangery
  • 4 bedrooms
  • Individual detached house

Description



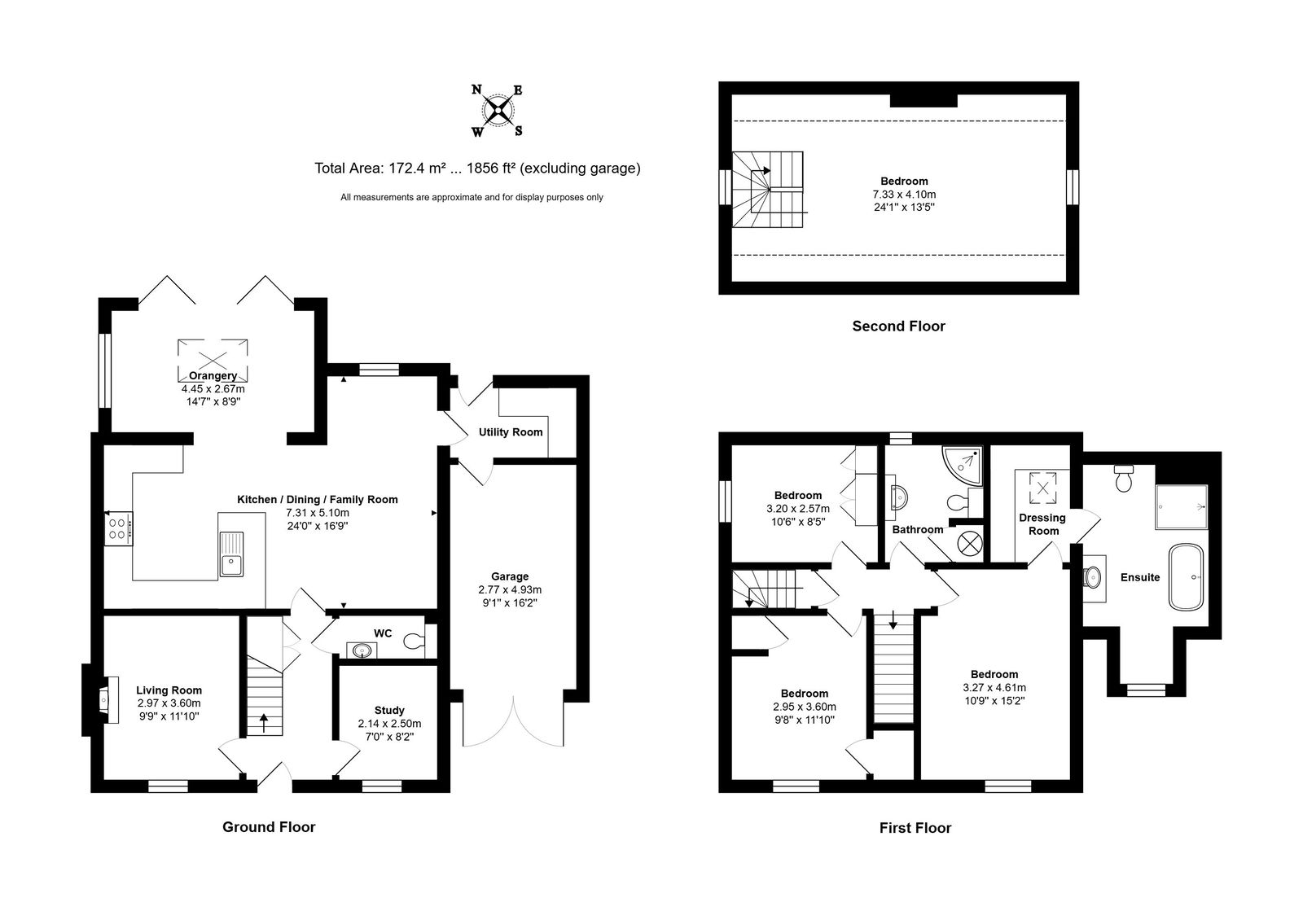
Holly Cottage is an individually designed and built detached home situated in the centre of the village of Minety close to the village shop and primary school. The property is immaculately presented and has been upgraded throughout by the current owners with new double glazed windows and an excellent orangery extension to the rear. The family-sized accommodation extends to around 1,856 sq.ft over three floors.


The double fronted layout includes a central entrance hall with large built-in storage and a WC off, a cosy front sitting room with wood-burning stove, and separate study across the hallway. The heart of the home centres around the superb open plan kitchen/dining/family room enhanced by the light-filled addition of the orangery with bi-fold doors and a lantern skylight above. The kitchen has been fitted with a Parlour Farm kitchen equipped with a fridge, freezer and dishwasher. There is a utility room to the side connecting to the integral garage. The ground floor has underfloor heating throughout allowing for freedom of furniture placement, excluding the orangery which has electric radiators. On the first floor there are three bedrooms and a family shower room. The principal bedroom suite is a wonderful feature with a dressing room and large en-suite with separate shower and free-standing bath. The second floor offers a further large double bedroom.


Externally, the property sits behind mature evergreen hedging and a five-bar gate opening to a front driveway and the garage. The garden has been professionally landscaped with sun terraces and vibrant flower and shrub borders. There is a large storage shed to the side.



Situation


Minety is a lively village with a strong sense of community which is echoed in the community run shop whilst the village also boasts a pre-school and excellent C of E primary school. The village has a wide variety of clubs and activities, a village hall, a church at Upper Minety, well respected local rugby club and tennis club. The neighbouring village of Ashton Keynes (about 1.5 miles) also has an excellent range of local amenities. Minety is located on the edge of the renown Cotswold Water Park where there is an array of leisure facilities, walking routes and sporting activities available. The charming market town of Malmesbury is less than a 10 minute drive away boasting a comprehensive range of amenities including the very sought after Malmesbury Secondary School. The Capital of the Cotswolds market town of Cirencester (8 miles) has a further range of shops and leisure facilities whilst the road network provides good access to Swindon and to the M4 and M5 motorways. There is a mainline rail service from Kemble (5 miles) to Bristol and London reaching Paddington in about 75 minutes.

Additional Information


The property is Freehold with air source heat pump central heating, mains drainage, water and electricity. Ultrafast broadband is available and there are some limitations to mobile phone coverage. Information taken from the Ofcom mobile and broadband checker, please see the website for more information. Wiltshire Council Tax Band E. 

Important Information

  • This is a Freehold property.
  • This Council Tax band for this property is: E

Property Ref: 2775_1068059

Share:

Similar Properties

Waterside, Castle Combe

4 Bedroom Cottage | £695,000

A magnificent Grade II listed double-fronted period cottage commanding Castle Combe's most iconic setting overlooking th...

High Street, Hawkesbury Upton

3 Bedroom Link Detached House | £695,000

A characterful former farmhouse located in the very heart of the village close to many amenities, with off-street parkin...

Quarry House, Corston

3 Bedroom Semi-Detached House | £665,000

A semi-detached 18th Century period home tucked away within private gardens boasting well-proportioned, light and airy a...

Stonehill, near Charlton

3 Bedroom Detached House | £700,000

Set within a fantastic mature plot of 0.68 acres, this detached period cottage has been greatly improved, with planning...

Pinkney, Near Sherston

4 Bedroom Semi-Detached House | £725,000

Thoughtfully upgraded and extended, a beautifully presented Victorian semi-detached home. 4 bedrooms, 3 reception rooms,...

Cliff Road, Sherston

5 Bedroom Cottage | £725,000

CHAIN FREE! A spacious 3 bedroom period house with a superb 2 bedroom self-contained cottage, situated in this sought-af...

James Pyle & Co (Sherston)

Swan Barton, Sherston, Wiltshire, SN16 0LJ

01666 840886

How much is your home worth?

Use our short form to request a valuation of your property.

Request a Valuation

Mortgage Calculator

Amount Borrowed: £
Total Amount Repayable: £
Total Monthly Payment: £
©2026 The Guild of Property Professionals. All rights reserved. Terms and Conditions | Privacy Policy | Cookie Policy | Complaints Policy | Members Login
The Guild of Property Professionals Trading Address: 121 Park Lane, London W1K 7AG. GPEA Limited. Registered in England & Wales.  Company No: 02819824.  Registered Office Address: 2 St. Stephen's Court, St. Stephen's Road, Bournemouth, Dorset, England, BH2 6LA.  VAT Registration No: 576 8795 61
Book a Property Valuation Update Cookies Preferences