Oxford Street, Malmesbury

£475,000

3 Bedroom Town House for sale in Malmesbury

1 3 1
  • Prominent Grade II Listed Georgian townhouse
  • Historically the former manse to the adjoining church
  • Superb rooms proportions with high ceilings
  • Beautifully presented
  • 3 double bedrooms
  • Luxurious bathroom with roll-top bath and shower
  • Dual-aspect living room with wood-burner
  • Bespoke kitchen with granite worktops and flagstone flooring
  • Sunny low maintenance courtyard garden
  • Centre of town position close to all amenities

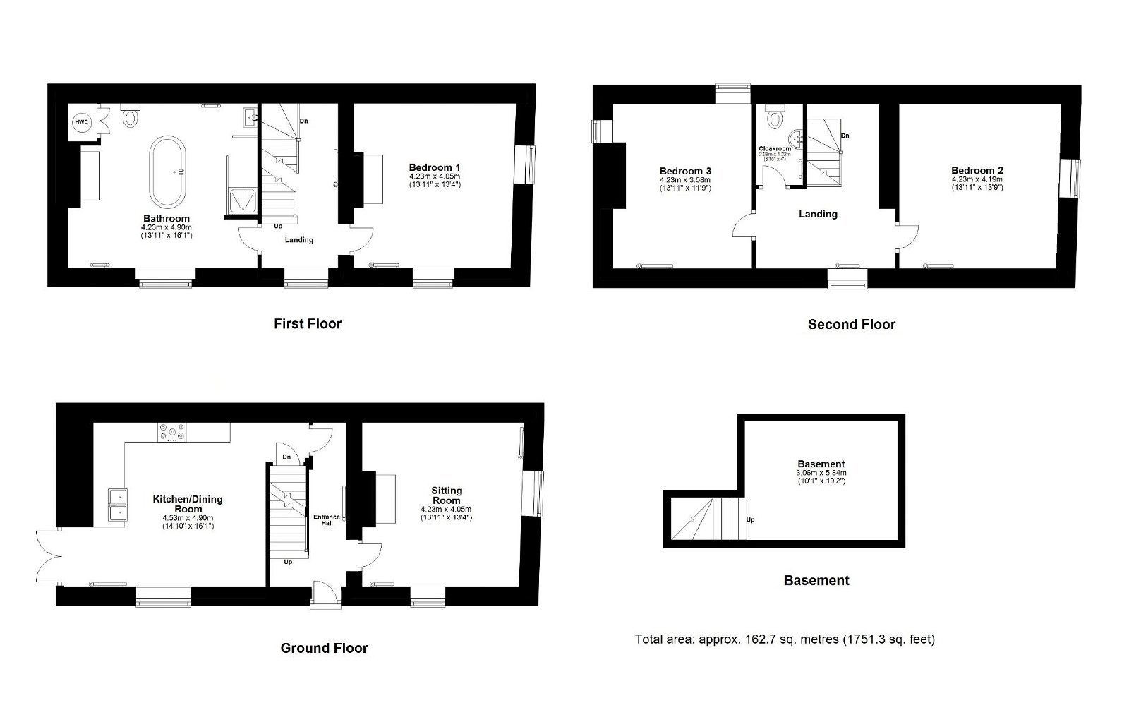
This impressive Georgian house commands an excellent position in the very heart of Malmesbury town centre, just a stone throw away from an array of shops and eateries. Steeped in history dating back to 1770, this magnificent Grade II listed building was formerly the Manse to the adjoining Moravian church, a designated British heritage site. Furthermore, the property sits just opposite the statue of the Meditating Monk by sculptor William Lazard created in honour of Malmesbury's history and the towns 12th century Benedictine abbey. The striking exterior is extremely eye-catching with a symmetrical front elevation and spear-headed iron railings to the side. The elegance of Georgian design is prominent throughout the property featuring superbly proportioned rooms enhanced by high ceilings and tall sash windows, complete with window shutters, panel doors and cast iron radiators. In modern years, the property has been lovingly restored and updated sympathetic to its Georgian heritage. The sizable accommodation extends in all to some 1,750 sq.ft. arranged over three principal floors with a cellar in addition below. The entrance hall has a staircase rising up and decorative tiled flooring below. The dual-aspect living room features herringbone flooring and a wood-burning stove set within the fireplace. Traditional flagstone flooring spans the kitchen/dining room. The kitchen has been fitted with bespoke timber units beneath a granite worksurface incorporating a double Belfast sink. On the first floor, the dual-aspect principal bedroom sits across the landing from the main bathroom and both feature charming iron fireplaces. The luxuriously spacious bathroom features a claw-foot roll-top bath at the centre beside a large walk-in shower. On the top floor there are two further double bedrooms with exposed beamed ceilings and solid wood flooring accompanied by a WC. Double French doors from the kitchen lead out to the courtyard garden arranged at the side enjoying both a south and west aspect. The garden enjoys a good degree of privacy bound by high stone walls and is laid over two patio levels ideal for low maintenance. A rear gate provides convenient access for maintenance and bins. Parking is readily available in the nearby streets and public carparks.

SITUATION Malmesbury is an ancient hilltop town situated on the southern edge of The Cotswolds. Traditionally a market town serving the rural area of North West Wiltshire, the town is reputed to be the oldest borough in England created by Charter in 880 AD by Alfred the Great. Today, the High Street has numerous independent shops, pubs and restaurants including a new Aldi, Waitrose store and a regular weekly Farmer's market whilst the town has excellent choice of both primary and secondary schools and good recreational and leisure facilities. The M4 motorway (J17) to the south provides fast road access to the major employment centres of Bristol and Swindon together with London and the West Country. Main line rail services are available from Chippenham and Kemble (Paddington in about 75 minutes).

TENURE & SERVICES We understand the property is Freehold with mains gas central heating, mains drainage, water and electricity. The property is Listed and EPC exempt. Council Tax Band D.

Important Information

  • This is a Freehold property.
  • This Council Tax band for this property is: D

Property Ref: 461743

Share:

Similar Properties

Shorncote, near Cirencester

3 Bedroom End of Terrace House | £450,000

Set within a rural hamlet just a few miles outside of Cirencester, this extended cottage enjoys panoramic countryside vi...

West Street, Tetbury

2 Bedroom Cottage | £450,000

This charming Cotswold stone period cottage is set within a fantastic position close to the Tetbury's town centre and ma...

The Chipping, Tetbury

3 Bedroom Terraced House | £450,000

This characterful Grade II listed cottage is positioned on Tetbury's picturesque cobbled Chipping steps overlooking the...

The Green, Tetbury

3 Bedroom End of Terrace House | £485,000

Situated in one of Tetbury's finest locations within a moments walking distance to the very heart of the town, a Grade I...

Pike Cottages, Tetbury

2 Bedroom Detached House | £499,995

Located 1 mile from the town centre, this detached former tollhouse offers well-proportioned 2 bedroom accommodation wit...

The Street, Hullavington

3 Bedroom Detached House | £500,000

Situated in the heart of this village community close to its amenities, a charming DETACHED period cottage which has bee...

James Pyle & Co (Sherston)

Swan Barton, Sherston, Wiltshire, SN16 0LJ

01666 840886

How much is your home worth?

Use our short form to request a valuation of your property.

Request a Valuation

Mortgage Calculator

Amount Borrowed: £
Total Amount Repayable: £
Total Monthly Payment: £
©2026 The Guild of Property Professionals. All rights reserved. Terms and Conditions | Privacy Policy | Cookie Policy | Complaints Policy | Members Login
The Guild of Property Professionals Trading Address: 121 Park Lane, London W1K 7AG. GPEA Limited. Registered in England & Wales.  Company No: 02819824.  Registered Office Address: 2 St. Stephen's Court, St. Stephen's Road, Bournemouth, Dorset, England, BH2 6LA.  VAT Registration No: 576 8795 61
Book a Property Valuation Update Cookies Preferences