7, Broughton Rise, Malton, YO17 7BW

Offers Over
£895,000

5 Bedroom Semi-Detached House for sale in Malton

3 5 3
  • Beautifully restored Victorian villa with four floors of living space
  • Five double bedrooms, including one en-suite and one with freestanding bath
  • Elegant sitting room and separate family/dining room with period features
  • Bespoke Shaker kitchen with island, Silestone worktops & integrated appliances
  • Gym and ground floor shower room for flexible modern living
  • Original features throughout: cast iron fireplaces, cornicing & tiled hallway
  • Landscaped rear garden with gazebo, porcelain tiling & decked terrace
  • Gravel driveway and garage providing ample off-street parking

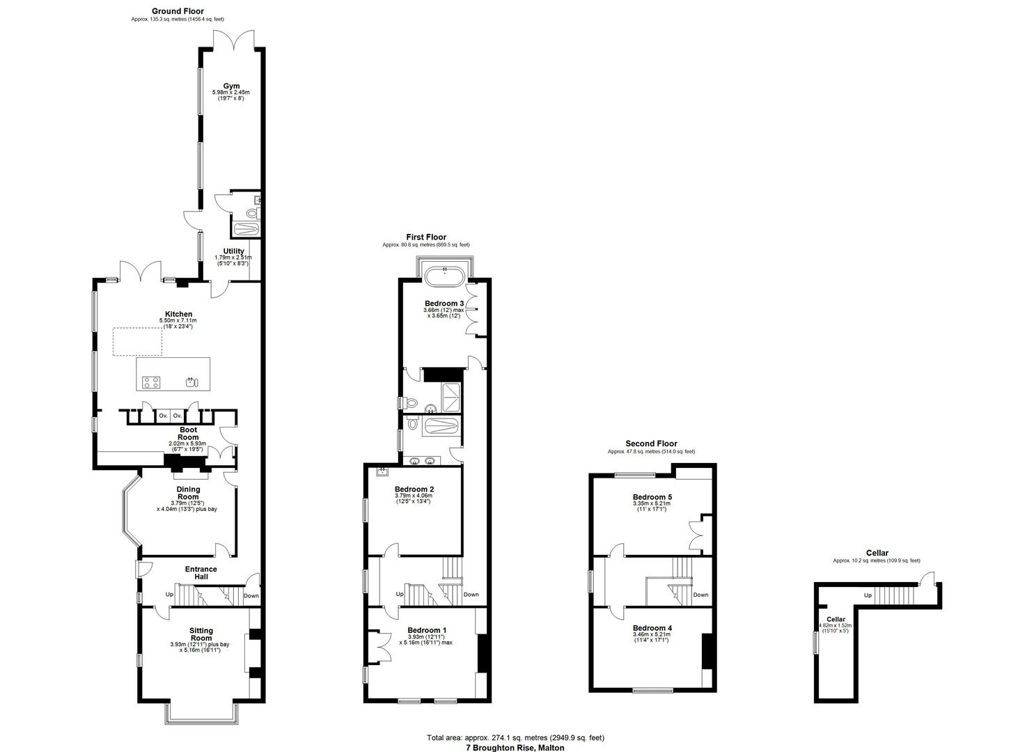
A beautifully extended and sympathetically refurbished five-bedroom Victorian villa set over four storeys, located within walking distance of Malton town centre, the railway station, and a range of independent shops, caf�s, and amenities. This elegant period home combines original architectural features with carefully considered contemporary upgrades to create a spacious and stylish home suited to modern family life.

On the ground floor, a bright dual-aspect sitting room with bay window features a cast iron fireplace, ornate cornicing, and ceiling mouldings. The second reception room, currently used as a living space, includes another bay window, stripped wooden floors, cast iron fireplace, and matching period detail.

A light and spacious twin-entry boot room with fitted shaker-style units offers generous family storage.

The bespoke shaker kitchen forms the heart of the home, with wood flooring, a large handmade island (with sink and dishwasher), Silestone worktops, two integrated ovens, an induction hob with recirculating extractor, and feature lighting. Full-height cabinetry incorporates a fridge/freezer and further storage. Aluminium glazing floods the dining area with light and opens onto the rear garden.

A large ground floor gym, utility, and shower room add further versatility with garden access.

The first floor offers three double bedrooms, including a principal suite with en-suite shower room, marble sink, and freestanding roll-top bath in the bay window. A stylish family bathroom features twin marble sinks, marble floor, and a walk-in shower.

The second floor has two additional well-proportioned double bedrooms.

Outside, the garden features a Bert & May tiled terrace, decking, dining area, and twin-tiered lawn with apple and olive trees. A gravel driveway provides ample parking. A large cellar offers further storage.

A rare opportunity to acquire a landmark Victorian home in one of North Yorkshire's most desirable market towns.

Location - Malton is a charming market town in North Yorkshire, often referred to as "Yorkshire's Food Capital" due to its thriving food scene, independent eateries, and regular food markets. Nestled on the edge of the Howardian Hills, an Area of Outstanding Natural Beauty, Malton offers a blend of historic character, countryside charm, and modern convenience.

The town boasts excellent transport links, with a train station providing easy access to York, Leeds, and beyond, as well as proximity to the A64 for road travel. Residents enjoy a welcoming community, a variety of boutique shops, and access to scenic walking trails along the River Derwent. With a mix of period properties, modern developments, and countryside retreats, Malton is an ideal location for those seeking a blend of rural tranquility and vibrant local culture.

Entrance Hall -

Sitting Room - 3.93 x 5.16 (12'10" x 16'11") -

Dining Room - 3.79 x 4.04 (12'5" x 13'3") -

Boot Room - 2.02 x 5.93 (6'7" x 19'5") -

Kitchen - 5.5 x 7.11 (18'0" x 23'3") -

Utility - 1.79 x 2.51 (5'10" x 8'2") -

Ground Floor Shower Room -

Gym -

Bedroom One - 3.93 x 5.16 (12'10" x 16'11") -

First Floor Landing -

Bedroom Two - 3.79 x 4.06 (12'5" x 13'3") -

Family Bathroom -

Bedroom Three - 3.66 x 3.65 (12'0" x 11'11") -

En-Suite -

Bedroom Four - 3.46 x 5.21 (11'4" x 17'1") -

Second Floor Landing -

Bedroom Five - 3.35 x 5.21 (10'11" x 17'1") -

Cellar - 4.82 x 1.52 (15'9" x 4'11") -

Epc Rating D -

Council Tax Band E -

Property Ref: 324579_33997965

Share:

Similar Properties

3 Orchard Gardens, Malton, North Yorkshire, YO17 7NA

4 Bedroom Detached House | Offers Over £895,000

An impressive five bedroom home with a double garage situated in one of Malton's most sought after locations.Tucked away...

2 Orchard Gardens, Malton, YO17 7NA

4 Bedroom Detached House | Guide Price £895,000

Spacious four-bed detached home on three floors in a quiet Malton development. Features open-plan living, sun room, doub...

7, Broughton Rise, Malton, YO17 7BW

5 Bedroom Semi-Detached House | Offers Over £895,000

A beautifully extended and sympathetically refurbished five-bedroom Victorian villa set over four storeys, located withi...

Middlecave Lodge, 73 Middlecave Road, Malton, YO17 7NQ

7 Bedroom Semi-Detached House | Guide Price £975,000

Victorian Elegance in Malton’s Finest Location offered with no onward chainA substantial 7-bedroom period home with land...

Middlecave Lodge, 73 Middlecave Road, Malton, YO17 7NQ

7 Bedroom Semi-Detached House | Guide Price £975,000

Victorian Elegance in Malton's Finest Location offered with no onward chainA substantial 7-bedroom period home with land...

61A Middlecave Road, Malton, YO17 7NQ

6 Bedroom Detached House | Offers in excess of £975,000

Contemporary 6-bed family home on prestigious Middlecave Road, Malton. High-spec, energy-efficient, open-plan living, la...

Willowgreen Estate Agents (Malton)

Malton, North Yorkshire, YO17 7LY

01653 916600

How much is your home worth?

Use our short form to request a valuation of your property.

Request a Valuation

Mortgage Calculator

Amount Borrowed: £
Total Amount Repayable: £
Total Monthly Payment: £
©2026 The Guild of Property Professionals. All rights reserved. Terms and Conditions | Privacy Policy | Cookie Policy | Complaints Policy | Members Login
The Guild of Property Professionals Trading Address: 121 Park Lane, London W1K 7AG. GPEA Limited. Registered in England & Wales.  Company No: 02819824.  Registered Office Address: 2 St. Stephen's Court, St. Stephen's Road, Bournemouth, Dorset, England, BH2 6LA.  VAT Registration No: 576 8795 61
Book a Property Valuation Update Cookies Preferences