7 Upper Chase Road, Barnards Green, Malvern, Worcestershire, WR14 2BT

Guide Price
£320,000

3 Bedroom Plot for sale in Malvern

1 3 2

Location
Barnards Green is an established and busy retail area located to the east of Great Malvern town centre. The 
Malvern urban area has a population of approximately 40,000, with a thriving business community and two mainline 
railway stations running services on the Hereford to Paddington and Hereford to Birmingham railway lines. There 
is good access to the road network with the M5 and M50 motorway easily accessible.
Property Description
In 1868 William Reynolds opened his carriagewright, blacksmith and farrier business within the buildings known as The Forge, Upper Chase Road, Barnards Green. In 1920 the business passed into the control of the Morgan family where it has remained every since.
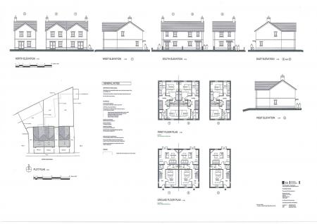
Currently the site comprises approximately 0.2 acres with workshop premises that have been partly demolished and is offered with full planning consent for three three bedroom properties, one detached and two semi detached houses. All comprising Kitchen dining room, sitting room opening onto enclosed rear gardens and downstairs WC, with three upstairs bedrooms and family bathroom with ensuite to the principal bedrooms. Separate driveways are granted for each property.
 
Planning Application Number: M/25/00485/FUL
Services
It is understood that mains water, electricity and drainage are available. However, it is advised that interested parties should make their own enquiries with the relevant authorities for suitability for connection to the site.
Tenure
The property is Freehold and offered with the benefit of vacant possession on completion.
Viewing
By appointment to be made through the Agent's Malvern Office, Tel: 01684 892809
Directions
From the John Goodwin Malvern office proceed south along the A449 taking the first left hand turn down hill into Church Street. Proceed over the traffic lights and continue to the roundabout in Barnards Green. Take the second exit into Upper Chase Road and the site will then be located on the left hand side.
General
Intending purchasers will be required to produce identification documentation and proof of funding in order to comply 
with The Money Laundering, Terrorist Financing and Transfer of Funds Regulations 2017. More information can be 
made available upon request. 
John Goodwin FRICS has made every effort to ensure that measurements and particulars are accurate however 
prospective purchasers/tenants must satisfy themselves by inspection or otherwise as to the accuracy of the 
information provided. No information with regard to planning use, structural integrity, tenure, availability/operation, 
business rates, services or appliances has been formally verified and therefore prospective purchasers/tenants are 
requested to seek validation of all such matters prior to submitting a formal or informal intention to purchase/lease 
the property or enter into any contract.

Property Ref: 969439

Share:

Similar Properties

Birch Close, Ledbury, Herefordshire, HR8

3 Bedroom Semi-Detached Bungalow | Guide Price £320,000

A Conveniently Located Three Bedroom Semi-Detached Bungalow Within Walking Distance Of Ledbury. Benefitting From A Thoug...

Drinkwater Close, Ledbury, Herefordshire, HR8

3 Bedroom Semi-Detached House | Guide Price £320,000

A Well Appointed And Conveniently Situated Three Bedroom House Benefitting From Gas Central Heating And Double Glazing T...

Haggard Place, Ledbury, Herefordshire, HR8

3 Bedroom Semi-Detached House | Guide Price £315,000

An Immaculate And Well Appointed Modern Three Bedroom Semi Detached House On A Popular Residential Estate Benefitting Fr...

Woodend, Ledbury, Herefordshire, HR8

3 Bedroom Detached House | Guide Price £325,000

An Attractive Detached Three-Bedroom Cottage Offering Excellent Potential And Requiring Full Refurbishment, Conveniently...

Little Marcle

2 Bedroom Barn Conversion | £335,000

Enjoying A Rural Location Amidst Glorious Herefordshire Countryside A Charming Detached Two Bedroomed Single Storey Grad...

Wheatsheaf Close, Fromes Hill, Ledbury, Herefordshire, HR8

3 Bedroom Detached House | £345,000

A Superb New Build In Fromes Hill, The Ash Is A High-Specification Detached Family Home At The Sought-After Wheatsheaf C...

John Goodwin (Ledbury)

Ledbury, Herefordshire, HR8 2DX

01531 634648

How much is your home worth?

Use our short form to request a valuation of your property.

Request a Valuation

Mortgage Calculator

Amount Borrowed: £
Total Amount Repayable: £
Total Monthly Payment: £
©2026 The Guild of Property Professionals. All rights reserved. Terms and Conditions | Privacy Policy | Cookie Policy | Complaints Policy | Members Login
The Guild of Property Professionals Trading Address: 121 Park Lane, London W1K 7AG. GPEA Limited. Registered in England & Wales.  Company No: 02819824.  Registered Office Address: 2 St. Stephen's Court, St. Stephen's Road, Bournemouth, Dorset, England, BH2 6LA.  VAT Registration No: 576 8795 61
Book a Property Valuation Update Cookies Preferences