Bronsil Drive, Malvern, Worcestershire, WR14

Guide Price
£380,000

4 Bedroom Detached House for sale in Malvern

2 4 2
  • Set In A Quiet Cul-De-Sac Location
  • Detached Property In Need Of Refurbishment
  • Four Bedrooms, One With En-Suite And A Family Bathroom
  • Two Reception Rooms
  • Generous Rear Garden Overlooking Open Farmland
  • Gas Central Heating, Double Glazing
  • Off Road Parking, Garage
  • No Chain.

A Splendidly Positioned Detached Property With A Generous Rear Garden Overlooking Open Farmland In A Quiet Cul-de-Sac Location With The Living Accommodation In Need Of Some Cosmetic Refurbishment And Updating.  EPC Rating C.  No Chain. 

Location & Description  
Located in a quiet and much sought after location close to local amenities including a small Co-Op supermarket, convenience store and Malvern Link Train Station. The more comprehensive facilities of Malvern Link are less than a mile away where there is a wider range of shops, banks, takeaways, two service stations and doctor and dental surgeries. On the outskirts of Malvern Link is the retail park with Marks and Spencer, Morrisons and many other well known stores.

The cultural and historic spa town of Great Malvern also has a range of shops, banks, post office, restaurants and a Waitrose supermarket. Malvern, as well as being famous for its range of hills, is also renowned for its theatre complex with cinema and having recreational facilities including the Splash leisure centre and Manor Park Sports club.

Transport communications are excellent with main line railway stations at Malvern Link and Great Malvern having connections to Worcester, Birmingham, London Paddington, Hereford and South Wales. Junction 7 of the M5 motorway at Worcester is about 7 miles away bringing the Midlands and most parts of the country within a convenient commuting time. The property is also situated providing good access to the Hereford and Worcester road.

Educational needs are particularly well catered for as the property is well served being walking distance to highly regarded schools at both primary and secondary levels.
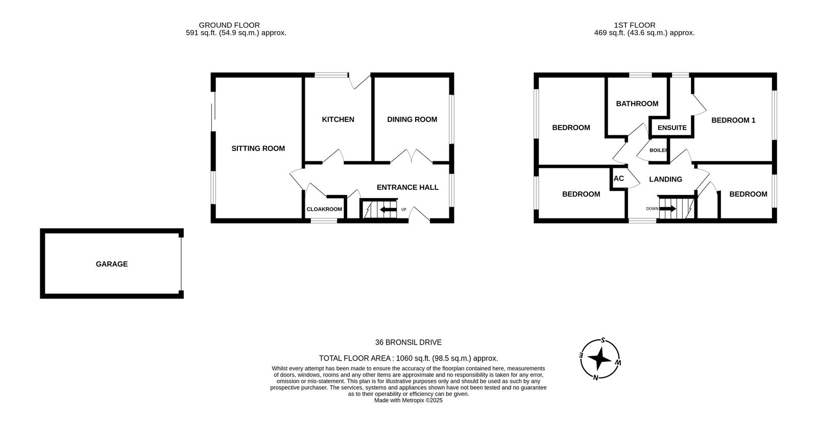
36 Bronsil Drive is a detached property situated in a quiet cul-de-sac location in this popular and much sought after area.  The property is set back from the road behind a lawned foregarden with planted shrubs.  To the left hand side of this the driveway continues down to the single brick built garage which is in a detached building shared with the neighbouring property under a pitched tiled roof.  From the driveway the obscured double glazed UPVC door is set under a pitched tiled roof storm porch with wooden supports and opens to the living accommodation which benefits from gas central and double glazing.  Internally the rooms are over two floors and in need of some cosmetic refurbishment and updating which has been factored into the asking price of the property.  

No doubt one of the key selling points of this property, as well as its excellent position, is the generous rear garden which overlooks open farmland to the rear.  

The living accommodation in more detail comprises

Entrance Hall  
A welcoming space with double glazed window to front aspect and an open wooden balustraded staircase rising to first floor with useful understairs storage cupboard.  Ceiling light point, wall mounted thermostat control point and radiator.  Doors opening to the sitting room, kitchen and dining room.  Further door and continued tile flooring opens to 

Guest Cloakroom  
Fitted with a white low level WC and wall mounted wash hand basin with tiled splashbacks, radiator, ceiling light point, obscured double glazed window to side.  

Dining Room  2.84m (9ft 2in) x 3.18m (10ft 3in) 
Conveniently situated adjacent to the kitchen with serving hatch but subject to the relevant permissions being sought could be opened up to create a large dining kitchen, accessed from the entrance hall via glazed double wooden doors.  Double glazed window to front, ceiling light point, radiator.  

Sitting Room  3.23m (10ft 5in) x 5.24m (16ft 11in) 
Positioned across the rear of the property and having double glazed windows and double glazed patio doors opening and overlooking the generous rear garden to the farmland views beyond.  Two ceiling light points, two radiators and wood effect laminate flooring.  

Kitchen  2.87m (9ft 3in) x 3.15m (10ft 2in) 
Fitted with a range of drawer and cupboard base units with worktop over and wall unit.  The stainless steel sink unit is set under a double glazed window to side with an obscured double glazed UPVC pedestrian door.  Serving hatch to dining room, ceiling light point, space and connection point for electric or gas cooker, washing machine and undercounter space for kitchen white goods.  

First Floor Landing 

First Floor Landing 
Double glazed window to side, loft access point with pulldown ladder and being part boarded, ceiling light point.  Useful storage cupboard with shelving and airing cupboard housing the wall mounted boiler which was refitted in 2025.  Doors open through to

Bedroom 1 3.02m (9ft 9in) x 3.23m (10ft 5in) 
Being a double bedroom with double glazed window to front giving views up to the Malvern Hills.  Ceiling light point, coving to ceiling, door opening through to

En-Suite  
Fitted with a pedestal wash hand basin with mixer tap, shower enclosure with thermostatic controlled shower over, tiled floors, obscured double glazed window, radiator, ceiling light point.  

Bedroom 2 2.51m (8ft 1in) x 3.25m (10ft 6in) 
Positioned to the rear of the property and enjoying views across the open farmland through the double glazed window.  Ceiling light point, radiator, wood effect laminate flooring.  

Bedroom 3 3.18m (10ft 3in) x 1.89m (6ft 1in) 
Double glazed window to rear.  Ceiling light point, radiator.  

Bedroom 4 2.79m (9ft) x 1.89m (6ft 1in) 
Double glazed window to front with views up to the Malvern Hills.  Ceiling light point, radiator and useful over stairs storage cupboard with hanging rail and shelf.  

Bathroom  
Fitted with a white low level WC and pedestal wash hand basin, panelled bath with mixer tap and shower head fitment, obscured double glazed window to side, ceiling light point, radiator, tiled splashbacks.  Ceiling mounted extractor fan.  

Outside 
One of the key selling points of this property is the generous garden which is accessed via the double glazed patio doors from the sitting room initially leading to the paved patio area extending away from the property.  The patio gives way to a lawn with an initial shrub bed to the right hand side.  There is a specimen apple tree and the garden is enclosed by a fenced and hedged perimeter and there is gated pedestrian to side.  Views are on offer from the patio across the open farmland to the rear of the property and it further benefits from a SHED.  

Garage  5.27m (17ft) x 2.61m (8ft 5in) 
Accessed via the tandem driveway allowing parking for vehicles having up and over door to front, light and power.  

Services 
We have been advised that mains services are connected to the property. This information has not been checked with the respective service providers and interested parties may wish to make their own enquiries with the relevant local authority. No statement relating to services or appliances should be taken to imply that such items are in satisfactory working order and intending occupiers are advised to satisfy themselves where necessary.
 
Tenure 
We are advised (subject to legal confirmation) that the property is freehold.

 General 
Intending purchasers will be required to produce identification documentation and proof of funding in order to comply with The Money Laundering, Terrorist Financing and Transfer of Funds Regulations 2017. More information can be made available upon request. 

John Goodwin FRICS has made every effort to ensure that measurements and particulars are accurate however prospective purchasers/tenants must satisfy themselves by inspection or otherwise as to the accuracy of the information provided. No information with regard to planning use, structural integrity, tenure, availability/operation, business rates, services or appliances has been formally verified and therefore prospective purchasers/tenants are requested to seek validation of all such matters prior to submitting a formal or informal intention to purchase/lease the property or enter into any contract.

Viewing
By appointment to be made through the Agent's Malvern Office, Tel: 01684 892809

Council Tax
COUNCIL TAX BAND ''D''
This information may have been obtained from the local council website only and applicants are advised to consider obtaining written confirmation.

EPC
The EPC rating for this property is C (71).

Directions
From the agents office in Great Malvern proceed north along the A449 Worcester Road for less than quarter of a mile to a set of traffic lights at Link Top. Turn left at these lights into Newtown Road following it sharply to the right towards Leigh Sinton. Continue along this route into Leigh Sinton Road for approximately half a mile and through a set of traffic lights before turning right into Tanhouse Lane. Follow this road around a right hand bend, turn left into Bronsil Drive follow the road round to the left hand side, continuing to the head of the cul-de-sac where the house can be found on the right hand side as indicated by the agents For Sale board. 

Important Information

  • This is a Freehold property.
  • This Council Tax band for this property is: D

Property Ref: 1284316

Share:

Similar Properties

Kiln Lane, Leigh Sinton, Malvern, Worcestershire, WR13

3 Bedroom Detached House | Offers Over £380,000

An Exceptionally Well Presented And Maintained Three/Four Bedroom Detached Property Situated Within A Cul-de-Sac Locatio...

Madresfield Road, Malvern, WR14

3 Bedroom Detached House | Guide Price £375,000

An Extended Three Bedroomed Detached Bungalow (Approx. 1214 sq.ft) Occupying A Generous Plot With Two Gated Driveways. L...

Old Hollow, Malvern, Worcestershire, WR14

3 Bedroom Cottage | Guide Price £375,000

A Wonderfully Situated Three Bedroomed Cottage In An Elevated Setting Affording Fine And Far Reaching View. Beautiful La...

Mayflower Close, Malvern, Worcestershire, WR14

2 Bedroom Bungalow | Guide Price £385,000

A Most Attractive Extended And Spacious Two Bedroom Detached Bungalow Occupying An Elevated Position Close To The Amenit...

Lower Road, Malvern, Worcestershire, WR14

3 Bedroom Bungalow | Guide Price £385,000

A Three Bedroom Detached Bungalow Which Has Been Completely Refurbished And Thoughtfully Redesigned With An Exemplary An...

Stiffords Bridge, Cradley, Malvern, Worcestershire, WR13

4 Bedroom End of Terrace House | Guide Price £385,000

A Deceptively Spacious And Beautifully Presented House Situated In Within This Semi-Rural Location Affording Versatile A...

John Goodwin (Malvern)

Malvern, Worcestershire, WR14 4QY

01684 892809

How much is your home worth?

Use our short form to request a valuation of your property.

Request a Valuation

Mortgage Calculator

Amount Borrowed: £
Total Amount Repayable: £
Total Monthly Payment: £
©2026 The Guild of Property Professionals. All rights reserved. Terms and Conditions | Privacy Policy | Cookie Policy | Complaints Policy | Members Login
The Guild of Property Professionals Trading Address: 121 Park Lane, London W1K 7AG. GPEA Limited. Registered in England & Wales.  Company No: 02819824.  Registered Office Address: 2 St. Stephen's Court, St. Stephen's Road, Bournemouth, Dorset, England, BH2 6LA.  VAT Registration No: 576 8795 61
Book a Property Valuation Update Cookies Preferences